Heritage Architectural Renovation: A Case Study of Casa Roy by Taillandier Architectes Associés
This article discusses the renovation of Casa Roy, blending modern living with historical preservation in Bagergue, Spain, by Taillandier Architectes Associés.
Heritage architectural renovation combines preserving the past while integrating modern design and functionality. Casa Roy in Bagergue, Spain, serves as an exemplary model of how architects can respect and revive historical buildings in contemporary settings.



The Historical Context of Casa Roy
Preserving Cultural Heritage
Casa Roy, situated in the historic village of Bagergue, near a Romanesque church listed by UNESCO, required thoughtful consideration in its renovation. The project was extensively reviewed by several commissions to ensure that the renovation would respect the architectural heritage and the urban landscape of the village.



Integrating Modern Living
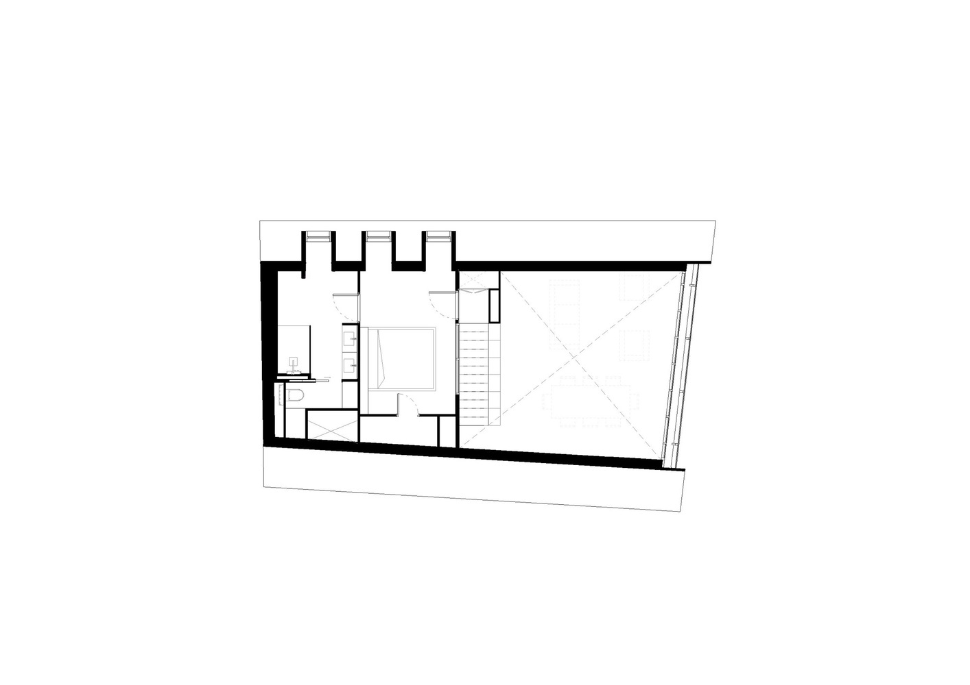
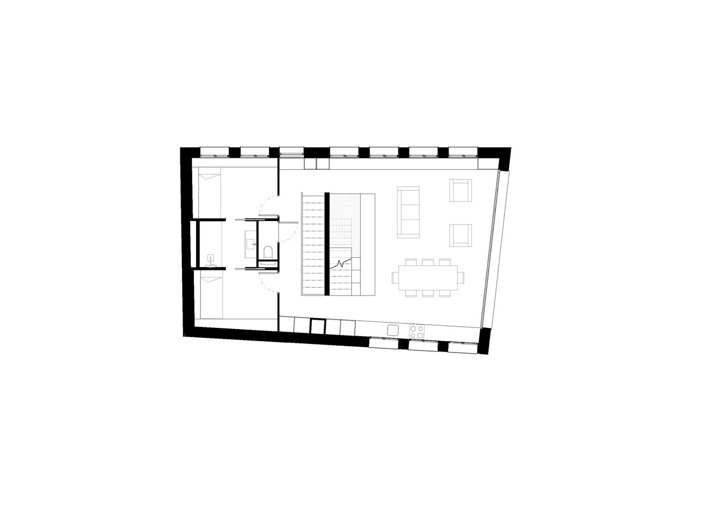
Despite its historical setting, Casa Roy needed to accommodate contemporary living requirements. The renovation introduced two separate living units within the existing structure, cleverly adapting to modern family needs while respecting the traditional Val d'Aran house style.



Architectural Strategies in Renovating Casa Roy
Reversing the Layout for Natural Light
The architects at Taillandier Architectes Associés ingeniously reversed the day and night areas of the original layout. By moving the living room and kitchen upstairs, the design maximizes natural light and offers enhanced views over the neighboring garden, demonstrating a key principle in heritage architectural renovation: adapting use without compromising character.




Material Continuity and Local Sourcing
The renovation project made extensive use of local materials to blend the new with the old seamlessly. Local timber, light oak furniture, and blue stone from Val d'Aran quarries were used to maintain the aesthetic continuity and environmental sustainability of the project.



Challenges and Innovations in the Renovation Process
Adapting to Regulatory Constraints
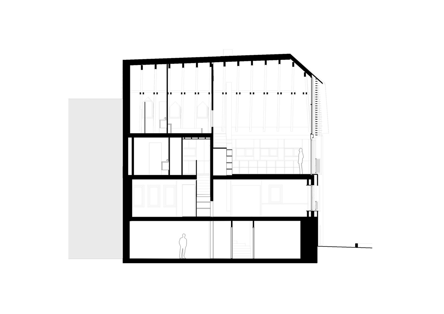
The architects faced strict architectural regulations that prohibited certain modifications, such as adding balconies or terraces. Their solution was a fully retractable bi-fold window system that transforms the living room space into an open terrace, showcasing innovative problem-solving in heritage renovations.


Structural and Environmental Considerations
The introduction of a Bubble-Deck system in the concrete work significantly reduced the building’s weight and carbon footprint. This modern engineering solution respects the site’s topography and the building's historical value while enhancing its functional and environmental performance.



The Future of Heritage Architectural Renovation
Casa Roy represents a profound respect for heritage through architectural renovation. By carefully integrating modern elements with historical accuracy, the project sets a benchmark for future renovations in culturally rich settings.
This case study not only highlights the challenges faced in such projects but also celebrates the innovative solutions that respect and enhance the historical essence of buildings like Casa Roy.


All photographs are work of Roland Halbe
Popular Articles
Popular articles from the community
BICA Arquitectos Buries a Coastal Home in a Man-Made Dune on Portugal's Tróia Peninsula
A 300-square-meter house of timber, sand mortar, and travertine dissolves into the dune landscape it helped regenerate on the Alentejo coast.
boq architekti Fits a Gabled Family House onto a Tiny Moravian Hillside Plot with No Room for a Garden
A 115 square meter home in South Moravia trades a garden for a rooftop terrace and a fully glazed facade facing the village below.
Studio Gram Unfurls a Concrete Curve Through an Adelaide Queen Anne Villa
In Rose Park, a billowing concrete threshold stitches a century-old house to a sun-chasing pavilion organized around an existing pool.
Architects Group RAUM Stacks Offset White Volumes into a Compact Office Tower in Busan
A 524-square-meter building on a tight corner lot in Haeundae plays with sunlight rights and shifting floor plates to create generous terraces.
Similar Reads
You might also enjoy these articles
Olio Towers: A Mid-Rise for Performers That Fuses Housing, Rehearsal, and Stage
Located blocks from Houston's Theater District, this modular tower stacks living units around a central performance atrium.
Oasis: Modular Green Housing Carved into Dhaka's Urban Fabric
A shortlisted Plugin Housing entry reclaims unauthorized settlements in Dhaka with stepped concrete volumes, green roofs, and ventilation-driven design.
Black Hole: A Floating Megastructure for the Post-Physical Era
Emiliano Mazzarotto envisions a spherical, self-scaling arena where e-sports, digital hotels, and holographic stadiums replace traditional public space.
Compact & Sustainable Living in Piraeus: A Four-Level Family Home Built Around Light and Air
A narrow townhouse in one of Greece's densest port cities uses a central atrium and passive strategies to house three generations under one roof.
Explore Architecture Competitions
Discover active competitions in this discipline
The International Standard for Design Portfolios
The Global Benchmark for Architecture Dissertation Awards
The Global Benchmark for Graduation Excellence
Challenge to reimagine the Iron Throne
Comments (0)
Please login or sign up to add comments
No comments yet. Be the first to comment!