Historic Urban Renewal Projects: Revitalizing L'viv with Ateliers Nadvorie
The article discusses Ateliers Nadvorie by Sadovsky & Architects, a project blending historical preservation with modern design and sustainability in L'viv, Ukraine.
Ateliers Nadvorie, spearheaded by Sadovsky & Architects, marks a significant milestone in historic urban renewal projects. Located in the ancient city of L'viv, Ukraine, this project seamlessly merges the past with the present, showcasing how derelict structures can be transformed into vibrant creative hubs.




The Evolution of Ateliers Nadvorie
A Fusion of History and Modernity
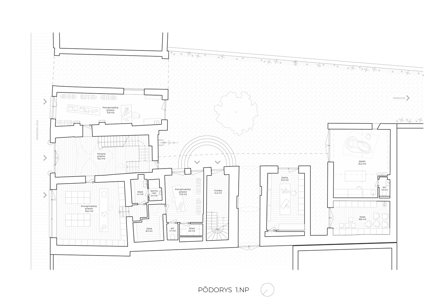
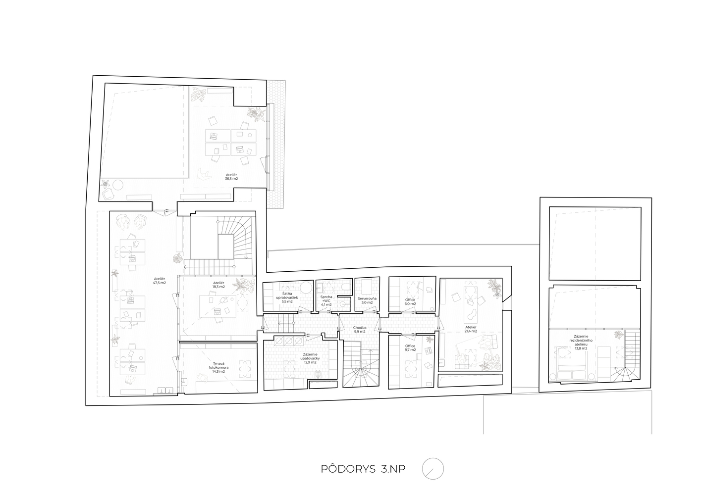
Ateliers Nadvorie completes the Nadvorie complex, offering a pedestrian entrance from Pekarska Street and connecting the university park to a new realm of contemporary culture. This multifunctional building embodies a creative center that hosts independent and shared studios, commercial areas, and workshops, all designed with a focus on sustainability and innovation.




Preserving Historical Integrity
The project involved the careful renovation of a historical burgher house, which has seen numerous transformations over centuries. By restoring the symmetrical façade and reinterpreting the building's original vaults, Sadovsky & Architects have paid homage to the structure's rich past while adapting it for modern use.





Implementing Sustainable Solutions
Experimental Sustainable Building Techniques
Ateliers Nadvorie explores sustainable construction methods by incorporating prefabricated straw-wooden blocks within the courtyard wing. This approach, coupled with traditional masonry and lightweight steel frames, demonstrates a commitment to low-carbon building practices and energy efficiency.





Innovative Energy Management
A standout feature of the renovation is the adoption of geothermal heat pumps, utilizing underground wells to provide year-round energy for heating and cooling. This system underscores the project's emphasis on sustainability, even within the constraints of working with historic buildings.


A Blueprint for Future Renewal Projects
Ateliers Nadvorie sets a precedent for historic urban renewal projects, blending architectural heritage with contemporary design and sustainability. Through innovative material use, energy management, and a respectful approach to renovation, Sadovsky & Architects have created a model for revitalizing urban spaces that can inspire future projects worldwide.







All photographs are work of Matej Hakár