In Normandy, Anatomies D'Architecture renovates a rural house using 100 percent local materials.
The house is located in a rural area, so the team used local materials that would fit in with the surroundings.
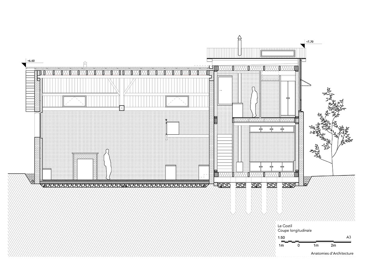
Anatomies d'Architecture, an architecture firm based in Paris and Marseille, has renovated a rural house in Sap-en-Auge, Normandy, France using 100 per cent local materials. The 83-square-meter house, named Le Costil, was renovated with an ecological construction approach that used entirely local materials and traditional craftsmanship.
The studio's renovation of a traditional brick house, or longère, includes only natural materials from within a radius of 100 km. The design process aimed to answer the question, "How can we change the way we build our homes?"
"In other words, we must learn how to reconnect our habitat to its territory, understanding and respecting its particularities and resources: climate, geography, history, built heritage, local materials, and regional building techniques.
"And how can we take advantage of this recontextualization to provide an architectural response to the ecological challenges of the Anthropocene epoch?".
The house was renovated using hemp insulation, raw earth coatings, timber frames made of local chestnut and oak trees, reuse of traditional bricks and recycled corks. Foundations are made of locust tree trunks and floors are made of reused wood windows.
The studio explained that the renovation of the house took two years as they tried to figure out alternative and local solutions to conventional buildings.
The studio said that this project was only made possible thanks to the hard-working people of Normandy who fight every day to preserve local and traditional craftsmanship, ancestral practice, regional solidarity, and short circuits. The two-storey house consists of a kitchen, dining room, living room, and bedroom on the ground floor, while a mezzanine floor is dedicated to a study room, bathroom, and an open hall.












References (9)
Popular Articles
Popular articles from the community
A Contemporary Take on Iranian Residential Architecture
A modern interior design in Mashhad that reinterprets brick, light, and spatial flow to create a warm, contemporary residential architecture.
Flamboyant House by Juliana Camargo + Prumo Projetos
Modern Brazilian house integrating existing tree, pool, and volumes with glass, wood, and transitional spaces blending interior, exterior, and landscape seamlessly.
An Miên Lumière Cafe by xưởng xép, Ho Chi Minh City, Vietnam
An industrial-inspired café where layered steel and warm light create a dynamic, immersive environment shaped by reflection, depth, and perception.
Solar Steam: A Climate-Responsive Architecture That Redefines the Monument
A climate-responsive memorial architecture that transforms heat, decay, and time into a living system reflecting humanity’s ecological impact.
Similar Reads
You might also enjoy these articles
Scientific and Educational Monitoring Center of the Yenisei, Krasnoyarsk
Architecture as an instrument for ecological research, education, and environmental awareness along Russia’s largest river.
Development of Andretta Artist’s Village, Palampur, Himachal Pradesh, India
Reimagining Andretta as a living cultural landscape where art, architecture, and community converge to shape a global creative village.
The NEON Culture: Experiential Architecture Shaping Contemporary Urban Life
Exploring how experiential architecture responds to accelerated lifestyles through immersive spaces, adaptive programs, and sensory-driven urban design.
Narwall: Autonomous Offshore Architecture for Extreme Environments
A visionary model of sustainable offshore architecture, Narwall redefines public life, energy autonomy, and resilience in extreme Arctic waters.
Explore Architecture Competitions
Discover active competitions in this discipline
The International Standard for Design Portfolios
The Global Benchmark for Architecture Dissertation Awards
The Global Benchmark for Graduation Excellence
Challenge to reimagine the Iron Throne



























Comments (0)
Please login or sign up to add comments
No comments yet. Be the first to comment!