Innovative Kindergarten Design: Tung Yuan Kindergarten by office aaa
The article details the innovative architectural design of Tung Yuan Kindergarten in Taichung, focusing on its educational and spatial functionality.
In the bustling industrial outskirts of Taichung, Taiwan, the Tung Yuan Kindergarten stands as a beacon of innovative design and educational philosophy. Designed by the acclaimed office aaa, this kindergarten is not just a place for early learning but a carefully crafted environment that stimulates the imagination and cognitive abilities of its young inhabitants.




Architectural Concept and Design
Integrating With the Urban Fabric
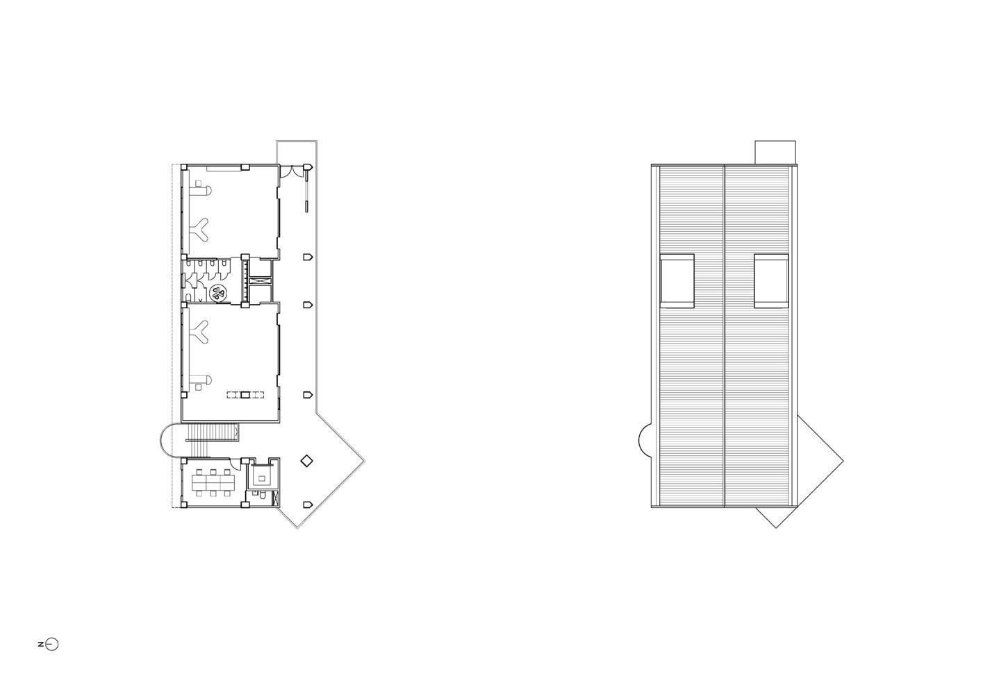
Located strategically at the northwest corner of its campus, Tung Yuan Kindergarten interacts seamlessly with its surroundings. The building faces a 6M roadway, sitting at a 45-degree angle that respects both the urban grid and the internal campus pathways. This alignment introduces a dynamic interaction between the structure and the city, making the kindergarten an integral part of the community.




The Entrance and Canopy
The entrance of the kindergarten is marked by a recessed canopy that twists 45 degrees to align with the existing campus axis. This architectural feature is not only functional, protecting children from the elements, but also forms an inviting gesture towards the community. The canopy extends upwards, forming an activity terrace on the second floor, further blurring the lines between indoor and outdoor spaces.






Façade and Structural Innovation
The front elevation of the kindergarten is a modern interpretation of a classic house, with a double-pitched roof that mirrors the domestic architecture of the nearby residences. This familiar shape is rendered in white, creating a stark, memorable image against the industrial backdrop. The roof itself is supported by a striking Y-shaped column on the second floor, which is a structural and visual focal point. Painted in bright yellow, this column not only supports the roof but also serves as a playful element that enhances the learning environment.




Interior Design and Functionality
Spatial Arrangement
Inside, the kindergarten is a labyrinth of learning and play areas, with each space designed to foster interaction and exploration. The classrooms and common areas are interconnected, encouraging a flow of movement and activity that is essential for child development. The use of vertical space is particularly notable, with high ceilings and the visible roof structure adding a sense of openness and possibility.


Material and Color Use
The interior palette is carefully chosen to stimulate sensory experiences and learning. Bright colors, like the yellow of the structural column, are used strategically to create lively and engaging spaces. Materials are selected for durability, safety, and their ability to create a warm, inviting atmosphere.


The Tung Yuan Kindergarten by office aaa is a prime example of how innovative kindergarten design can influence early education. By integrating architectural excellence with educational theory, the project not only serves its functional purpose but also stands as a model for future developments in the field of educational architecture.



All photographs are work of Tze-Chun Wei
Popular Articles
Popular articles from the community
The Ken Roberts Memorial Delineation Competition (Krob)
As the most senior architectural drawing competition currently in operation anywhere in the world, it draws hundreds of entries each year, awarding the very best submissions in a series of medium-based categories.
Solar Steam: A Climate-Responsive Architecture That Redefines the Monument
A climate-responsive memorial architecture that transforms heat, decay, and time into a living system reflecting humanity’s ecological impact.
On the Brooks House by Monsoon Collective – A Contemporary Kerala Home Rooted in Tradition
Kerala home blending tradition and modernity with water-inspired design, brick architecture, courtyard planning, and sustainable rainwater harvesting strategies.
A Contemporary Take on Iranian Residential Architecture
A modern interior design in Mashhad that reinterprets brick, light, and spatial flow to create a warm, contemporary residential architecture.
Similar Reads
You might also enjoy these articles
The Ken Roberts Memorial Delineation Competition (Krob)
As the most senior architectural drawing competition currently in operation anywhere in the world, it draws hundreds of entries each year, awarding the very best submissions in a series of medium-based categories.
Waterfront Redevelopment and Urban Revitalization in Mumbai: Forging a New Dawn for Darukhana
A transformative waterfront redevelopment project reimagining Darukhana’s shipbreaking heritage into an inclusive urban future.
OUT-OF-MAP: A Call for Postcards on Feminist Narratives of Public Space
Rhizoma Design and Research Lab invites artists, designers, architects, researchers, and students to reflect on how feminist perspectives can reshape public space. Selected works will be exhibited in Barcelona, October 2026. Submissions open until 15 April 2026.
Documentation Work on Buddhist Wooden Temple
Architectural syncretism and cultural hybridity: A comparative study of the Buddhist temples in Chattogram Hill tracks
Explore Architecture Competitions
Discover active competitions in this discipline
The International Standard for Design Portfolios
The Global Benchmark for Architecture Dissertation Awards
The Global Benchmark for Graduation Excellence
Challenge to design public laboratory
Comments (0)
Please login or sign up to add comments
No comments yet. Be the first to comment!