Innovative School Library Design: Transforming Learning Spaces at Vič Primary School
Explore the Open Library at Vič Primary School, a beacon of innovative school library design enhancing accessibility and learning in Ljubljana.
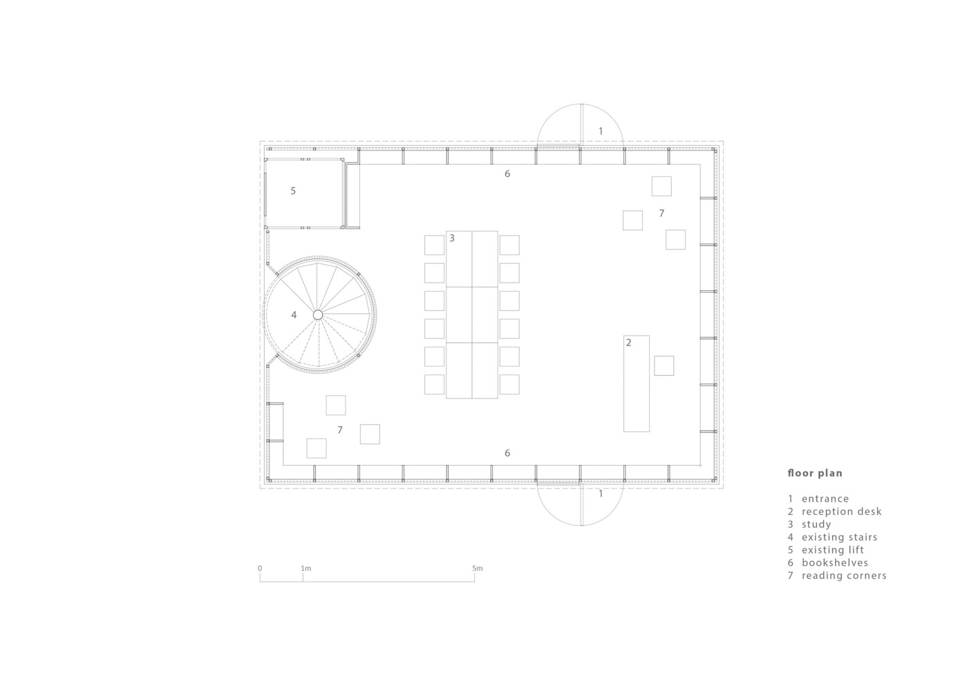
In the bustling educational landscape of Ljubljana, Slovenia, the Open Library stands as a pioneering example of innovative school library design. Created by ARP Studio, this project redefines the concept of a library within a primary school setting, integrating it seamlessly into the school’s central hall.



Conceptualization and Design Strategy
Adapting to Space Constraints
Faced with the challenge of increasing student numbers and limited space, ARP Studio proposed a creative solution that shifted the traditional classroom from the central hall to where the old library was located. This strategic move made room for the new Open Library, optimizing the use of space while enhancing accessibility and visibility of books to students throughout the school.


Designing for Visibility and Interaction
The Open Library is uniquely designed to encircle the perimeter of the two-story hall, allowing books to be visible from various points within the school. This layout not only makes the library the focal point of the school but also maintains the hall’s role as a communal space, now enriched with the presence of books.



Architectural Features and Functionality
Structural Ingenuity
The library’s structure is characterized by a lightweight, translucent design, incorporating primary timber elements and metal frames that form a distinctive spatial grid. This clear structural arrangement not only facilitates quick construction but also contributes to the overall aesthetic of the library.



Multifunctional Library Space
Beyond serving as a conventional library, the space is designed to be multifunctional, adapting to various school activities such as classes, storytelling sessions, book presentations, and social gatherings. The adaptability of the library makes it a versatile asset to the school, promoting a dynamic learning environment.


Impact on Student Learning and School Culture
Fostering a Reading Culture
The Open Library is more than just a physical space; it’s a catalyst for cultural change within the school. By making books constantly accessible and visible, it invites students to engage with reading in both structured and casual settings. This exposure helps cultivate reading habits and a deeper appreciation for literature among students.


Enhancing Educational Experiences
The integration of the library into the school's central communal area allows for continuous interaction with educational resources, transforming the way students perceive and engage with the library. It becomes a living part of their daily school life, significantly enhancing their educational experience.



The Open Library at Vič Primary School, designed by ARP Studio, is a prime example of innovative school library design that responds to spatial and educational challenges with creativity and efficiency. This project not only transforms a traditional space into a vibrant educational hub but also sets a benchmark for future school library designs worldwide.


All photographs are work of Ana Skobe
Popular Articles
Popular articles from the community
Gunawarman 35: Jakarta's Corner of Quiet Complexity
WOFF's mixed-use building in Jakarta pairs translucent glass block walls with a buff brick cylinder to hold coffee, wellness, and work under one roof.
Art 1 Office Strips Athens Back to Its Bones
Neiheiser Argyros transforms a 40-year-old Athens office building into a vivid, materially rich workplace anchored by red steel, exposed concrete, and roof
Guangzhou's Twin Towers Interiors Move Like Water
DuShe Architectural Design shapes the lobbies of a massive Guangzhou transit hub with undulating ceilings and deep geological materiality.
20 Most Popular Commercial Architecture Projects of 2025
From sustainable market concepts to heritage factories, the commercial buildings and proposals that drew the most attention on uni.xyz this year.
Similar Reads
You might also enjoy these articles
Filtering Space: A Gradual Spatial Experience
From urban intensity to spatial calm.
The Ken Roberts Memorial Delineation Competition (Krob)
As the most senior architectural drawing competition currently in operation anywhere in the world, it draws hundreds of entries each year, awarding the very best submissions in a series of medium-based categories.
Waterfront Redevelopment and Urban Revitalization in Mumbai: Forging a New Dawn for Darukhana
A transformative waterfront redevelopment project reimagining Darukhana’s shipbreaking heritage into an inclusive urban future.
OUT-OF-MAP: A Call for Postcards on Feminist Narratives of Public Space
Rhizoma Design and Research Lab invites artists, designers, architects, researchers, and students to reflect on how feminist perspectives can reshape public space. Selected works will be exhibited in Barcelona, October 2026. Submissions open until 15 April 2026.
Explore Architecture Competitions
Discover active competitions in this discipline
The International Standard for Design Portfolios
The Global Benchmark for Architecture Dissertation Awards
The Global Benchmark for Graduation Excellence
Challenge to design public laboratory
Comments (0)
Please login or sign up to add comments
No comments yet. Be the first to comment!