Maritime Museum Restaurant Design: A Modern Culinary Experience at The Cantabrian Maritime Museum Restaurant by Zooco Estudio
Exploring Zooco Estudio's Cantabrian Maritime Museum Restaurant, blending architectural heritage with modern dining in Santander, Spain.
In the picturesque city of Santander, Spain, the Cantabrian Maritime Museum Restaurant emerges as a prime example of maritime museum restaurant design, offering a unique dining experience that seamlessly blends architectural innovation with breathtaking views of the Bay of Santander. Designed by the renowned Zooco Estudio, this restaurant sets a new standard for integrating culinary spaces within museum contexts.


The Architectural Concept
A Seamless Integration with the Maritime Museum
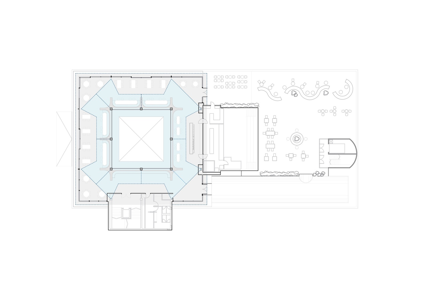
Situated within an architectural complex that includes an Oceanographic Center, the restaurant is a modern addition to a structure conceived between 1975 and 1978 by architects Vicente Roig Forner and Ángel Hernández Morales. Zooco Estudio's design pays homage to the original building's concrete structure and paraboloid membrane vaults, while introducing a contemporary glass volume that houses the restaurant and its terrace on the second floor.




Innovations and Extensions
The restaurant's design addresses the building's historical pathologies by adding a new volume that complements the existing paraboloids. This addition not only resolves structural issues but also transforms the space into a focal point for visitors, with triangular wooden false ceilings framing the concrete structures and highlighting their raw beauty.





The Design Aesthetics
Interior Elegance
The interior design of the Cantabrian Maritime Museum Restaurant is a testament to Zooco Estudio's ability to create spaces that are both functional and aesthetically pleasing. The use of wood and glass within the dining area enhances the natural light and provides diners with an immersive experience of the surrounding maritime landscape.






Exterior Transparency
The exterior of the restaurant is designed as a glass box to maximize transparency, allowing diners to feel as though they are dining at sea. This design choice is nuanced by the use of textiles in the form of curtains, which adjust based on the orientation to provide the perfect balance of light and privacy.






A New Horizon for Museum Restaurants
The Cantabrian Maritime Museum Restaurant by Zooco Estudio represents a significant advancement in maritime museum restaurant design, blending architectural heritage with modern design principles. As a space that offers both a visual and culinary feast, it invites visitors to engage with the maritime history of Santander in a new and exciting way, setting a benchmark for future museum restaurant designs worldwide.

All Photographs are the work of David Zarzoso
Popular Articles
Popular articles from the community
Inverted Architecture Installation by Studio Link-Arc: Exploring the Intersection of Architecture and Living Organisms
Inverted Architecture Installation by Studio Link-Arc blends mycelium, sustainability, inverted design, ecological cycles, and urban adaptive architecture in Shenzhen.
Flamboyant House by Juliana Camargo + Prumo Projetos
Modern Brazilian house integrating existing tree, pool, and volumes with glass, wood, and transitional spaces blending interior, exterior, and landscape seamlessly.
Treehouse Apartment: A Warm Timber Interior Blending Craft, Play, and Contemporary Living
Warm timber apartment with integrated treehouse, combining natural materials, craftsmanship, and playful design to create a flexible, family-oriented living environment.
An Miên Lumière Cafe by xưởng xép, Ho Chi Minh City, Vietnam
An industrial-inspired café where layered steel and warm light create a dynamic, immersive environment shaped by reflection, depth, and perception.
Similar Reads
You might also enjoy these articles
Top 15 Architecture Competitions to Enter in 2026
From student-friendly idea competitions to prestigious international awards, here are the best architecture competitions open for entries in 2026. Updated regularly.
DIY & Engineering in Computational Design : Enter the BeeGraphy Design Awards
Showcase Your Creativity with Computational Design and Open Source Projects

Innovative Design Solutions: Award-Winning Projects from Recent Architecture Competitions
Exploring award-winning architectural projects shaping the future of design, sustainability, and community.
Explore Architecture Competitions
Discover active competitions in this discipline
The International Standard for Design Portfolios
The Global Benchmark for Architecture Dissertation Awards
The Global Benchmark for Graduation Excellence
Challenge to reimagine the Iron Throne
Comments (0)
Please login or sign up to add comments
No comments yet. Be the first to comment!