Revitalizing Heritage: Historic Adaptive Reuse in San Francisco by Perkins&Will
Perkins&Will transforms San Francisco's historic Building 12 into a vibrant community space through adaptive reuse.
Discover the transformative journey of Building 12 in San Francisco, as Perkins&Will breathes new life into its historic structure through adaptive reuse. This article explores the innovative approach taken to create a vibrant community space while preserving the building's rich history.








Preserving History Through Adaptive Reuse:
Dive into the details of how Perkins&Will approached the renovation of Building 12, a structure built in 1941 with a significant role in the fabrication of ship hulls. Learn how the project preserves the building's historic essence while embracing modern functionalities.







Designing a Vibrant Community Gathering Space
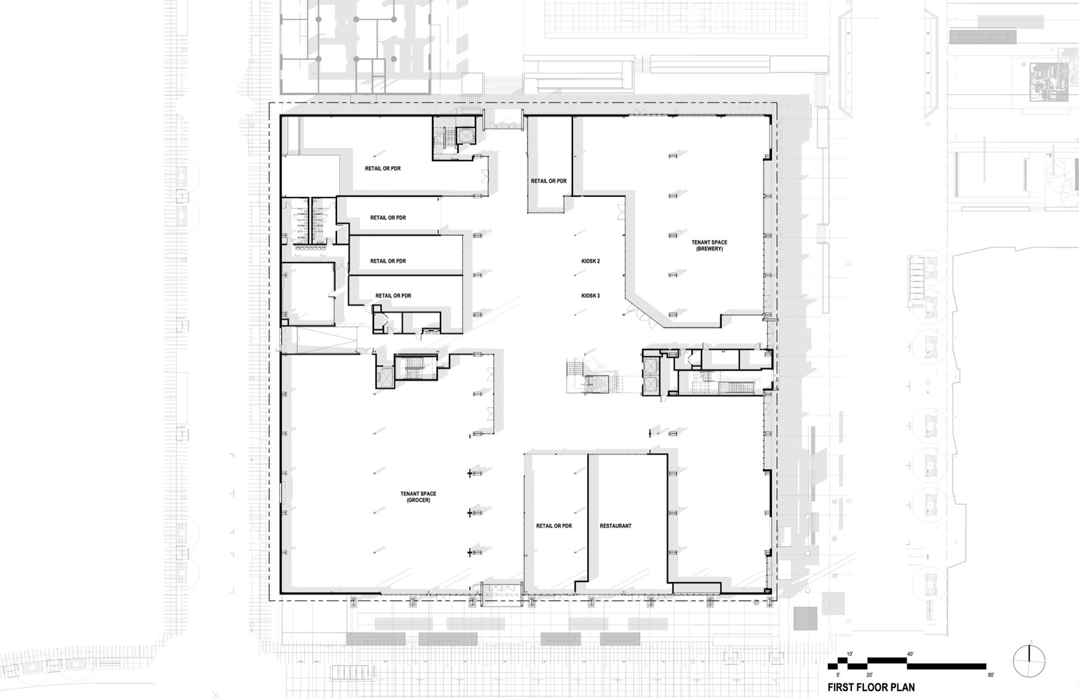
Explore the architect's vision to turn Building 12 into a vibrant community gathering and event space. The article delves into the design elements, including grand market halls, colossal red portals, and operable window walls, providing insights into creating a seamless connection with the surrounding landscape.



Celebrating Local Making and Manufacturing
Uncover the emphasis on celebrating local making and manufacturing within Building 12. The project aims to engage the public in the act of manufacturing, offering artisan and maker studios, retail opportunities, and event spaces for both public and private events.
Addressing Environmental Challenges
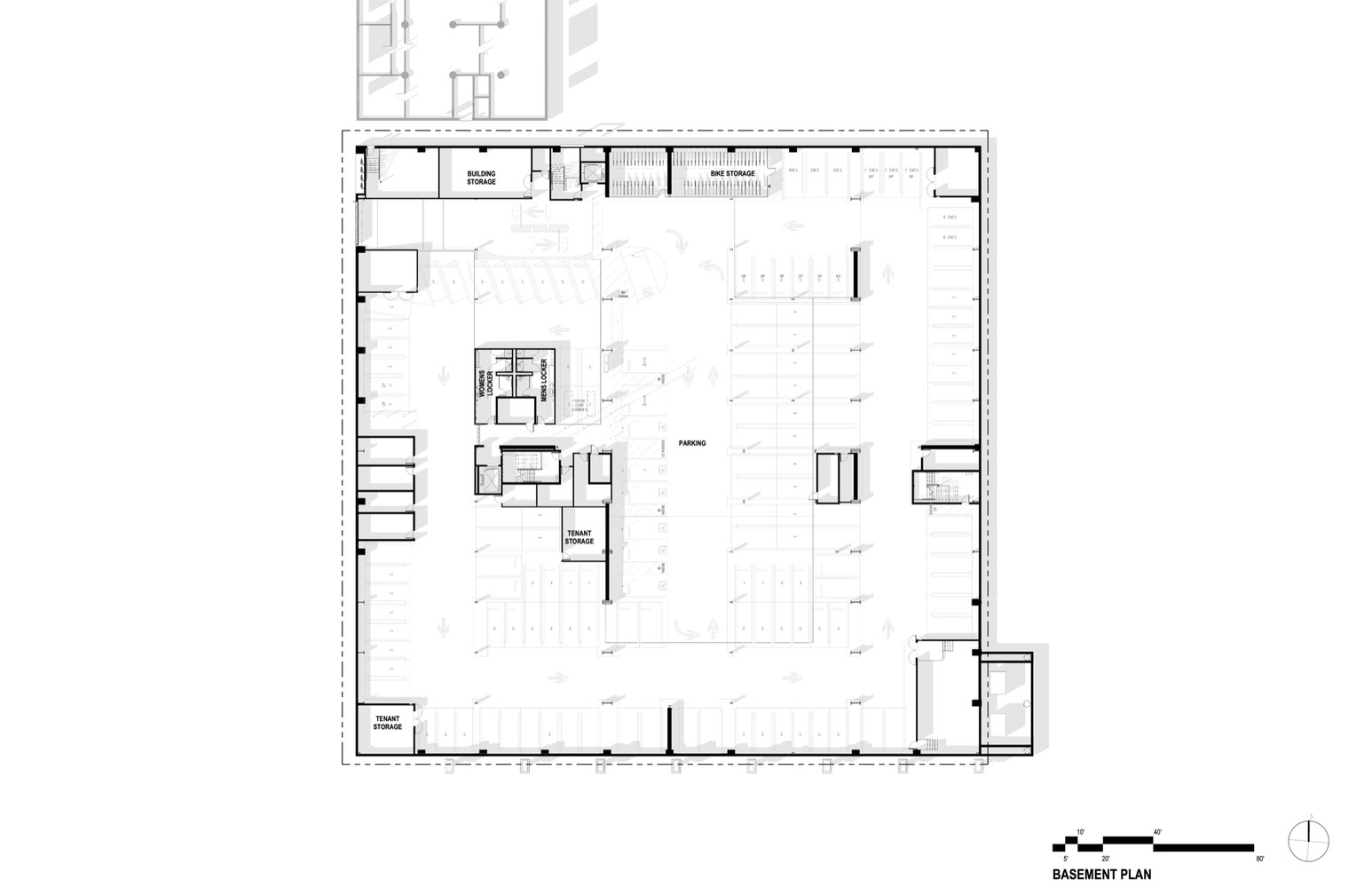
Learn about the innovative response to environmental challenges, with a particular focus on addressing a 100-year projected sea level rise. The article explores how the design team lifted Building 12 along with the site, presenting a unique and forward-thinking solution to preserve the historic resource.










Building 12 stands as a testament to the successful marriage of historic preservation and adaptive reuse in San Francisco. Perkins&Will's visionary approach has not only revitalized a significant landmark but has also created a dynamic space that honors the past while embracing the future.
All Photographs are the work of Bruce Damonte
Popular Articles
Popular articles from the community
HCCH Studio Wraps a Shanghai High-Rise Office in Curved Walls of Translucent Glass
A 1,000 square meter fit-out in Lujiazui replaces the typical tech-office palette with layered glass, micro-cement, and quiet rigor.
RDTH architekti Rips Out Nearly Every Wall in a Prague Apartment and Replaces Them with Furniture
A 101-square-meter post-war flat in Prague trades rigid partitions for a single rotated furniture block, curtains, and glass concrete.
YOAP Architects Round a Corner in Yeongcheon with a Cylindrical Community Hub
A 197-square-meter brick and ribbed-clad tower turns a forgotten alley corner in South Korea into a public garden with a low threshold.
BAST Slots a Four-Story Glass House into a Narrow Gap Between Toulouse Townhouses
In the dense Bonnefoy district, a stepped infill building merges home and office while preserving a majestic hackberry tree.
Similar Reads
You might also enjoy these articles
Olio Towers: A Mid-Rise for Performers That Fuses Housing, Rehearsal, and Stage
Located blocks from Houston's Theater District, this modular tower stacks living units around a central performance atrium.
Oasis: Modular Green Housing Carved into Dhaka's Urban Fabric
A shortlisted Plugin Housing entry reclaims unauthorized settlements in Dhaka with stepped concrete volumes, green roofs, and ventilation-driven design.
Black Hole: A Floating Megastructure for the Post-Physical Era
Emiliano Mazzarotto envisions a spherical, self-scaling arena where e-sports, digital hotels, and holographic stadiums replace traditional public space.
Compact & Sustainable Living in Piraeus: A Four-Level Family Home Built Around Light and Air
A narrow townhouse in one of Greece's densest port cities uses a central atrium and passive strategies to house three generations under one roof.
Explore Artificial Intelligence Competitions
Discover active competitions in this discipline
The International Standard for Design Portfolios
The Global Benchmark for Architecture Dissertation Awards
The Global Benchmark for Graduation Excellence
Challenge to reimagine the Iron Throne
Comments (0)
Please login or sign up to add comments
No comments yet. Be the first to comment!