Reviving the Love for books: Pingtan's new community hub
What inspired the creation of Pingtan Book House and its impact on the local community?

Pingtan Book House: Reviving Cultural Identity in Dong Minority Villages
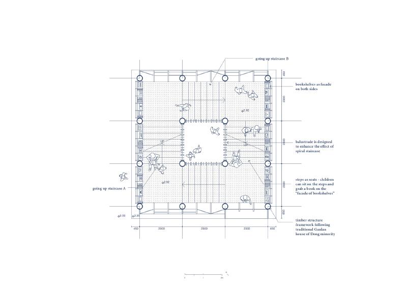
Pingtan Book House is a new community hub located in a Dong Minority village in China, designed by Condition_Lab. It features a unique staircase that loops endlessly through the traditional timber house, creating a destination in and of itself. The walls of the house have been transformed into bookshelves, creating a matrix of literature that overlooks a courtyard.
But Pingtan Book House is no ordinary library. It is a place where children can read and play at the same time, a new village library paradigm in China. For years, Dong Minority villages have been facing the decline of their architectural heritage, with entire villages built from a single sustainable material, indigenous China Fir, being rapidly replaced by concrete.
The Pingtan primary school, built entirely of concrete 20 years ago on the edge of the village, is a prime example of this condition. The complex, which accommodates more than 300 children aged 6-13, comprises a cluster of five buildings, including a Hall and Canteen, Classroom, Dormitories, and an Administration building, all surrounding a courtyard.
Condition_Lab saw an opportunity to make a small insertion by introducing a timber structure that retains the Dong architectural DNA and could reawaken a sense of wonder in their heritage. The design fosters a form of “living heritage” to reconnect and inspire children while allowing them to appreciate their precious culture via direct engagement.
The project is the second library designed by Condition_Lab in the region, with the first being Gaobu Book House, located 10 km upstream and acting as the elder sister in this family of interventions. Each project takes the traditional typology of the Dong “Galan” timber frame house and adapts it to a contemporary design, where elements such as stairs, walls, windows, and floors are reinterpreted.
Through a process of participation, the firm gained the trust of villagers and the school principal, enabling them to create a social narrative that also helped find donors to sponsor the project. The building was built with a single donation of 600,000 HKD from the Chan Cheung Mun Chung Charitable Fund, covering the entire cost of construction.
The library is built entirely using a single material, timber, with every element, including walls, stairs, and floors, following traditional Dong carpentry details, where ‘Dragon Joints’ composed of male and female interlocking parts are used as the main structural bond. The only ‘foreign’ material introduced was polycarbonate, used in façade panels that allow sunlight to filter in and provide external views.
Pingtan Book House is a remarkable achievement, embracing a Book House built entirely from timber, which not only provides a new space for children to read and play but also helps to revive and preserve Dong cultural identity. It is a reminder of the social importance of architecture, showing that social impact does not require large financial investments, and design is not limited to high-end projects.














Architects: CONDITION_LAB
Area: 180 m²
Year: 2021
Photographs: Sai Zhao, Xiaotie Chen
Lead Architect: Peter W. Ferretto
Popular Articles
Popular articles from the community
Louis Malle Cinema: A Limestone Cultural Landmark Revitalizing Community Life in Prayssac
Limestone cinema extension with public forecourt, blending heritage and modern design to create flexible cultural spaces and strengthen community interaction.
On the Brooks House by Monsoon Collective – A Contemporary Kerala Home Rooted in Tradition
Kerala home blending tradition and modernity with water-inspired design, brick architecture, courtyard planning, and sustainable rainwater harvesting strategies.
Treehouse Apartment: A Warm Timber Interior Blending Craft, Play, and Contemporary Living
Warm timber apartment with integrated treehouse, combining natural materials, craftsmanship, and playful design to create a flexible, family-oriented living environment.
Flamboyant House by Juliana Camargo + Prumo Projetos
Modern Brazilian house integrating existing tree, pool, and volumes with glass, wood, and transitional spaces blending interior, exterior, and landscape seamlessly.
Similar Reads
You might also enjoy these articles
Zhuxi Wonderland: Reimagining Traditional Chinese Gardens by Doarchi Architects
Zhuxi Wonderland by Doarchi Architects reinterprets traditional Yangzhou gardens, integrating courtyards, pavilions, and tea houses in modern cultural design.
Doble Soga House: A Contemporary Brick Residence Rooted in Landscape in Quito, Ecuador
Brick house in Quito integrating nature, flexible living spaces, exposed materials, and rooftop terrace, creating warm contemporary architecture for modern family life.
Al Gharra Mosque in Medina Redefining Contemporary Islamic Architecture
Minimalist Medina mosque using concrete, light, and landscape to reinterpret Islamic worship spaces through symbolic spiritual transitions and contemporary architecture.
Viczonecode Villa by DDconcept – Tropical Family Living in Ho Chi Minh City
Tropical family villa in Ho Chi Minh City featuring courtyards, skylights, natural ventilation, elevated flooring, and seamless indoor–outdoor living surrounded by greenery.
Explore Architecture Competitions
Discover active competitions in this discipline
The International Standard for Design Portfolios
The Global Benchmark for Architecture Dissertation Awards
The Global Benchmark for Graduation Excellence
Challenge to reimagine the Iron Throne
Comments (0)
Please login or sign up to add comments
No comments yet. Be the first to comment!