Step inside the futuristic world of Gaga at Shenzhen's Baoan Daqianli store, designed by UND Studio!
Is this the coolest retail store you've ever seen? Take a tour of Gaga Shenzhen Baoan Daqianli store designed by UND Design Studio

Undoubtedly, the hospitality industry has seen a significant transformation in recent years, with a shift towards creating a more holistic experience for customers. The gaga brand, with its philosophy of "full-time hedonism," has taken this trend a step further by creating an oasis outside the busy urban life.


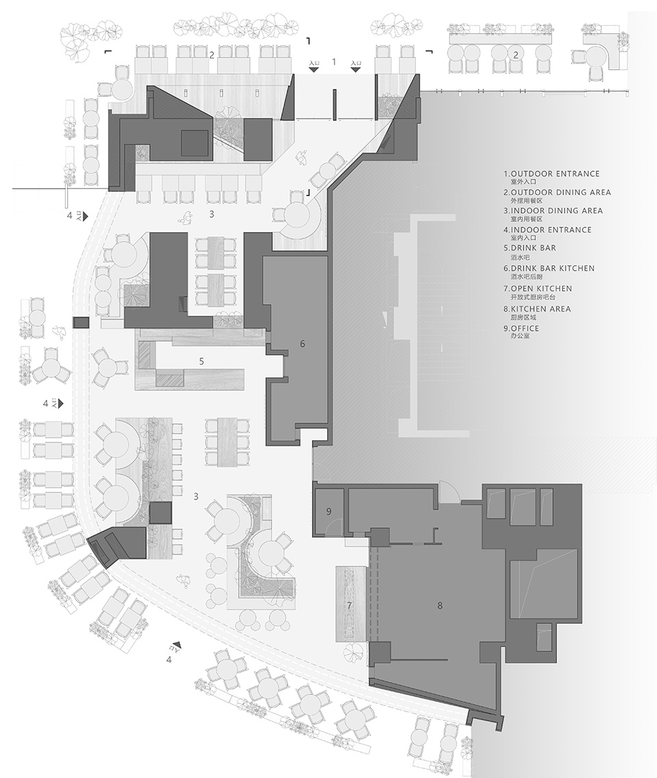
Located in Shenzhen's Baoan Daqianli store, designed by the UND Design Studio, the gaga storefront presents a unique blend of hospitality and commercial architecture. The design is focused on creating a community space where people can slow down, enjoy a moment's leisure, and find joy in life.


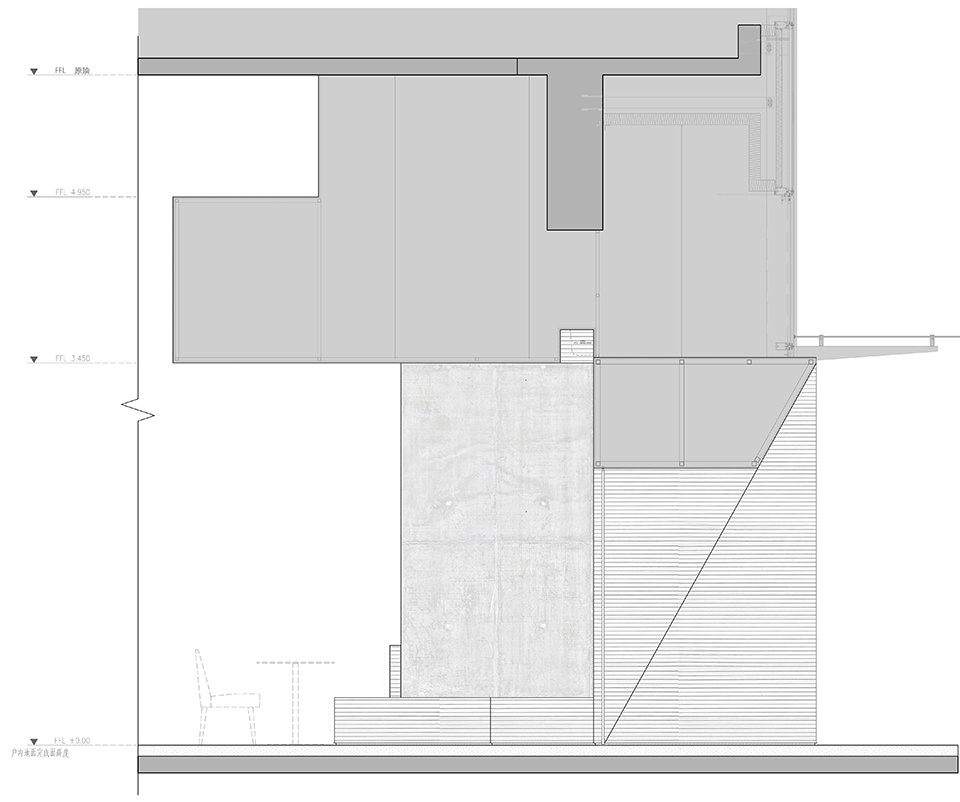
To achieve this, the exterior wall glass of the building was removed, forming a concave-convex relationship with staggered peaks on the facade. The transparent facade allows the external line of sight to better extend into the space, creating a semi-open community space that fosters social relationships between people.

The application of materials in space is mainly mild wood with green plants, transforming the relationship between people and things from the industrial attribute of the city to the natural attribute. This creates an oasis environment with scenes for the dining space, avoiding giving people a feeling of "efficiency" as much as possible.





The design of the built-in table shows diversity, meeting the dining needs of different groups in different time periods. The soft light just illuminates the dining area, creating a relaxed and natural dining atmosphere. The capture of light and shadow is the best record of the passage of time, reflecting the flow of time and space.



The design of the dining space meets the dining requirements and diverse social needs of different groups of people. The "oasis" located in the city provides a leisure space where people can enjoy all kinds of meals the whole time, responding to the variety of jobs and diversity of social needs.


The Gaga storefront's design presents a light dining and community-based cultural atmosphere, consistent with Gaga's brand philosophy of exploring a truly suitable lifestyle and finding inner balance and happiness. The ceiling's design highlights and strengthens the "complexity" of the smallpox pipeline system through the opening of the plate and the gap between the plates.




The Gaga storefront in Shenzhen's Baoan Daqianli store, designed by the UND Design Studio, creates a unique blend of hospitality and commercial architecture, providing an oasis outside the busy urban life where people can find joy in life.












Project information
Project name: gaga Shenzhen Baoan Daqianli store
Project Location: Daqianli, Shenzhen, Guangdong
The project area: 451 ㎡
Completion time: 2022.11
Project owner: gaga
Design firm: UND Design Studio
Main designers: Ma Yingkang, Ma Yanhao, Zhang Mingtong, Wang Runwei and Huang Shubin
Designers involved in the design: Zhou Haohui, Tan Xuanhua, Chen Xiwen, Mo Shoujue and Huang Shuang.
Main materials: art paintinging, wood grain aluminium plate, wood grain film
Construction Team: Shenzhen Lingshang Decoration Design Engineering Co., Ltd.
Project photography: Xiao Le
Popular Articles
Popular articles from the community
Treehouse Apartment: A Warm Timber Interior Blending Craft, Play, and Contemporary Living
Warm timber apartment with integrated treehouse, combining natural materials, craftsmanship, and playful design to create a flexible, family-oriented living environment.
On the Brooks House by Monsoon Collective – A Contemporary Kerala Home Rooted in Tradition
Kerala home blending tradition and modernity with water-inspired design, brick architecture, courtyard planning, and sustainable rainwater harvesting strategies.
Atelier Macri Concept Store Interior Design by CASE-REAL
Atelier Macri store features a "ko" counter, walnut wood details, cork displays, blending retail, gallery, and seamless customer experiences.
An Miên Lumière Cafe by xưởng xép, Ho Chi Minh City, Vietnam
An industrial-inspired café where layered steel and warm light create a dynamic, immersive environment shaped by reflection, depth, and perception.
Similar Reads
You might also enjoy these articles
Zhuxi Wonderland: Reimagining Traditional Chinese Gardens by Doarchi Architects
Zhuxi Wonderland by Doarchi Architects reinterprets traditional Yangzhou gardens, integrating courtyards, pavilions, and tea houses in modern cultural design.
Doble Soga House: A Contemporary Brick Residence Rooted in Landscape in Quito, Ecuador
Brick house in Quito integrating nature, flexible living spaces, exposed materials, and rooftop terrace, creating warm contemporary architecture for modern family life.
Al Gharra Mosque in Medina Redefining Contemporary Islamic Architecture
Minimalist Medina mosque using concrete, light, and landscape to reinterpret Islamic worship spaces through symbolic spiritual transitions and contemporary architecture.
Viczonecode Villa by DDconcept – Tropical Family Living in Ho Chi Minh City
Tropical family villa in Ho Chi Minh City featuring courtyards, skylights, natural ventilation, elevated flooring, and seamless indoor–outdoor living surrounded by greenery.
Explore Architecture Competitions
Discover active competitions in this discipline
The International Standard for Design Portfolios
The Global Benchmark for Architecture Dissertation Awards
The Global Benchmark for Graduation Excellence
Challenge to reimagine the Iron Throne
Comments (0)
Please login or sign up to add comments
No comments yet. Be the first to comment!