Sustainable Office Building Design: Hainan Energy Trading Building by KRIS YAO | ARTECH
Explore the Hainan Energy Trading Building, a model of sustainable office building design by KRIS YAO | ARTECH, featuring innovative green technologies.
The Hainan Energy Trading Building, designed by the renowned KRIS YAO | ARTECH, is a paradigm of sustainable office building design located in the burgeoning Jiangdong New District of Haikou, China. This architectural marvel not only serves as the headquarters for the Yankuang Group but also sets a precedent for future development in the area.


Innovative Design and Sustainability Features
Exterior and Structural Innovations
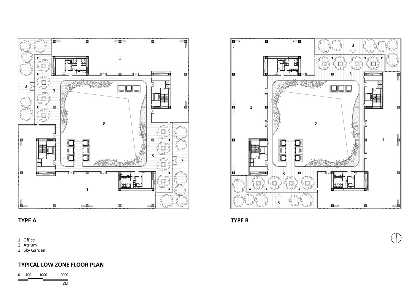
The building's structure is a striking example of modern architecture, featuring a floating box design above a meticulously landscaped ground floor. The exterior is marked by rigid lines that contrast beautifully with the intermittent sky gardens, creating a visually stunning facade. These gardens are strategically placed at alternating corners every four floors, enhancing the building’s sustainability and aesthetic appeal.


Interior Environmental Strategies
Internally, the Hainan Energy Trading Building is equipped with multiple tiers of curving balconies filled with lush greenery. This design is not only pleasing to the eye but also serves to improve the indoor air quality and provide a serene working environment for employees. The use of greenery inside and outside is a testament to the building's commitment to sustainability.


Advanced Ventilation and Natural Lighting
Creating a Microclimate
A central courtyard welcomes visitors into a vast atrium that is 75 meters high, where advanced shading and stack ventilation techniques are employed. These architectural elements create a microclimate that naturally cools and ventilates the space, reducing the need for mechanical cooling.


Double Skin Façade and Daylight Maximization
The building's double skin façade is another innovative feature. It consists of high-transparent glass that not only offers unobstructed views of the surrounding cityscape and coast but also contributes to the thermal comfort inside. The design allows natural light to flood the interiors, reducing the reliance on artificial lighting and further supporting the building’s energy efficiency goals.

Sustainable Roofing and Energy Efficiency
The roof of the Hainan Energy Trading Building is designed to emulate the traditional Jiangnan style, where it slopes downward on all four sides, channeling rainwater into a central courtyard. This not only symbolizes prosperity but also contributes to the building's sustainable practices by managing rainwater effectively. Additionally, the roof's design provides ample natural light to the sky gardens and office spaces, while protecting the building's interior from overheating, a crucial feature in Hainan's warm climate.

A Model for Future Developments
The Hainan Energy Trading Building is not just a workplace; it is a beacon of sustainable office building design that combines innovative architecture with environmental sensitivity. Its features set a benchmark in green building practices, making it a standout example in the realm of sustainable architecture. As the world moves towards more eco-friendly building solutions, the Hainan Energy Trading Building serves as a leading model for architects and developers worldwide.


All photographs are work of MLee Studio
Popular Articles
Popular articles from the community
An Miên Lumière Cafe by xưởng xép, Ho Chi Minh City, Vietnam
An industrial-inspired café where layered steel and warm light create a dynamic, immersive environment shaped by reflection, depth, and perception.
Flamboyant House by Juliana Camargo + Prumo Projetos
Modern Brazilian house integrating existing tree, pool, and volumes with glass, wood, and transitional spaces blending interior, exterior, and landscape seamlessly.
Treehouse Apartment: A Warm Timber Interior Blending Craft, Play, and Contemporary Living
Warm timber apartment with integrated treehouse, combining natural materials, craftsmanship, and playful design to create a flexible, family-oriented living environment.
Louis Malle Cinema: A Limestone Cultural Landmark Revitalizing Community Life in Prayssac
Limestone cinema extension with public forecourt, blending heritage and modern design to create flexible cultural spaces and strengthen community interaction.
Similar Reads
You might also enjoy these articles
Top 15 Architecture Competitions to Enter in 2026
From student-friendly idea competitions to prestigious international awards, here are the best architecture competitions open for entries in 2026. Updated regularly.
DIY & Engineering in Computational Design : Enter the BeeGraphy Design Awards
Showcase Your Creativity with Computational Design and Open Source Projects

Innovative Design Solutions: Award-Winning Projects from Recent Architecture Competitions
Exploring award-winning architectural projects shaping the future of design, sustainability, and community.
Explore Office Building Competitions
Discover active competitions in this discipline
The International Standard for Design Portfolios
The Global Benchmark for Architecture Dissertation Awards
The Global Benchmark for Graduation Excellence
Challenge to reimagine the Iron Throne
Comments (0)
Please login or sign up to add comments
No comments yet. Be the first to comment!