Sustainable School Architecture: A Case Study of Joséphine Baker Middle School
This article explores the sustainable renovation of Joséphine Baker Middle School in Marseille, showcasing modern educational architecture's impact on learning environments.
In the heart of Marseille, France, the Joséphine Baker Middle School stands as a testament to the transformative power of sustainable school architecture. Redefining educational spaces through innovative design, this project by Panorama Architecture marries functionality with environmental responsibility, setting a new standard for school buildings worldwide.


The Challenges of Urban School Renovation
Navigating Complex Urban Sites
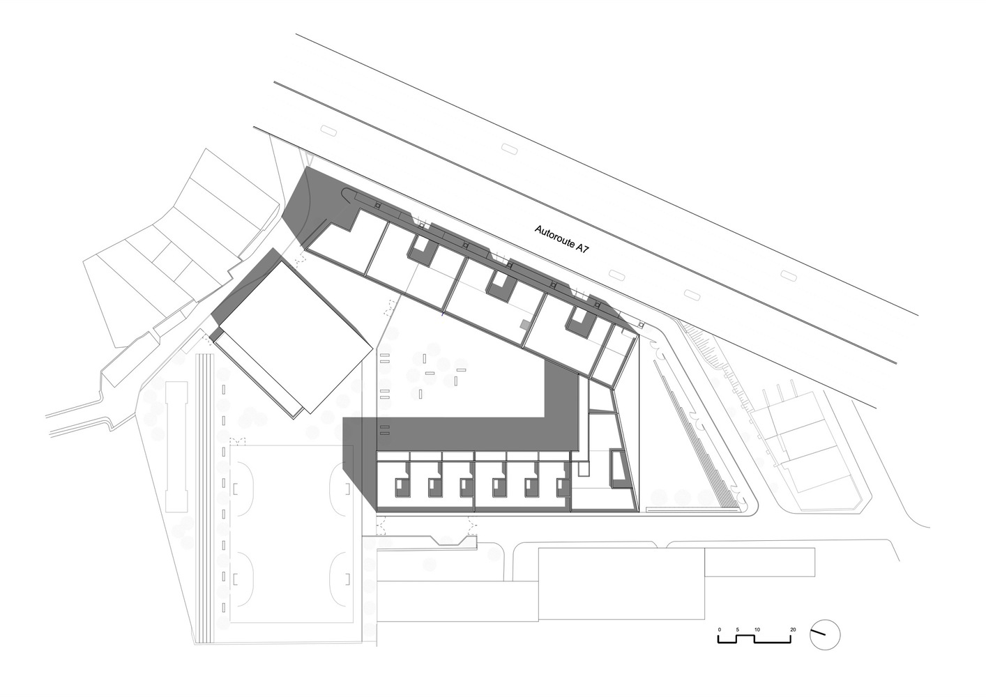
Located in an isolated urban zone plagued by noise from a nearby motorway, the Joséphine Baker Middle School faced significant challenges. The task was not only to renovate but to reimagine the space in a way that mitigated these environmental stressors while enhancing the learning experience for students.


A Total Renovation for a Modern Era
Constructed to replace an aging building from 1966, the new structure needed to provide a welcoming, enriching environment for 600 students. It includes modern facilities such as an auditorium and a gymnasium, marking a significant leap forward in educational architecture.


Architectural Strategies for Sustainable Development
Embracing the Mediterranean Climate
The design of the Joséphine Baker Middle School draws heavily on Mediterranean architectural principles. Its V-shaped structure, with walls that lend a protective appearance, maximizes natural light while using shadow and sunscreens to create a comfortable interior climate. This approach not only addresses the site's constraints but also aligns with broader sustainable development goals.


Compactness and Sustainability
The compactness of the school's design is a deliberate choice, reflecting a commitment to sustainability. By minimizing the building's footprint, the architects have created a space that is not only efficient but also conducive to saving resources, embodying the principles of sustainable school architecture.

The Impact of Sustainable Design on Education
A Pleasant and Liveable Learning Environment
The architectural qualities of the Joséphine Baker Middle School contribute to creating an environment where students and teachers alike can thrive. The interplay of light and space, alongside the thoughtful integration of sustainable design elements, ensures that the school is not just a place of learning but a sanctuary for growth and inspiration.


Setting a New Benchmark
The Joséphine Baker Middle School is more than just a building; it's a benchmark for future projects in sustainable school architecture. Its success demonstrates how thoughtful design can overcome environmental challenges, enhance educational experiences, and contribute to a more sustainable world.


The Future of School Architecture
The renovation of the Joséphine Baker Middle School is a compelling example of how sustainable school architecture can transform educational spaces. By prioritizing the well-being of its occupants and the planet, projects like this pave the way for a new era of school design that is both innovative and responsible.
As we move forward, the principles illustrated by the Joséphine Baker Middle School in Marseille will undoubtedly inspire architects and educators alike to rethink how schools are built, ensuring that they serve as pillars of sustainability and learning in their communities.

All photographs are work of Florence Vesval
Popular Articles
Popular articles from the community
A Contemporary Take on Iranian Residential Architecture
A modern interior design in Mashhad that reinterprets brick, light, and spatial flow to create a warm, contemporary residential architecture.
Louis Malle Cinema: A Limestone Cultural Landmark Revitalizing Community Life in Prayssac
Limestone cinema extension with public forecourt, blending heritage and modern design to create flexible cultural spaces and strengthen community interaction.
Inverted Architecture Installation by Studio Link-Arc: Exploring the Intersection of Architecture and Living Organisms
Inverted Architecture Installation by Studio Link-Arc blends mycelium, sustainability, inverted design, ecological cycles, and urban adaptive architecture in Shenzhen.
Flamboyant House by Juliana Camargo + Prumo Projetos
Modern Brazilian house integrating existing tree, pool, and volumes with glass, wood, and transitional spaces blending interior, exterior, and landscape seamlessly.
Similar Reads
You might also enjoy these articles
Top 15 Architecture Competitions to Enter in 2026
From student-friendly idea competitions to prestigious international awards, here are the best architecture competitions open for entries in 2026. Updated regularly.
DIY & Engineering in Computational Design : Enter the BeeGraphy Design Awards
Showcase Your Creativity with Computational Design and Open Source Projects

Innovative Design Solutions: Award-Winning Projects from Recent Architecture Competitions
Exploring award-winning architectural projects shaping the future of design, sustainability, and community.
Explore Architecture Competitions
Discover active competitions in this discipline
The International Standard for Design Portfolios
The Global Benchmark for Architecture Dissertation Awards
The Global Benchmark for Graduation Excellence
Challenge to design public laboratory
Comments (0)
Please login or sign up to add comments
No comments yet. Be the first to comment!