Transforming Urban Spaces: The Spoke Beverage Room's Lifestyle Café Design
The Spoke Beverage Room by OFFICE COASTLINE merges café culture with bicycling and music, creating a multifunctional lifestyle hub in Shanghai.
In the heart of Shanghai's bustling cityscape, the Spoke Beverage Room emerges as a hallmark of lifestyle café design, brilliantly conceptualized by OFFICE COASTLINE. Nestled adjacent to a serene park, this café transcends traditional boundaries, offering a unique blend of coffee culture, bicycling enthusiasm, and musical events.

Designing a Multifunctional Urban Retreat
Inspiration Behind the Concept
The inception of the Spoke Beverage Room was sparked by a photograph of a vibrant bicycle, shared by the café's owner. This image became the cornerstone of the design, aiming to craft a space reminiscent of a versatile garage, where coffee, bicycles, and music coalesce to create a dynamic community hub.




Architectural Layout and Features
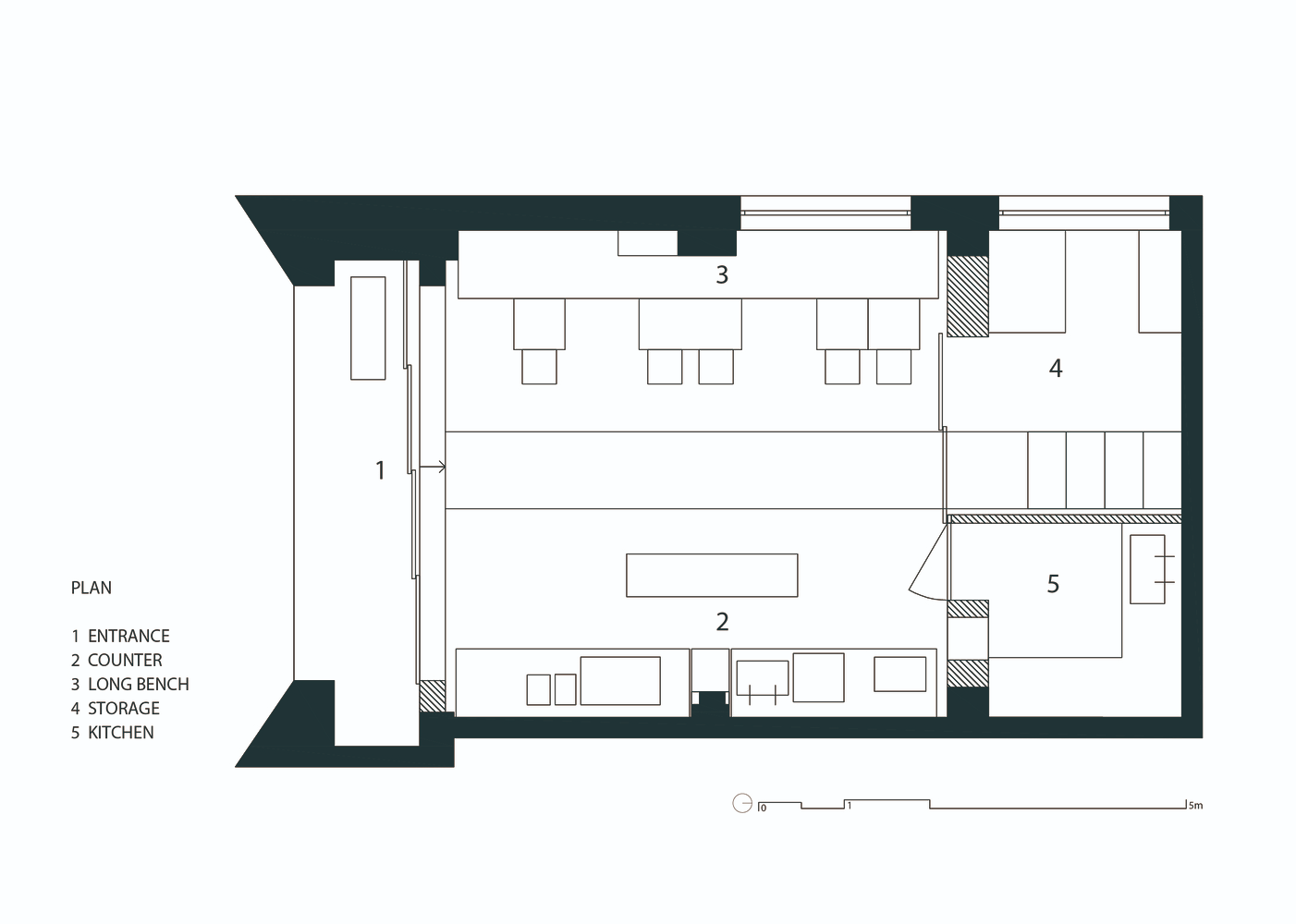
The café's design boasts a straightforward yet effective layout, prioritizing the central area's utility while embedding benches and counters along the perimeter. Sliding doors enhance the space's adaptability, seamlessly connecting the indoor café with the tranquil outdoors. The thoughtful recess of the entrance from its original position not only respects the street's intimacy but also carves out a cozy alcove under the sheltering roof.



A Hub of Culture and Freedom
Beyond a Café: A Cultural Venue
Upon its completion, the Spoke Beverage Room evolved into much more than a café—it became a vibrant cultural venue adorned with bicycle parts, tools, and a prominent speaker system. The rear storage area's transformation into a DJ booth underscores the space's versatility, hosting regular events that animate the venue with energy and music.


Creating Community and Openness
The absence of an external sign lends the Spoke Beverage Room an air of mystery, inviting curiosity and exploration. Its eclectic interior fosters a relaxed atmosphere, encouraging visitors to immerse themselves in the unique experience it offers. On sunny weekends, the café spills out onto the street and across to the park, blurring the lines between public and private spaces and fostering an environment of freedom and community.



A New Paradigm in Café Design
The Spoke Beverage Room by OFFICE COASTLINE represents a pivotal shift in lifestyle café design, merging the worlds of coffee, cycling, and music within an urban setting. This project not only provides a haven for relaxation and enjoyment but also acts as a catalyst for community engagement and cultural expression, setting a new benchmark for future café designs.


All the photographs are work of Alessandro Wang
Popular Articles
Popular articles from the community
Inverted Architecture Installation by Studio Link-Arc: Exploring the Intersection of Architecture and Living Organisms
Inverted Architecture Installation by Studio Link-Arc blends mycelium, sustainability, inverted design, ecological cycles, and urban adaptive architecture in Shenzhen.
Atelier Macri Concept Store Interior Design by CASE-REAL
Atelier Macri store features a "ko" counter, walnut wood details, cork displays, blending retail, gallery, and seamless customer experiences.
Louis Malle Cinema: A Limestone Cultural Landmark Revitalizing Community Life in Prayssac
Limestone cinema extension with public forecourt, blending heritage and modern design to create flexible cultural spaces and strengthen community interaction.
A Contemporary Take on Iranian Residential Architecture
A modern interior design in Mashhad that reinterprets brick, light, and spatial flow to create a warm, contemporary residential architecture.
Similar Reads
You might also enjoy these articles
The Ken Roberts Memorial Delineation Competition (Krob)
As the most senior architectural drawing competition currently in operation anywhere in the world, it draws hundreds of entries each year, awarding the very best submissions in a series of medium-based categories.
Waterfront Redevelopment and Urban Revitalization in Mumbai: Forging a New Dawn for Darukhana
A transformative waterfront redevelopment project reimagining Darukhana’s shipbreaking heritage into an inclusive urban future.
OUT-OF-MAP: A Call for Postcards on Feminist Narratives of Public Space
Rhizoma Design and Research Lab invites artists, designers, architects, researchers, and students to reflect on how feminist perspectives can reshape public space. Selected works will be exhibited in Barcelona, October 2026. Submissions open until 15 April 2026.
Documentation Work on Buddhist Wooden Temple
Architectural syncretism and cultural hybridity: A comparative study of the Buddhist temples in Chattogram Hill tracks
Explore Architecture Competitions
Discover active competitions in this discipline
The International Standard for Design Portfolios
The Global Benchmark for Architecture Dissertation Awards
The Global Benchmark for Graduation Excellence
Challenge to reimagine the Iron Throne
Comments (0)
Please login or sign up to add comments
No comments yet. Be the first to comment!