80 Charlotte Street: A Sustainable Architectural Landmark by Make Architects
This article explores 80 Charlotte Street, a sustainable architectural project by Make Architects blending offices, housing, and public spaces.
80 Charlotte Street by Make Architects is a transformative architectural project that exemplifies sustainable urban design in the heart of London. Completed in 2021, the building represents Derwent London's largest project to date and redefines mixed-use architecture by combining commercial, residential, and public spaces in an environmentally conscious design.





Project Overview
Location and Scale
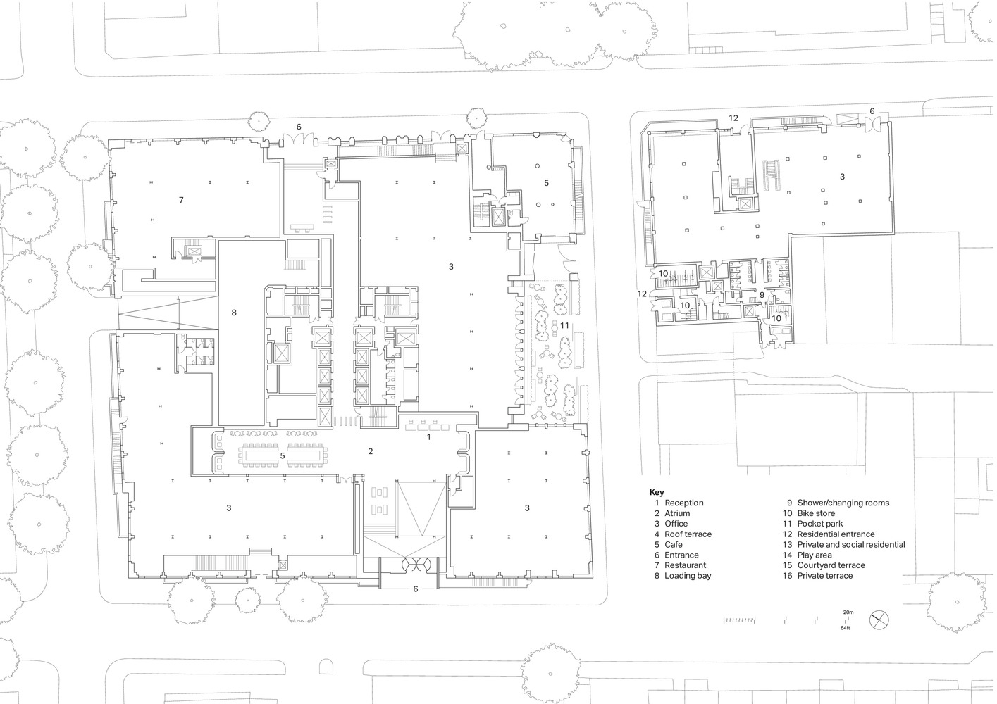
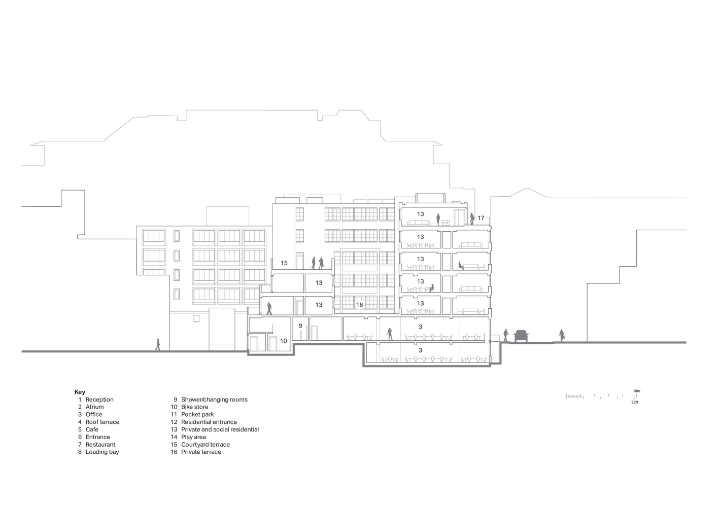
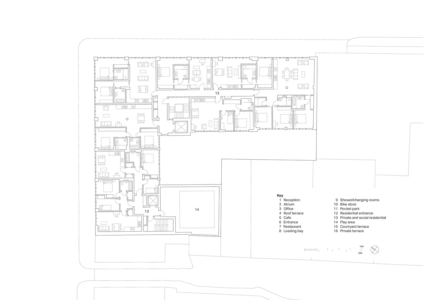
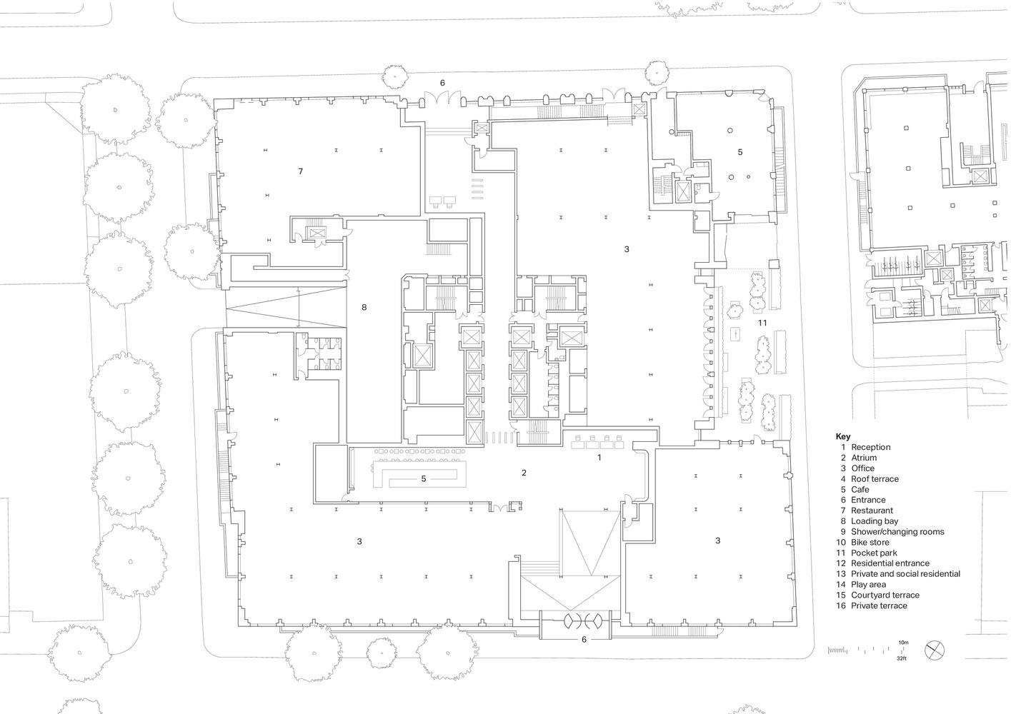
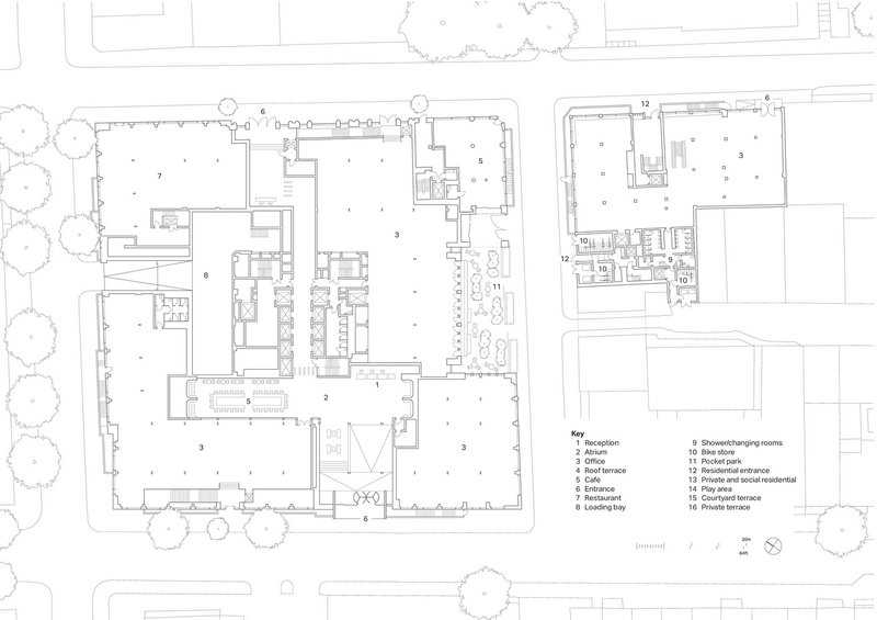
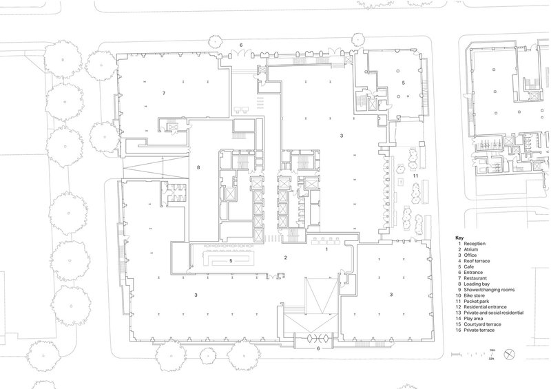
Situated in Fitzrovia, London, the building spans 366,000 square meters, featuring office space, private apartments, social housing, and public gardens. The project's scale and mixed-use composition make it a unique addition to London's architectural landscape.




Design Philosophy
Make Architects' design reimagines the former post office headquarters, retaining elements of the existing structure while integrating new-build features. The architecture merges old and new materials to honor Fitzrovia's historic character and establishes a strong connection to the local community.





Sustainable Features and Innovation
Renewable Energy and All-Electric Systems
In alignment with London's green goals, 80 Charlotte Street is designed as an all-electric building. This fossil fuel-free approach incorporates renewable electricity, aiming for a future-ready energy system that adapts to London's evolving energy infrastructure.





Natural Ventilation and Atrium Design
The building includes three atria positioned to maximize natural light and ventilation, reducing dependency on artificial climate control. The atria serve as both aesthetic and functional focal points, creating open spaces that invite natural airflow while enhancing the building's visual appeal.




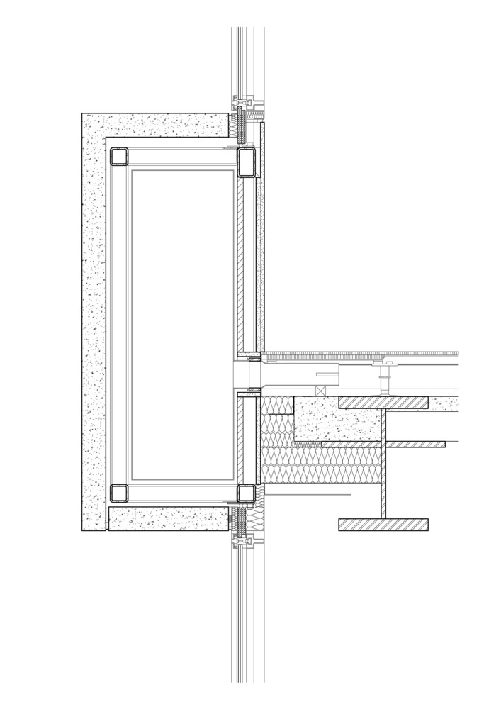
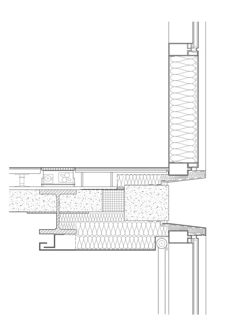
Recycled and Reused Materials
Preservation of the original facades on Whitfield Street reflects Make Architects' commitment to sustainable practices. The use of reclaimed and durable materials, including concrete, steel, and timber, further supports the building’s longevity and minimizes waste.





Architectural Highlights
Dynamic Facades and Terraces
80 Charlotte Street features distinct facade treatments that contribute to a fragmented, smaller-scale appearance, in harmony with the neighborhood's architectural rhythm. Each elevation reflects its surroundings through a combination of red, yellow, and dark gray brickwork, complemented by a weathered steel entrance.






Indoor-Outdoor Integration
The project creates a seamless flow between indoor and outdoor spaces. A rooftop terrace and garden provide panoramic views, while Poets' Park—a newly created public green space—connects the building to its urban environment.





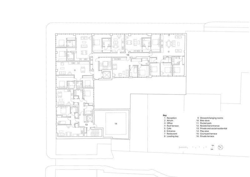
Mixed-Use Spaces and Community Impact
Office and Social Spaces
With tenants including Boston Consulting Group and Arup, the building offers flexible, light-filled office spaces. The ground floor doubles as a communal hub, complete with an island café-bar for tenants and visitors, fostering social interactions within the workspace.





Residential Integration
The project includes two residential sections: Charlotte Apartments, featuring private rental units above a café that opens onto Poets' Park, and Asta House, which contains renovated residential spaces and additional offices. Together, these sections create a balanced living and working environment that encourages urban community life.





Environmental and Social Legacy
80 Charlotte Street has established a benchmark for sustainable and socially conscious urban design in Fitzrovia. Jason McColl, the project architect, emphasized the importance of craftsmanship, structural honesty, and a connection to local character. Through sustainable energy solutions, mixed-use spaces, and historical sensitivity, the building reflects Make Architects' vision of urban architecture that not only adapts to but enhances its cityscape.




80 Charlotte Street exemplifies Make Architects' commitment to sustainable and community-focused design. The project is a model of adaptive reuse, blending modern architectural practices with sustainable technologies to create a lasting contribution to London’s architectural heritage.



All photographs are work of Jack Hobhouse
Popular Articles
Popular articles from the community
Gads Hill Early Learning Center by JGMA: Adaptive Reuse Shaping Community-Focused Educational Architecture
Adaptive reuse transforms fragmented structure into vibrant early learning center with playful façade, natural light, and community-focused sustainable design.
Split House: A Compact Urban Home Blending Privacy, Light, and Flexible Living in Japan
Compact Japanese home featuring DOMA space, flexible café potential, passive lighting, privacy zoning, and sustainable urban living design.
Solar Steam: A Climate-Responsive Architecture That Redefines the Monument
A climate-responsive memorial architecture that transforms heat, decay, and time into a living system reflecting humanity’s ecological impact.
Fifth NRE Jazz Club – De Bever Architecten: Eindhoven’s Revitalized Cultural Hub
Historic gas factory transformed into Fifth NRE Jazz Club blending modern sustainability, jazz culture, dining, and heritage architecture seamlessly.
Similar Reads
You might also enjoy these articles
The Ken Roberts Memorial Delineation Competition (Krob)
As the most senior architectural drawing competition currently in operation anywhere in the world, it draws hundreds of entries each year, awarding the very best submissions in a series of medium-based categories.
Waterfront Redevelopment and Urban Revitalization in Mumbai: Forging a New Dawn for Darukhana
A transformative waterfront redevelopment project reimagining Darukhana’s shipbreaking heritage into an inclusive urban future.
OUT-OF-MAP: A Call for Postcards on Feminist Narratives of Public Space
Rhizoma Design and Research Lab invites artists, designers, architects, researchers, and students to reflect on how feminist perspectives can reshape public space. Selected works will be exhibited in Barcelona, October 2026. Submissions open until 15 April 2026.
Documentation Work on Buddhist Wooden Temple
Architectural syncretism and cultural hybridity: A comparative study of the Buddhist temples in Chattogram Hill tracks
Explore Architecture Competitions
Discover active competitions in this discipline
The International Standard for Design Portfolios
The Global Benchmark for Architecture Dissertation Awards
The Global Benchmark for Graduation Excellence
Challenge to reimagine the Iron Throne
Comments (0)
Please login or sign up to add comments
No comments yet. Be the first to comment!