A House Built from Memory: House in Sano, Ichinomiya by Hidekazu Kishi Architects
A small Japanese house composed as a collage of textures and memories, where independent walls shape evolving domestic spaces over time.
Architecture as an Accumulation of Time
House in Sano is a quiet yet deeply evocative residential project that explores architecture not as a pristine object, but as a layered collection of memories, textures, and lived experiences. Designed by Hidekazu Kishi Architects for a family of three, the house is located in the eastern part of the Nobi Plain, where expansive rice paddies coexist with low-density residential neighborhoods.


Rather than standing apart from its surroundings, the house is conceived as an extension of them—absorbing fragments of the local landscape, family history, and personal memory into its spatial and material composition.

A Context of Overlapping Landscapes
The site sits beside the family’s existing home, which includes a pottery studio whose storage spaces also occupy part of the plot. To the north, across the road, lies a technical high school defined by its large mass and dry, infrastructural character—distinct from the softness of the surrounding agricultural land.

This coexistence of scales, textures, and atmospheres became central to the project’s thinking. The architects were not tasked with designing a singular, iconic house, but rather a place where everyday life, memory, and time could quietly accumulate.


A Home Beyond Newness
The clients expressed a desire for a home that did not feel simply “new” or finished. Instead, they envisioned a space that could hold their childhood roots, student memories, present life, and future growth all at once. In response, the architects conceived the house as a form of architectural bricolage—a composition assembled from textures that exist both physically on site and emotionally in memory.

The project draws material inspiration from multiple sources: the parents’ pottery studio, the adjacent school building, the apartment the client lived in during his student years, and the streets of his hometown where he spent his childhood. These references are not replicated literally, but abstracted into material expressions and spatial fragments.

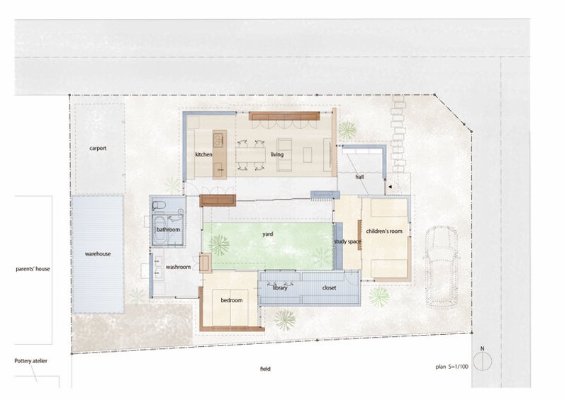
Walls as Independent Elements
Rather than organizing the house into clearly defined rooms, the design is structured around a collection of independent walls. These walls do not simply enclose spaces; they act as thickened elements with specific functions, forming territories within the house.


Appearing almost randomly, the walls surround and intersect the interior, creating a complex spatial field where textures and materials define perception. Each wall carries its own identity, and together they blur conventional distinctions between room, furniture, and architecture.

Perception, Texture, and Territory
The independence of the walls allows multiple spatial readings to coexist. Depending on which material the occupant is aware of—whether emotionally familiar or tied to past memory—the perception of space subtly shifts. Areas expand and contract in the mind, oscillating between multiplicity and wholeness.


In this way, the house resists a single fixed spatial order. Instead, it becomes an environment where unity can be found at different scales: the whole house, individual zones, or even a single material surface.

Between Furniture and Architecture
The thickened walls also mediate between architectural scale and furniture scale. They enhance the relationship between everyday objects, built form, and the surrounding streetscape, allowing furniture and personal belongings to feel naturally embedded within the architecture.

This approach breaks down the notion of the house as a rigid container, replacing it with a more fluid and adaptable domestic landscape.
A Living, Evolving Home
As the residents’ present and future lives layer themselves onto this framework—through furniture, objects, and daily use—the house becomes increasingly complex and personal. It evolves alongside its occupants, reflecting family relationships, habits, and memories.

House in Sano is ultimately less about form and more about time. It demonstrates how architecture can quietly absorb life rather than impose itself upon it, becoming a home that feels inseparable from the people who inhabit it.

All the Photographs are works of ToLoLo studio
Popular Articles
Popular articles from the community
Free Architecture Competitions You Can Enter Right Now
No entry fees, real prizes. Here are the best free architecture competitions open for submissions in 2026.
Inverted Architecture Installation by Studio Link-Arc: Exploring the Intersection of Architecture and Living Organisms
Inverted Architecture Installation by Studio Link-Arc blends mycelium, sustainability, inverted design, ecological cycles, and urban adaptive architecture in Shenzhen.
Solar Steam: A Climate-Responsive Architecture That Redefines the Monument
A climate-responsive memorial architecture that transforms heat, decay, and time into a living system reflecting humanity’s ecological impact.
Similar Reads
You might also enjoy these articles
The Ken Roberts Memorial Delineation Competition (Krob)
As the most senior architectural drawing competition currently in operation anywhere in the world, it draws hundreds of entries each year, awarding the very best submissions in a series of medium-based categories.
Waterfront Redevelopment and Urban Revitalization in Mumbai: Forging a New Dawn for Darukhana
A transformative waterfront redevelopment project reimagining Darukhana’s shipbreaking heritage into an inclusive urban future.
OUT-OF-MAP: A Call for Postcards on Feminist Narratives of Public Space
Rhizoma Design and Research Lab invites artists, designers, architects, researchers, and students to reflect on how feminist perspectives can reshape public space. Selected works will be exhibited in Barcelona, October 2026. Submissions open until 15 April 2026.
Documentation Work on Buddhist Wooden Temple
Architectural syncretism and cultural hybridity: A comparative study of the Buddhist temples in Chattogram Hill tracks
Explore Architecture Competitions
Discover active competitions in this discipline
The International Standard for Design Portfolios
The Global Benchmark for Architecture Dissertation Awards
The Global Benchmark for Graduation Excellence
Challenge to reimagine the Iron Throne
Comments (0)
Please login or sign up to add comments
No comments yet. Be the first to comment!