A Sustainable Office Building Transformation by Helen & Hard
Innoasis by Helen & Hard is a transformative office building in Stavanger that combines industrial heritage with sustainable design, creating a green, flexible workspace with a central atrium.
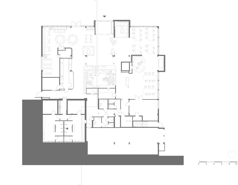
The Innoasis building, located in Stavanger, Norway, is an exemplary project that blends industrial heritage with modern sustainability and design. Designed by Helen & Hard, this 4000 m² office building underwent a major transformation of an existing 1978 structure, once the headquarters of the Norwegian Petroleum Directorate. Completed in 2022, Innoasis introduces a contemporary workspace that focuses on ecological value, innovation, and social interaction.


Architectural Transformation and Concept
Originally built with a clear industrial system—concrete columns and DT rib elements—the Innoasis renovation preserves these structural elements while giving the building a new identity. A central change was the conversion of the old backyard into a covered atrium, transforming the heart of the building into a social and collaborative hub. The atrium is framed with a striking glulam beam structure and natural spruce columns, which support a glass roof and create a bright, airy environment filled with greenery integrated into the balustrades and plant installations.




Design and Spatial Organization
The building's spatial arrangement revolves around the atrium, which functions as the core of the space, fostering both connectivity and flexibility. Meeting rooms are arranged in layers around this central space, while the outer perimeter of the building is occupied by flexible workspaces along the facades. Two additional volumes with pointed roofs are added to the existing structure, introducing new possibilities for mezzanines, workspaces, and unique spatial experiences on the third floor.


The roofs are not only functional but contribute to the building’s sustainability: they are designed with solar panels, sedum roofing, and local plant species, enhancing the ecological performance of the site. The building's overall design allows for future adaptability with a grid system for easy reconfiguration between cellular offices and open office landscapes.



Sustainable Features and Materials
The use of timber plays a significant role in the design, combining new and existing materials. Wooden slats between the concrete ribs, along with straw wallpaper in the atrium, help improve acoustic quality, creating a pleasant atmosphere while reducing sound reverberation. An existing spiral concrete stair is also preserved and reoriented as a central feature, further integrating the building’s industrial past with its modern transformation.


Greenery is another key element of the design. Plants are incorporated into the architecture, particularly within the atrium, enhancing the overall ambiance and contributing to the building's "oasis-like" atmosphere. These plants, along with the sustainable materials used throughout, support the building's high greenhouse gas reduction of over 50% compared to a reference building, contributing to the project’s BREAAM-NOR certification.



Energy Efficiency and Environmental Impact
Innoasis not only reduces the thermal energy used for heating and cooling to one-third of the original building’s requirements, but it also reduces the delivered energy to one-fourth. This transformation results in a substantial improvement in energy performance and a major reduction in carbon emissions, exemplifying the potential of adaptive reuse to create sustainable environments.




The Innoasis project exemplifies how adaptive reuse can revitalize existing structures, combining heritage with modern sustainable solutions. The building serves as an innovative workspace that prioritizes social interaction, flexibility, and ecological value. Through the clever integration of timber, green roofs, and renewable energy technologies, Innoasis is not only a testament to the power of transformation but also a blueprint for future office buildings that are both environmentally responsible and people-centered.



All Photographs are work of Sindre Ellingsen
Popular Articles
Popular articles from the community
Inverted Architecture Installation by Studio Link-Arc: Exploring the Intersection of Architecture and Living Organisms
Inverted Architecture Installation by Studio Link-Arc blends mycelium, sustainability, inverted design, ecological cycles, and urban adaptive architecture in Shenzhen.
Gads Hill Early Learning Center by JGMA: Adaptive Reuse Shaping Community-Focused Educational Architecture
Adaptive reuse transforms fragmented structure into vibrant early learning center with playful façade, natural light, and community-focused sustainable design.
Fifth NRE Jazz Club – De Bever Architecten: Eindhoven’s Revitalized Cultural Hub
Historic gas factory transformed into Fifth NRE Jazz Club blending modern sustainability, jazz culture, dining, and heritage architecture seamlessly.
Similar Reads
You might also enjoy these articles
The Ken Roberts Memorial Delineation Competition (Krob)
As the most senior architectural drawing competition currently in operation anywhere in the world, it draws hundreds of entries each year, awarding the very best submissions in a series of medium-based categories.
Waterfront Redevelopment and Urban Revitalization in Mumbai: Forging a New Dawn for Darukhana
A transformative waterfront redevelopment project reimagining Darukhana’s shipbreaking heritage into an inclusive urban future.
OUT-OF-MAP: A Call for Postcards on Feminist Narratives of Public Space
Rhizoma Design and Research Lab invites artists, designers, architects, researchers, and students to reflect on how feminist perspectives can reshape public space. Selected works will be exhibited in Barcelona, October 2026. Submissions open until 15 April 2026.
Documentation Work on Buddhist Wooden Temple
Architectural syncretism and cultural hybridity: A comparative study of the Buddhist temples in Chattogram Hill tracks
Explore Office Building Competitions
Discover active competitions in this discipline
The International Standard for Design Portfolios
The Global Benchmark for Architecture Dissertation Awards
The Global Benchmark for Graduation Excellence
Challenge to reimagine the Iron Throne
Comments (0)
Please login or sign up to add comments
No comments yet. Be the first to comment!