AOI CELESTIE: A Landmark in Coffee Roastery Architecture by Yuko Nagayama & Associates
A poetic coffee roastery in Nagoya that blends community, architecture, and nature into a serene urban landmark.
A Community Anchor in Urban Nagoya
Located at the vibrant intersection of Nishiki-dori Street and Route 153 in central Nagoya, the AOI CELESTIE Coffee Roastery stands as a beacon of contemporary coffee roastery architecture. Designed by Yuko Nagayama & Associates, this 690 m² mixed-use facility not only redefines the typical coffee shop but also acts as a cultural anchor within a high-density urban environment. Positioned directly in front of Shinsakae-machi Station, the building was envisioned by a Nagoya-based logistics company as a community revitalization project—a space where coffee, culture, and architectural serenity converge.


Architecture Inspired by Lightness and Nature
In response to the client’s ambition to create a landmark, Yuko Nagayama & Associates envisioned an architecture wrapped around a central courtyard, under a roof so light and ethereal it seems to have gently descended from the sky. This conceptual gesture brings a sense of calm and weightlessness to a site surrounded by towering high-rise apartments.


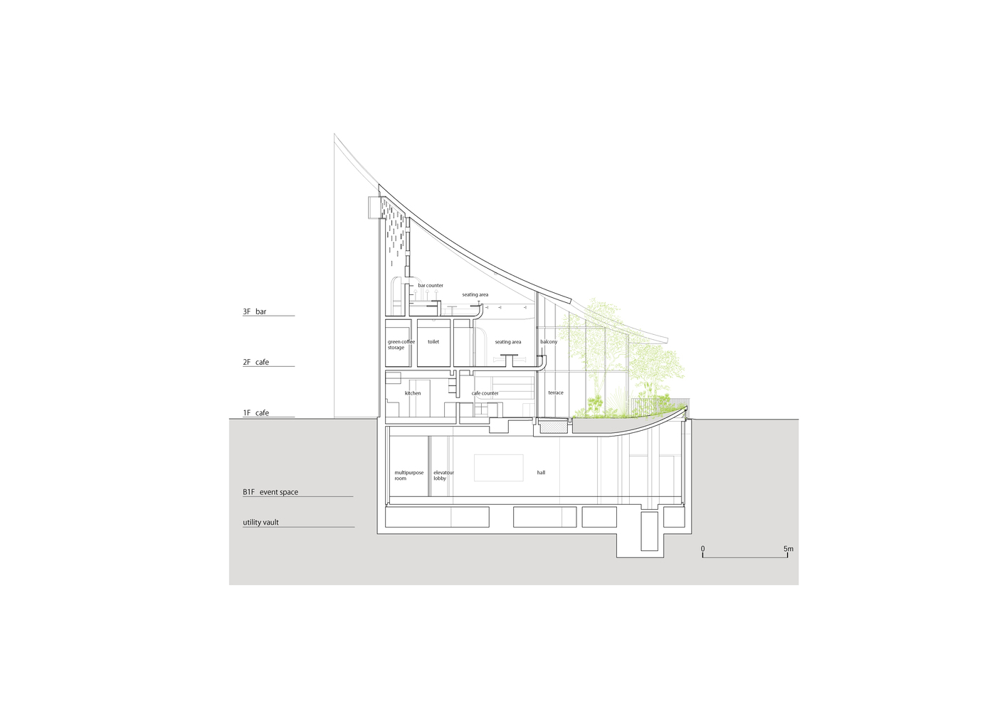
The architecture respects the site's high floor area ratio by going vertical. The complex includes a multi-purpose event hall in the basement and a three-level café above ground, organized around a sunlit courtyard. The plan cleverly integrates the indoor and outdoor spaces to create moments of respite within the dense city.


A Multi-Level Café Experience
The interior of the café is thoughtfully layered across three floors. On the ground floor, the roastery, kitchen, and service counter greet guests upon entry. Seating along the windows is recessed, directing sightlines outward and connecting patrons to the exterior view and inner courtyard.


The second floor functions entirely as a seating area, offering a quiet retreat. Here, patrons can enjoy their coffee in the presence of a lush olive grove planted in the courtyard—an intentional gesture that draws nature inward and tempers the urban context with green tranquility.

The third floor hosts a bar and lounge enveloped by the expansive roof structure. From this vantage point, customers can appreciate panoramic views of the café’s interiors, the planted courtyard, and the bustling streets below—creating a multilayered spatial dialogue between the building and its environment.


Signature Roof and Material Expression
The architectural highlight is undoubtedly the large roof, finished in custom-made ceramic tiles from Tajimi, famed for its ceramic production. These tiles exhibit a unique blue gradation, becoming the roastery’s defining visual signature. Their glaze thickness varies to create a shimmering, water-like surface that reacts to the changing weather—glowing under sunlight and channeling rainwater during storms into the landscaped garden below.


This roof acts not only as a visual spectacle but also as a symbolic "sky mirror," rooting the café in its place while simultaneously lifting it toward the atmospheric. The materiality of concrete, glass, and wood is handled with precision, balancing raw structural honesty with tactile warmth.

A White Space in the Heart of the City
AOI CELESTIE is more than a coffee roastery—it is a spatial experience designed for pause, reflection, and connection. Framed as a “white space” within the city, it provides a serene escape from the surrounding chaos. It invites the community to inhabit a new rhythm, one shaped by thoughtful design, sensory engagement, and architectural clarity.

Through its poetic integration of light, space, and material, the project positions itself as an icon of modern coffee roastery architecture—a typology that has grown in cultural significance and architectural sophistication across urban Japan. AOI CELESTIE offers a blueprint for how these spaces can go beyond their commercial function to become cultural landmarks in the urban fabric.

All Photographs are works of Nobutada OMOTE
Popular Articles
Popular articles from the community
Solar Steam: A Climate-Responsive Architecture That Redefines the Monument
A climate-responsive memorial architecture that transforms heat, decay, and time into a living system reflecting humanity’s ecological impact.
Treehouse Apartment: A Warm Timber Interior Blending Craft, Play, and Contemporary Living
Warm timber apartment with integrated treehouse, combining natural materials, craftsmanship, and playful design to create a flexible, family-oriented living environment.
The Ken Roberts Memorial Delineation Competition (Krob)
As the most senior architectural drawing competition currently in operation anywhere in the world, it draws hundreds of entries each year, awarding the very best submissions in a series of medium-based categories.
An Miên Lumière Cafe by xưởng xép, Ho Chi Minh City, Vietnam
An industrial-inspired café where layered steel and warm light create a dynamic, immersive environment shaped by reflection, depth, and perception.
Similar Reads
You might also enjoy these articles
The Ken Roberts Memorial Delineation Competition (Krob)
As the most senior architectural drawing competition currently in operation anywhere in the world, it draws hundreds of entries each year, awarding the very best submissions in a series of medium-based categories.
Waterfront Redevelopment and Urban Revitalization in Mumbai: Forging a New Dawn for Darukhana
A transformative waterfront redevelopment project reimagining Darukhana’s shipbreaking heritage into an inclusive urban future.
OUT-OF-MAP: A Call for Postcards on Feminist Narratives of Public Space
Rhizoma Design and Research Lab invites artists, designers, architects, researchers, and students to reflect on how feminist perspectives can reshape public space. Selected works will be exhibited in Barcelona, October 2026. Submissions open until 15 April 2026.
Documentation Work on Buddhist Wooden Temple
Architectural syncretism and cultural hybridity: A comparative study of the Buddhist temples in Chattogram Hill tracks
Explore Architecture Competitions
Discover active competitions in this discipline
The International Standard for Design Portfolios
The Global Benchmark for Architecture Dissertation Awards
The Global Benchmark for Graduation Excellence
Challenge to reimagine the Iron Throne
Comments (0)
Please login or sign up to add comments
No comments yet. Be the first to comment!