AP House by ALE Estudio: A Renovation Apartment in Madrid with Open Living Design
AP House by ALE Estudio is a renovation apartment in Madrid that transforms a compartmentalized dwelling into an open, sustainable home.
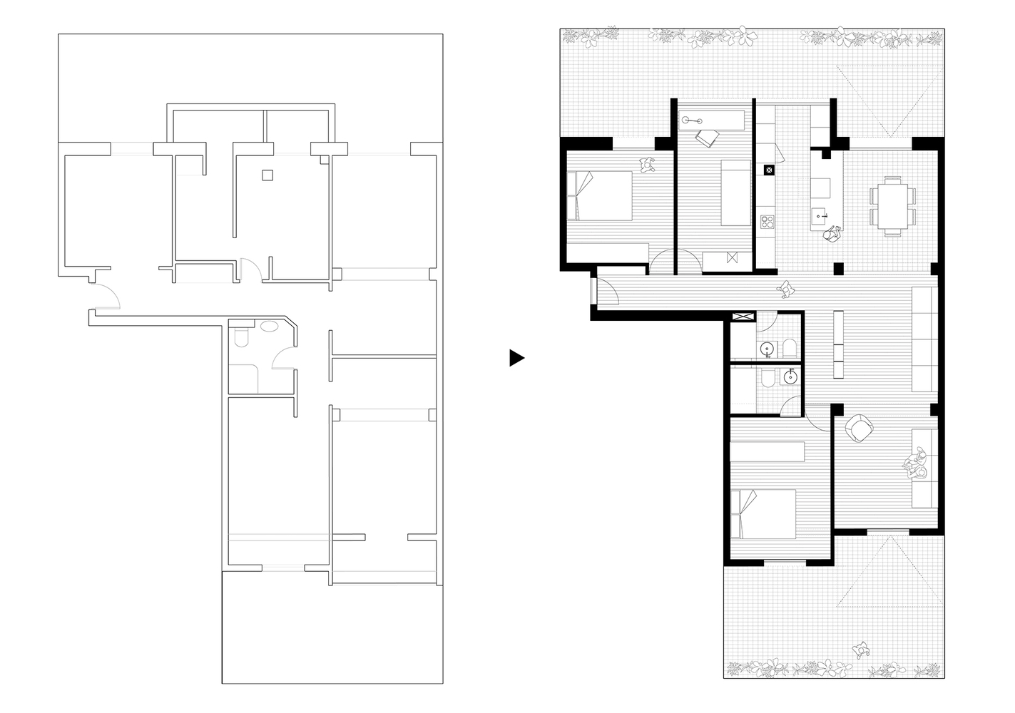
The AP House by ALE Estudio is a striking example of a renovation apartment in Madrid, where an outdated, compartmentalized dwelling was transformed into a fluid, light-filled home. With 130 m² of space and a privileged location next to Casa de Campo, the project balances openness, warmth, and sustainability, redefining modern living in the Spanish capital.


Renovation Apartment in Madrid: Redefining Space
Before the intervention, the apartment was divided into small, closed rooms that restricted light and airflow. ALE Estudio reimagined the layout by opening the interiors to create a seamless spatial flow. The two terraces became the heart of the design, extending the living room outward and establishing dual orientation with natural cross ventilation. This gesture transformed the apartment into a dynamic home where interiors and exteriors merge harmoniously.



Connection with Nature and Light
The terraces not only expand the usable area but also frame views of Casa de Campo, Madrid’s largest urban park. Natural light penetrates the home throughout the day, creating a vibrant and airy atmosphere. The terraces act as social and contemplative extensions of the living space, blurring the boundary between indoors and outdoors.




Kitchen as a Social Hub
At the center of the layout is a kitchen designed by CUBRO. It opens directly to the living room, separated by a large island that doubles as a communal high table. More than a place for cooking, the kitchen becomes a hub for gatherings, conversation, and shared moments, reflecting the contemporary lifestyle of urban apartments.



Materiality and Atmosphere
Material contrasts define the character of AP House. The exposed concrete structure brings strength and rawness, while birch wood carpentry adds warmth and intimacy. Catalan tiles enrich wet areas and extend seamlessly into the terraces, creating continuity. Reclaimed elements also find new life in the renovation—such as the old kitchen countertop, repurposed into bathroom sinks, underscoring the sustainable philosophy of the project.



Sustainable Strategies in Apartment Renovation
ALE Estudio places sustainability at the core of its design philosophy. AP House highlights the reuse of original materials, cross ventilation for passive cooling, and natural light as a primary design element. This approach not only reduces environmental impact but also enhances comfort and long-term adaptability of the home.


The AP House renovation apartment in Madrid by ALE Estudio demonstrates how thoughtful design can transform outdated housing into contemporary, comfortable, and sustainable homes. By embracing natural light, outdoor connections, and material authenticity, the project becomes a model for modern urban living in Spain.

All Photographs are works of Sergio Pradana
Popular Articles
Popular articles from the community
A Contemporary Take on Iranian Residential Architecture
A modern interior design in Mashhad that reinterprets brick, light, and spatial flow to create a warm, contemporary residential architecture.
Atelier Macri Concept Store Interior Design by CASE-REAL
Atelier Macri store features a "ko" counter, walnut wood details, cork displays, blending retail, gallery, and seamless customer experiences.
Inverted Architecture Installation by Studio Link-Arc: Exploring the Intersection of Architecture and Living Organisms
Inverted Architecture Installation by Studio Link-Arc blends mycelium, sustainability, inverted design, ecological cycles, and urban adaptive architecture in Shenzhen.
On the Brooks House by Monsoon Collective – A Contemporary Kerala Home Rooted in Tradition
Kerala home blending tradition and modernity with water-inspired design, brick architecture, courtyard planning, and sustainable rainwater harvesting strategies.
Similar Reads
You might also enjoy these articles
Top 15 Architecture Competitions to Enter in 2026
From student-friendly idea competitions to prestigious international awards, here are the best architecture competitions open for entries in 2026. Updated regularly.
DIY & Engineering in Computational Design : Enter the BeeGraphy Design Awards
Showcase Your Creativity with Computational Design and Open Source Projects

Innovative Design Solutions: Award-Winning Projects from Recent Architecture Competitions
Exploring award-winning architectural projects shaping the future of design, sustainability, and community.
Explore Architecture Competitions
Discover active competitions in this discipline
The International Standard for Design Portfolios
The Global Benchmark for Architecture Dissertation Awards
The Global Benchmark for Graduation Excellence
Challenge to reimagine the Iron Throne
Comments (0)
Please login or sign up to add comments
No comments yet. Be the first to comment!