i29 Turns a High-Rise Apartment into a Warm Sequence of Timber-Lined Rooms with a Panoramic View
A penthouse interior in the Netherlands choreographs movement through curved forms, layered thresholds, and floor-to-ceiling glass.
Most high-rise apartments default to the same playbook: open the plan, maximize the glass, let the view do the work. i29 takes a different stance with this penthouse interior. Instead of treating the panorama as a substitute for architecture, the Amsterdam-based studio builds an entire spatial narrative around it, using warm timber volumes, curved geometries, and carefully framed thresholds to turn an otherwise generic floor plate into something genuinely atmospheric.
What makes the project convincing is its refusal to choose between openness and intimacy. The plan reads as one continuous flow, yet every zone has its own character, its own light, its own material temperature. You move from pale oak cabinetry in the kitchen to dark walnut shelving walls in the dining zone to moody timber-clad alcoves in the bathroom, and none of it feels like a catalog of finishes. It feels like a single idea about enclosure and release, played out over the length of an apartment.
Thresholds That Direct the Eye



i29 uses deep, steel-framed doorways and dark timber portals to compress space before releasing it. A narrow corridor layers multiple openings in sequence, turning a walk to the kitchen into a cinematic tracking shot. The dark door frame in one view acts as a vignette, cropping the bright kitchen island and bar stools into a perfectly composed still life. These are not decorative gestures. They control pace, reward curiosity, and give the apartment a sense of depth that open plans rarely achieve.
Even the material transitions do work. Where a light wood panel meets a darker timber door at a white corner, the junction is clean but deliberate, marking a shift in territory without a wall. The apartment reads as a sequence of rooms even when no doors close.
The Kitchen as Social Anchor


The kitchen island sits at the plan's center of gravity, faced in light wood with integrated open shelving that doubles as a display wall. Three pale stools line one edge, establishing the counter as a gathering point rather than a service zone. The cabinetry wraps into a shelving unit that screens the cooking area from the dining space without severing the connection.
It is a generous kitchen, but it never reads as monumental. The proportions stay domestic, the palette stays quiet, and the detailing stays precise. i29 understands that in a home, the kitchen needs to be inviting before it is impressive.
Curved Forms and Soft Boundaries



A curved white planter holding a palm tree anchors the open living space, acting as a soft room divider between the lounge and the dining table. The gesture could be precious, but i29 scales it correctly: it is large enough to orient the plan, small enough to disappear when you are not looking at it. Nearby, a curved sectional sofa echoes the radius, reinforcing a geometry that counters the apartment's rectilinear envelope.
These curves are not random. They soften the transition between zones, guide circulation, and, critically, they frame views toward the floor-to-ceiling glass. When you sit on the sofa, the window wall is not a flat backdrop; it is something you are drawn toward by the room's own geometry.
Dining in the Grain



The dining zone is the most materially rich moment in the apartment. A horizontal walnut shelving wall runs the length of the space, its niches holding objects and palm fronds that catch the pendant light. A cylindrical pedestal table sits on an oval rug, positioned to face the cityscape through floor-to-ceiling glass. Spherical pendant lights hang low, compressing the scale and creating a sense of enclosure within the open plan.
i29 treats the dining area as the apartment's formal heart. The material density here is deliberate: you are meant to feel held, to slow down, to notice the grain. It is a dining room that earns the ritual of a meal.
The View as Protagonist


At dusk, the apartment reveals its trump card. Floor-to-ceiling windows frame a wide urban panorama, and a grand piano sits silhouetted against the fading sky, lit from below by discreet uplights. It is the kind of image that could easily tip into vanity, but i29 earns it by making the rest of the apartment just as considered. The view is not a crutch; it is the final layer in a space that already works on its own terms.
In the broader living area, wood-paneled walls and built-in shelving create a warm enclosure that keeps the glass from feeling cold. The interiors have enough material presence to hold their own against the skyline, which is exactly what prevents the apartment from becoming a transparent box.
A Bathroom Worth Inhabiting



The bathroom suite is the apartment's most atmospheric sequence. A rounded freestanding tub sits against floor-to-ceiling timber panels in dim, warm light, the space feeling more like a Nordic spa than a residential bathroom. The walk-in shower is visible through a timber-paneled alcove, and open shelving glows in recessed amber light that makes the wood grain almost tactile.
A view from the closet through the shower alcove reveals hanging garments and timber shelving, blurring the line between dressing room and wet room. i29 treats the bathroom as a spatial experience rather than a utility, connecting bathing, dressing, and storage into a continuous loop that feels private without being sealed off.
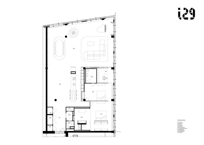
Plans and Drawings


The floor plan confirms what the photographs suggest: the apartment is organized around a central service core that houses the kitchen, bathrooms, and storage, while the perimeter is given over entirely to living, dining, and sleeping zones along the glass. The plan is open but not undifferentiated. Timber volumes, curved planters, and deep thresholds subdivide it into distinct territories without walls, allowing the view to remain a constant presence as you move through the space.
Why This Project Matters
Luxury apartment interiors tend to fall into two traps: the sterile white gallery or the overwrought material showcase. i29 avoids both by building an argument about sequence. Every room, every threshold, every change in timber species is part of a spatial choreography that gives meaning to movement through the plan. The result is an apartment that feels curated without feeling decorated.
The real lesson here is restraint with purpose. i29 uses a limited palette, curves, warm timber, glass, ambient light, and deploys it with enough variation to sustain interest across the entire floor plate. The view is spectacular, but the architecture does not depend on it. That independence is what separates a well-sited apartment from a well-designed one.
Apartment With a View by i29. Photography by Ewout Huibers.
About the Studio
Share Your Own Work on uni.xyz
If projects like this are the kind of work you want to make, uni.xyz is a place to publish your own, find collaborators, and enter design competitions.
Popular Articles
Popular articles from the community
Magic Box Office Barcelona Innovative Sustainable Workplace Design
Innovative sustainable office design featuring triangular form, ceramic façade, flexible interiors, natural light optimization, and creative workspace for modern work culture.
Split House: A Compact Urban Home Blending Privacy, Light, and Flexible Living in Japan
Compact Japanese home featuring DOMA space, flexible café potential, passive lighting, privacy zoning, and sustainable urban living design.
Rede Arquitetos Builds an Open-Air School in Fortaleza That Doubles as a Neighborhood Living Room
Educar II SESC-CE folds sports, dance, and community gathering into a courtyard campus wrapped in mesh and tropical color.
Similar Reads
You might also enjoy these articles
Filtering Space: A Gradual Spatial Experience
From urban intensity to spatial calm.
The Ken Roberts Memorial Delineation Competition (Krob)
As the most senior architectural drawing competition currently in operation anywhere in the world, it draws hundreds of entries each year, awarding the very best submissions in a series of medium-based categories.
Waterfront Redevelopment and Urban Revitalization in Mumbai: Forging a New Dawn for Darukhana
A transformative waterfront redevelopment project reimagining Darukhana’s shipbreaking heritage into an inclusive urban future.
OUT-OF-MAP: A Call for Postcards on Feminist Narratives of Public Space
Rhizoma Design and Research Lab invites artists, designers, architects, researchers, and students to reflect on how feminist perspectives can reshape public space. Selected works will be exhibited in Barcelona, October 2026. Submissions open until 15 April 2026.
Explore Architecture Competitions
Discover active competitions in this discipline
The International Standard for Design Portfolios
The Global Benchmark for Architecture Dissertation Awards
The Global Benchmark for Graduation Excellence
Challenge to reimagine the Iron Throne
Comments (0)
Please login or sign up to add comments
No comments yet. Be the first to comment!