Australis House by Sealand Architects: A Contemporary Homestead Rooted in Tradition and Nature
Australis House blends traditional Queensland design with modern sustainability, creating a family-friendly, nature-connected home in Noosa’s hinterland.
A Home That Grows with the Family
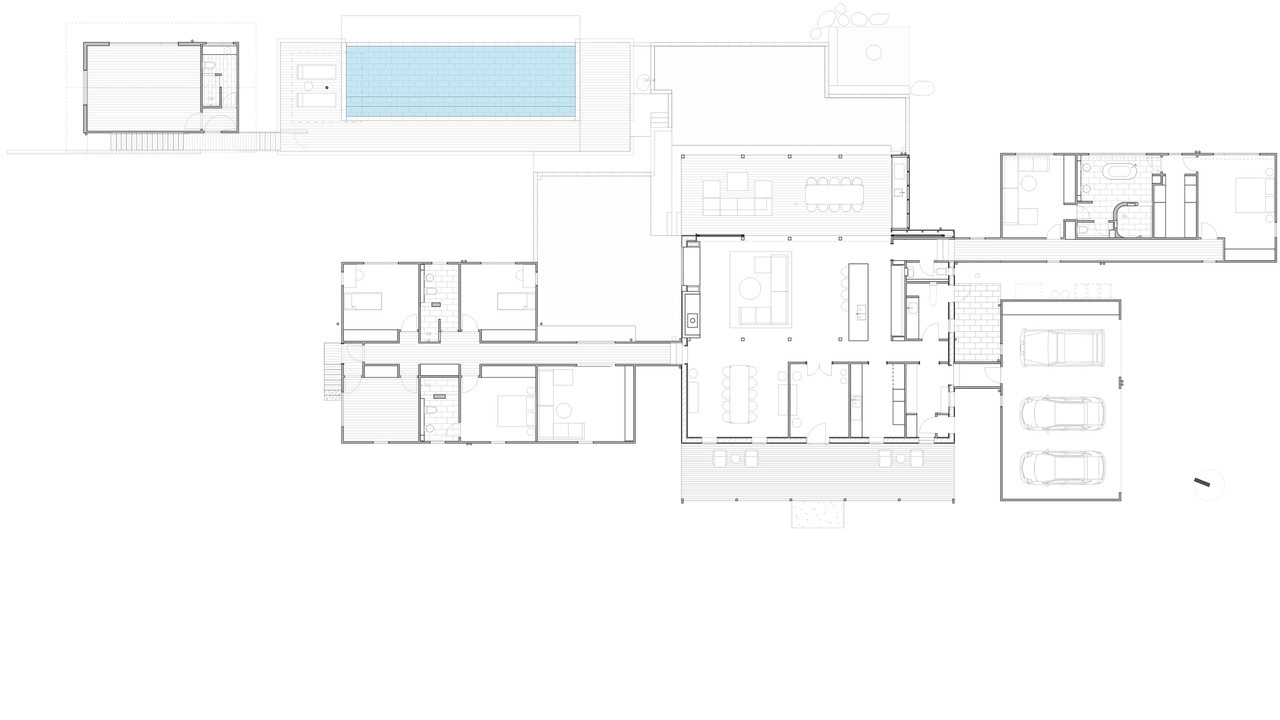
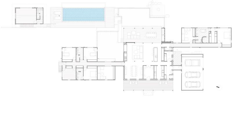
Set in the scenic Noosa hinterland of Queensland, Australis House is a refined residential design by Sealand Architects. The homeowners wanted more than just a structure—they envisioned a timeless home that nurtures family bonds, encourages connection to nature, and offers long-term adaptability as their children grow.

Designed in harmony with both climate and terrain, the 500 m² house embraces a traditional architectural soul with a modern-day sensibility—blending old-world charm with practical, future-forward design.

Architecture Inspired by Community and Landscape
Australis House is laid out to support togetherness and retreat. The layout balances communal living spaces—like a generous central kitchen and living area—with intimate zones located at opposite ends of the home. This layout ensures the house evolves with the family's changing needs, providing privacy as the children grow older, while still fostering shared moments.

Sliding glass doors and expansive windows seamlessly connect the interiors with lush gardens and the natural landscape, blurring the boundaries between inside and out. The design maximizes natural light and ventilation, allowing occupants to live in rhythm with the changing seasons.
A Nod to Queensland’s Architectural Heritage
The home's form draws direct inspiration from the traditional Queenslander homes found along the Noosa River in the late 1800s—particularly the elegant timber gable roofs and vernacular materials.
The exterior features:
- Locally sourced hardwood
- Natural stone
- Bushfire-resistant metal roofing


Internally, the palette remains honest and tactile, combining:
- Hardwood timber
- Polished concrete
- Plaster finishes
This thoughtful material selection brings warmth and texture while ensuring low-maintenance durability—a must for family living and fire-prone areas.
Farmhouse Typology Meets Sustainable Design
Australis House is more than just a single structure—it’s a series of connected pavilions, inspired by rural farmhouse typology. This modular approach:
- Follows the natural slope of the site
- Enhances connection to the landscape
- Creates a feeling of village-like intimacy


One of the key environmental challenges was the high bushfire risk. Surrounded by Australian native forests, the architects addressed this by:
- Removing flammable eucalyptus trees
- Replacing them with native rainforest species that retain moisture and create a natural bushfire buffer
This proactive landscaping not only protects the home but also fosters biodiversity and a cooler microclimate around the house.



All the photographs are works of Emma Bourne, David Chatfield
Popular Articles
Popular articles from the community
Magic Box Office Barcelona Innovative Sustainable Workplace Design
Innovative sustainable office design featuring triangular form, ceramic façade, flexible interiors, natural light optimization, and creative workspace for modern work culture.
Free Architecture Competitions You Can Enter Right Now
No entry fees, real prizes. Here are the best free architecture competitions open for submissions in 2026.
Filtering Space: A Gradual Spatial Experience
From urban intensity to spatial calm.
Alton Cliff House: A Harmonious Retreat by f2a Architecture in Lake Country, Canada
Alton Cliff House blends corten steel, prefabrication, and sustainable design, creating a luxurious, energy-efficient retreat perched on Canadian cliffs.
Similar Reads
You might also enjoy these articles
Filtering Space: A Gradual Spatial Experience
From urban intensity to spatial calm.
The Ken Roberts Memorial Delineation Competition (Krob)
As the most senior architectural drawing competition currently in operation anywhere in the world, it draws hundreds of entries each year, awarding the very best submissions in a series of medium-based categories.
Waterfront Redevelopment and Urban Revitalization in Mumbai: Forging a New Dawn for Darukhana
A transformative waterfront redevelopment project reimagining Darukhana’s shipbreaking heritage into an inclusive urban future.
OUT-OF-MAP: A Call for Postcards on Feminist Narratives of Public Space
Rhizoma Design and Research Lab invites artists, designers, architects, researchers, and students to reflect on how feminist perspectives can reshape public space. Selected works will be exhibited in Barcelona, October 2026. Submissions open until 15 April 2026.
Explore Architecture Competitions
Discover active competitions in this discipline
The International Standard for Design Portfolios
The Global Benchmark for Architecture Dissertation Awards
The Global Benchmark for Graduation Excellence
Challenge to reimagine the Iron Throne
Comments (0)
Please login or sign up to add comments
No comments yet. Be the first to comment!