Baró Tower Housing by DATAAE + Narch + Maira Arquitectes
Sustainable housing complex in Barcelona with bioclimatic atrium, passive terraces, and energy-efficient design fostering community living and climate adaptation.
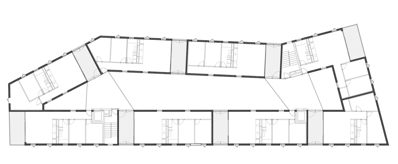
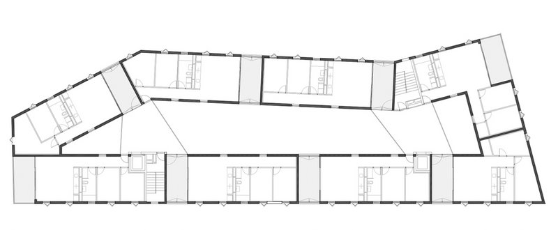
The Baró Tower Housing project in Barcelona is a landmark example of sustainable, bioclimatic architecture redefining urban living. Designed collaboratively by DATAAE, Narch, and Maira Arquitectes, this innovative residential complex embraces both environmental performance and social interaction through architectural ingenuity.

Bioclimatic Design Meets Collective Living
The building is structured around a shallow and continuous perimeter of floor patios, strategically organized to shape a central bioclimatic atrium. This shared core functions as a thermal buffer zone and social heart of the complex, creating a dynamic interplay between private and communal spaces.
This atrium acts as a climate-responsive mechanism: open and ventilated during summer to provide natural cooling, and closed in winter to form a heat-retaining greenhouse. This passive design strategy enhances energy efficiency across the building, minimizing heating and cooling loads year-round.


Blurring the Lines Between Indoors and Outdoors
Each of the residences features a terrace-gallery space—a transitional zone that adapts to seasonal conditions. In summer, these semi-open terraces promote cross-ventilation and passive cooling. In winter, they become enclosed sunspaces that naturally heat adjacent rooms, embodying the principles of the greenhouse effect.
These terraces are more than climate tools—they act as private thresholds between the indoor living areas and the urban exterior, offering both intimacy and openness. Every apartment benefits from natural light, direct views, and strong connections to the environment, thanks to the through-apartment typology that places all rooms along the facade.


Sustainable Urban Density
The Baró Tower exemplifies how high-density housing can be sustainable, community-oriented, and architecturally elegant. The design integrates passive energy strategies, adaptive typologies, and thermal zoning, setting a precedent for low-energy housing in dense urban contexts.
The architecture promotes social sustainability as much as environmental performance. By providing generous shared spaces, inviting circulation areas, and informal gathering points, it encourages interaction among residents and builds a sense of community.
This thoughtful integration of environmental consciousness, spatial flexibility, and urban livability places the Baró Tower Housing among the most forward-thinking residential projects in contemporary Barcelona.



All the photographs are works of Adrià Goula
Popular Articles
Popular articles from the community
Magic Box Office Barcelona Innovative Sustainable Workplace Design
Innovative sustainable office design featuring triangular form, ceramic façade, flexible interiors, natural light optimization, and creative workspace for modern work culture.
TGK Nirasaki Plant: A Smart Factory Blending Technology, Landscape, and Wellness
Smart factory in Japan blending IoT manufacturing, scenic trail design, natural ventilation, and landscape integration to enhance user experience and sustainability.
20 Most Popular Commercial Architecture Projects of 2025
From sustainable market concepts to heritage factories, the commercial buildings and proposals that drew the most attention on uni.xyz this year.
Marvila Apartment Renovation in Lisbon: A Bright Minimalist Attic Transformation by KEMA Studio
Bright attic transformed into minimalist Lisbon apartment with skylights, sustainable materials, open plan layout, and industrial-inspired interior design elements.
Similar Reads
You might also enjoy these articles
Filtering Space: A Gradual Spatial Experience
From urban intensity to spatial calm.
The Ken Roberts Memorial Delineation Competition (Krob)
As the most senior architectural drawing competition currently in operation anywhere in the world, it draws hundreds of entries each year, awarding the very best submissions in a series of medium-based categories.
Waterfront Redevelopment and Urban Revitalization in Mumbai: Forging a New Dawn for Darukhana
A transformative waterfront redevelopment project reimagining Darukhana’s shipbreaking heritage into an inclusive urban future.
OUT-OF-MAP: A Call for Postcards on Feminist Narratives of Public Space
Rhizoma Design and Research Lab invites artists, designers, architects, researchers, and students to reflect on how feminist perspectives can reshape public space. Selected works will be exhibited in Barcelona, October 2026. Submissions open until 15 April 2026.
Explore Architecture Competitions
Discover active competitions in this discipline
The International Standard for Design Portfolios
The Global Benchmark for Architecture Dissertation Awards
The Global Benchmark for Graduation Excellence
Challenge to design mud housing for contemporary communities
Comments (0)
Please login or sign up to add comments
No comments yet. Be the first to comment!