Boathouse Design in New Zealand: Boathouse 01 by Michael Cooper Architects
A stunning exploration of Boathouse 01 by Michael Cooper Architects, blending maritime functionality with sustainable design in Auckland, New Zealand.
A Unique Boathouse Along Auckland’s Herne Bay
Nestled into the breathtaking Pohutukawa-lined cliffs of Auckland’s Herne Bay, Boathouse 01 is a masterful blend of functionality and architectural elegance. Designed by the acclaimed Michael Cooper Architects, this bespoke structure seamlessly integrates with its environment, offering both practicality and aesthetic appeal for maritime enthusiasts.

The Vision Behind Boathouse 01
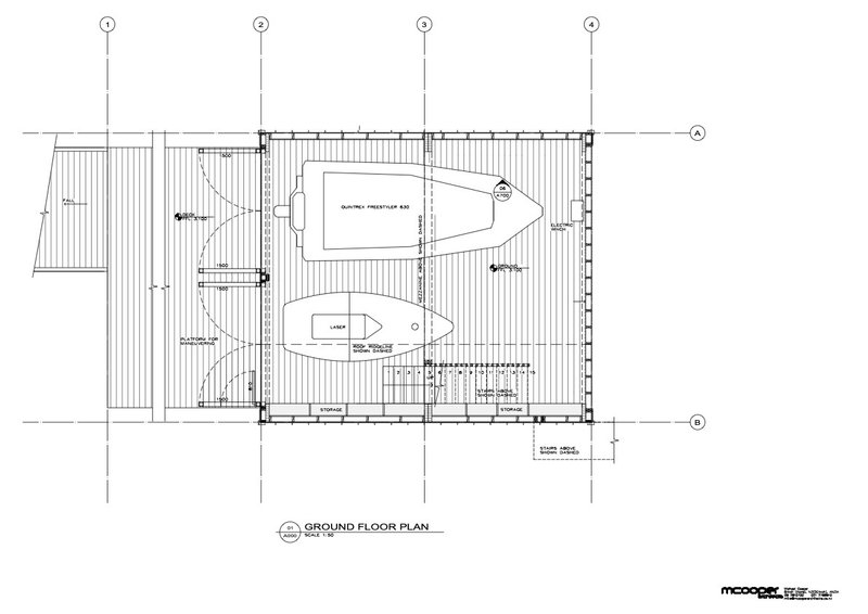
Boathouse 01 was conceived to provide an efficient and beautiful space for the client's boating needs. Its purpose includes housing a fully rigged Laser yacht and powerboat, while offering direct access to the stunning Waitematā Harbor. This boathouse is not merely a storage facility—it’s a gateway to New Zealand's rich maritime culture.
The design respects its natural surroundings and provides a harmonious connection between land and sea. Every detail, from its materials to its form, reflects a commitment to sustainability and functional artistry.


Architectural Design Inspired by Tradition
Gable Form with Modern Refinements
Boathouse 01 pays homage to the traditional gable house, featuring a carefully crafted asymmetrical structure. The exterior of the boathouse is clad in dark corrugated panels, which blend seamlessly into the rugged cliffside. This minimalist material palette enhances the sense of balance between the building and its natural environment.
The structure’s decking, made of purpleheart hardwood, descends gracefully to the water's edge, providing a tactile and visual connection to the harbor.

Translucent Cladding for Dynamic Aesthetics
One of the standout features of the boathouse is its translucent cladding, which lines both the front and rear facades. This element mimics the sails of a yacht when the doors are open, creating a fluid, nautical-inspired aesthetic. At night, the cladding transforms the building into a glowing lantern, adding a magical ambiance to the shoreline.

Interior Design: A Marriage of Functionality and Beauty
Materials and Layout
The interior of Boathouse 01 reflects a meticulous focus on maritime functionality and visual harmony. The walls are lined with Meranti plywood, creating a warm and inviting atmosphere. Laminated timber portal frames, reminiscent of traditional boat construction, provide structural integrity while adding to the boathouse’s aesthetic appeal.
Workspace and Storage
The boathouse offers a clever integration of space, with a mezzanine workspace positioned above the main storage area. Custom shelving ensures efficient storage for boating equipment, while the open-plan design allows for seamless movement and workflow.

Structural and Construction Details
Collaboration for Excellence
The project brought together a skilled team of professionals to realize its vision:
- Architects: Michael Cooper Architects
- Structural Engineers: AMX Structures Limited
- Builders: IBL Building Limited
Their collaborative efforts resulted in a structure that combines engineering ingenuity with architectural finesse, meeting the client's needs while honoring the site's natural beauty.


Sustainability and Environmental Integration
Boathouse 01 exemplifies sustainable design principles. By using durable and locally sourced materials such as purpleheart hardwood and Meranti plywood, the project minimizes its environmental impact. The dark corrugate cladding reduces visual disruption to the natural cliffside, while the translucent panels harness natural light, reducing energy consumption.


Why Boathouse Design Matters in New Zealand
New Zealand's rich maritime culture has always inspired innovative architectural solutions. Boathouse designs like this one showcase the country’s ability to harmonize utility with artistry, reflecting a deep respect for the surrounding environment.
Architectural marvels such as Boathouse 01 inspire future projects that prioritize sustainable living, functional spaces, and a connection to New Zealand’s breathtaking landscapes.


A Masterpiece of Modern Boathouse Design
Boathouse 01 by Michael Cooper Architects is a remarkable example of boathouse design in New Zealand, merging maritime tradition with cutting-edge architecture. From its seamless integration into the natural cliffside to its refined interior details, this project sets a new standard for functional elegance.
Whether you are an architecture enthusiast or a boating aficionado, this boathouse is a testament to how thoughtful design can enhance our connection to both nature and purpose.



All the photographs are work of Mark Scowen
Popular Articles
Popular articles from the community
Gads Hill Early Learning Center by JGMA: Adaptive Reuse Shaping Community-Focused Educational Architecture
Adaptive reuse transforms fragmented structure into vibrant early learning center with playful façade, natural light, and community-focused sustainable design.
Fifth NRE Jazz Club – De Bever Architecten: Eindhoven’s Revitalized Cultural Hub
Historic gas factory transformed into Fifth NRE Jazz Club blending modern sustainability, jazz culture, dining, and heritage architecture seamlessly.
Atelier Macri Concept Store Interior Design by CASE-REAL
Atelier Macri store features a "ko" counter, walnut wood details, cork displays, blending retail, gallery, and seamless customer experiences.
Similar Reads
You might also enjoy these articles
The Ken Roberts Memorial Delineation Competition (Krob)
As the most senior architectural drawing competition currently in operation anywhere in the world, it draws hundreds of entries each year, awarding the very best submissions in a series of medium-based categories.
Waterfront Redevelopment and Urban Revitalization in Mumbai: Forging a New Dawn for Darukhana
A transformative waterfront redevelopment project reimagining Darukhana’s shipbreaking heritage into an inclusive urban future.
OUT-OF-MAP: A Call for Postcards on Feminist Narratives of Public Space
Rhizoma Design and Research Lab invites artists, designers, architects, researchers, and students to reflect on how feminist perspectives can reshape public space. Selected works will be exhibited in Barcelona, October 2026. Submissions open until 15 April 2026.
Documentation Work on Buddhist Wooden Temple
Architectural syncretism and cultural hybridity: A comparative study of the Buddhist temples in Chattogram Hill tracks
Explore Architecture Competitions
Discover active competitions in this discipline
The International Standard for Design Portfolios
The Global Benchmark for Architecture Dissertation Awards
The Global Benchmark for Graduation Excellence
Challenge to reimagine the Iron Throne
Comments (0)
Please login or sign up to add comments
No comments yet. Be the first to comment!