Bohio Pavilion by SAW.EARTH: A Kinetic Shade Structure for East Harlem
The Bohio Pavilion is a kinetic, sustainable shade structure in East Harlem, honoring Puerto Rican heritage through adaptive, community-driven design.
A Community-Centered Pavilion Inspired by Puerto Rican Heritage
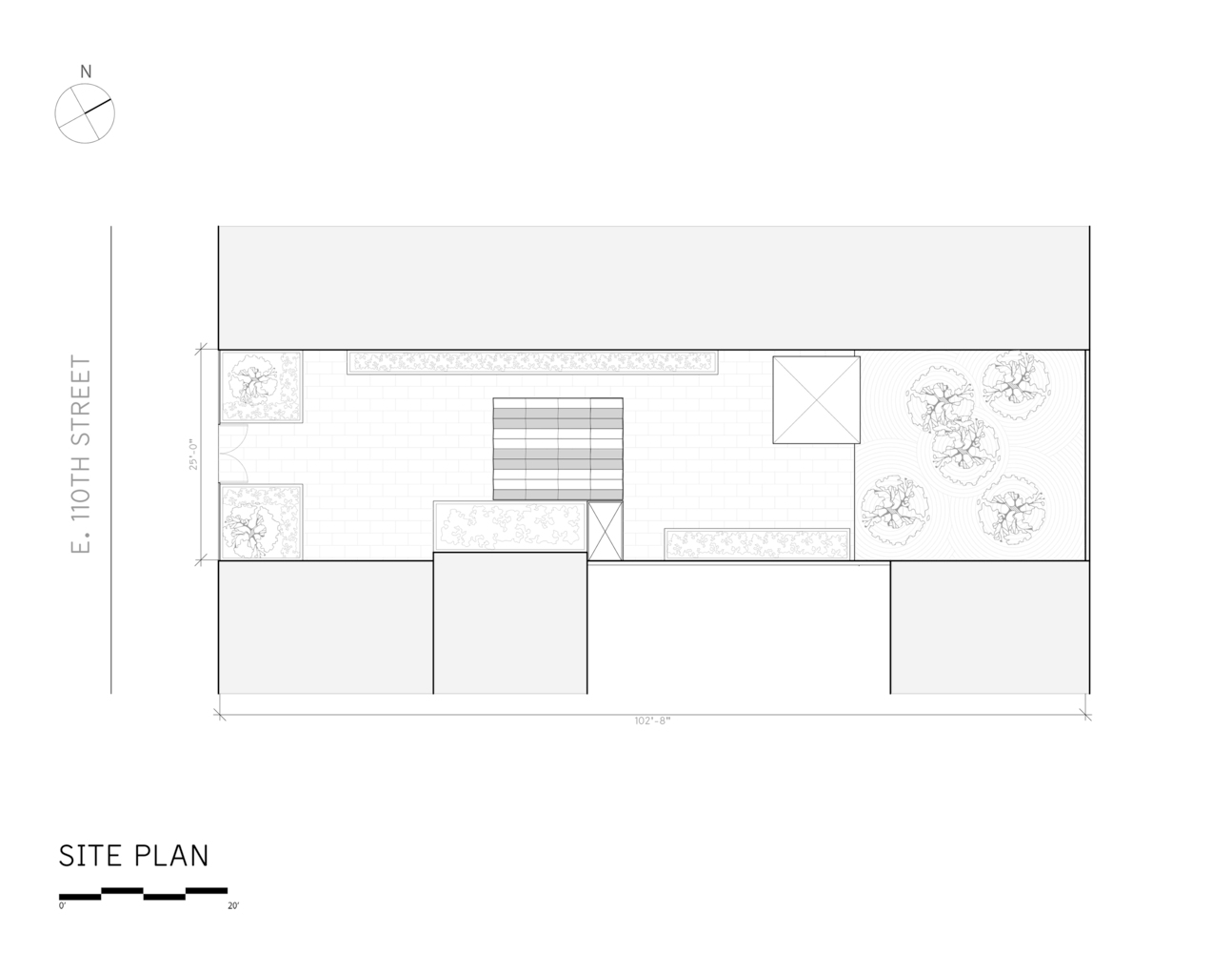
The Bohio Pavilion, designed by SAW.EARTH, is a dynamic architectural installation in East Harlem, New York City. Built in collaboration with students from the New York Institute of Technology Graduate School of Architecture, this innovative kinetic shade structure serves as a vital addition to the El Cataño Community Garden.
With a compact footprint of 144 square feet, the pavilion provides a flexible, climate-responsive shelter that adapts to changing environmental and social needs. Using compressed gas springs and mechanical winches, the roof can open or close, offering shade on sunny days or protection from rain, ensuring year-round usability.


A Cultural Landmark in East Harlem
Commonly known as El Barrio, East Harlem is home to one of the largest Latinx communities in New York City, particularly Puerto Rican residents. The El Cataño Community Garden acts as a cultural hub, hosting events ranging from domino tournaments and exercise classes to children’s storytime.
The pavilion was thoughtfully designed in collaboration with local community members, ensuring it met the diverse needs of the space. Inspired by the Bohio, a traditional Taino timber-and-thatch structure, the design pays homage to the indigenous architecture of Puerto Rico while integrating modern materials and engineering.



Sustainability and Symbolism in Design
Constructed from cedar and stainless steel, the Bohio Pavilion’s structure is both durable and lightweight. The roof, made from recycled aluminum, is a graphic translation of the Puerto Rican flag, a powerful symbol of identity and resilience. Notably, this flag was banned in Puerto Rico from 1898 to 1952 under U.S. rule, making its presence in East Harlem a profound statement of cultural pride and resistance.
The pavilion not only celebrates Puerto Rican heritage but also serves as an example of sustainable architecture in urban environments. Its adaptable design demonstrates how traditional building techniques can be reinterpreted with contemporary materials to create responsive, eco-friendly structures.

A Testament to Community-Driven Architecture
The Bohio Pavilion is more than just a shade structure—it is a living space for cultural exchange, an architectural response to community needs, and a symbol of Puerto Rican resilience. Through collaborative design and sustainable innovation, SAW.EARTH and the NYIT Graduate School of Architecture have created a pavilion that seamlessly blends history, functionality, and environmental consciousness.
All Photographs are works of Christian Larsen
Popular Articles
Popular articles from the community
Treehouse Apartment: A Warm Timber Interior Blending Craft, Play, and Contemporary Living
Warm timber apartment with integrated treehouse, combining natural materials, craftsmanship, and playful design to create a flexible, family-oriented living environment.
Louis Malle Cinema: A Limestone Cultural Landmark Revitalizing Community Life in Prayssac
Limestone cinema extension with public forecourt, blending heritage and modern design to create flexible cultural spaces and strengthen community interaction.
Solar Steam: A Climate-Responsive Architecture That Redefines the Monument
A climate-responsive memorial architecture that transforms heat, decay, and time into a living system reflecting humanity’s ecological impact.
A Contemporary Take on Iranian Residential Architecture
A modern interior design in Mashhad that reinterprets brick, light, and spatial flow to create a warm, contemporary residential architecture.
Similar Reads
You might also enjoy these articles
The Ken Roberts Memorial Delineation Competition (Krob)
As the most senior architectural drawing competition currently in operation anywhere in the world, it draws hundreds of entries each year, awarding the very best submissions in a series of medium-based categories.
Waterfront Redevelopment and Urban Revitalization in Mumbai: Forging a New Dawn for Darukhana
A transformative waterfront redevelopment project reimagining Darukhana’s shipbreaking heritage into an inclusive urban future.
OUT-OF-MAP: A Call for Postcards on Feminist Narratives of Public Space
Rhizoma Design and Research Lab invites artists, designers, architects, researchers, and students to reflect on how feminist perspectives can reshape public space. Selected works will be exhibited in Barcelona, October 2026. Submissions open until 15 April 2026.
Documentation Work on Buddhist Wooden Temple
Architectural syncretism and cultural hybridity: A comparative study of the Buddhist temples in Chattogram Hill tracks
Explore Architecture Competitions
Discover active competitions in this discipline
The International Standard for Design Portfolios
The Global Benchmark for Architecture Dissertation Awards
The Global Benchmark for Graduation Excellence
Challenge to design a portable theatre
Comments (0)
Please login or sign up to add comments
No comments yet. Be the first to comment!