Bối Bống House / TRAN TRUNG Architects
A compact live-work house in Da Nang using courtyard, rainwater harvesting, and passive cooling to create a healing, nature-integrated living environment.
Located at the end of a quiet alley in Da Nang, Bối Bống House is an intimate experimental dwelling that explores how architecture can heal, nurture, and rebalance life in dense urban environments. Designed by TRAN TRUNG Architects and completed in 2025, the 80-square-metre residence accommodates a three-generation family while integrating a small architectural studio, creating a symbiotic relationship between living and working.


Conceived as a research model rather than a conventional house, the project positions nature as an active participant in daily life. Light, wind, water, sound, and vegetation are carefully choreographed to restore sensory awareness and reconnect inhabitants with natural rhythms.

A Refuge Within the City
Situated in a narrow alley, Bối Bống House is deliberately detached from the visual and acoustic chaos of the surrounding city. This secluded location becomes an asset, allowing the building to function as a refuge where stillness and reflection can flourish.

Instead of closing itself off defensively, the house opens inward. Its spatial organization prioritizes internal landscapes over street-facing gestures, shifting attention from external disorder to internal harmony.
This inward orientation establishes the emotional foundation of the project: a place where the mind can slow down and recalibrate.

Living and Working in Symbiosis
The clients—a young, three-generation family running a small architectural practice—required a home that could support both domestic life and professional creativity. Rather than separating these functions rigidly, the architects envisioned a symbiotic model where work and life coexist and enrich one another.

The house is composed of two seemingly independent volumes—one primarily domestic, the other focused on work—linked by a central garden. This open core functions as a shared breathing space where family members, colleagues, and nature intersect.
Visual transparency and spatial overlap encourage informal exchanges, reinforcing the idea that creativity emerges from everyday interactions.

The Central Garden as Climatic Engine
At the heart of Bối Bống House lies a lush courtyard containing vegetation and a shallow fish pond. This garden is both symbolic and performative.
The roof slopes inward toward this void, channeling rainwater via exposed steel chains into a collection system that feeds the pond and irrigates plants. During rainfall, this system transforms precipitation into a multisensory event—audible, visible, and tactile.

Under strong sunlight, the pond functions as a passive cooling device. Evaporation generates air convection, drawing cooler breezes from the East and Northeast through the house. This natural ventilation strategy significantly reduces indoor temperatures during Da Nang’s intense summers.
The courtyard thus becomes a microclimatic regulator, sustaining comfort without mechanical dependence.
Architecture as Sensory Landscape
Bối Bống House is designed to engage all human senses. Rather than prioritizing visual spectacle, it cultivates subtle, continuous sensory experiences.
- Sound: birdsong, rain on metal roofs, flowing water, distant roosters
- Touch: wooden surfaces, cool stone, moving air
- Smell: earth, vegetation, timber
- Light: filtered daylight through foliage and screens

These elements create an ever-changing atmosphere that responds to time, weather, and season. The house becomes a living instrument, tuned to environmental variation.
This sensory richness encourages mindfulness and emotional well-being, counteracting the sensory overload of urban life.
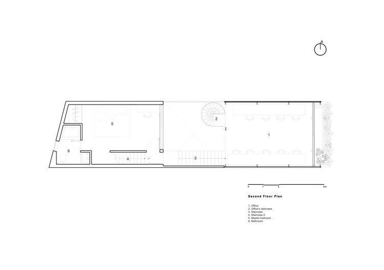
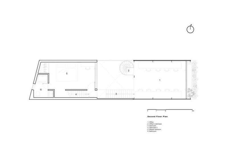
Spatial Organization in a Compact Footprint
With only 80 square meters of built area, spatial efficiency was essential. The architects adopted a vertical organization with layered floors and visual connections between levels.

Open staircases, voids, and internal windows allow light and air to circulate freely. Spaces remain interconnected, preventing the house from feeling cramped despite its small size.
Private and shared areas are subtly differentiated through level changes, material shifts, and lighting rather than solid partitions. This maintains flexibility and visual continuity.

Material Warmth and Craft
Material selection reinforces the house’s intimate atmosphere. Wood dominates interior surfaces, introducing warmth and tactility. Natural stone, ceramic finishes, and exposed structural elements add texture and durability.


Manufacturers such as Enic, Vietceramics, and Vicostone contributed to high-quality finishes that balance aesthetics and longevity. The restrained palette ensures that vegetation, water, and light remain the primary protagonists.
Handcrafted details and honest construction methods further enhance the sense of authenticity.

Reconnecting with Primal Rhythms
The architects describe the project as an attempt to reconnect inhabitants with “primal biological rhythms.” Everyday experiences—sunrise, rainfall, breeze, and dusk—are made perceptible through architecture.


Children play freely in the courtyard, learning to relate to nature intuitively. Elderly family members cultivate vegetables, finding comfort in routine and greenery. Younger residents and designers rediscover inspiration in abundant daylight and calm surroundings.
These interactions transform the house into a living ecosystem rather than a static container.

Sustainability as Ethical Practice
Sustainability in Bối Bống House is not treated as a technical add-on but as an ethical stance. Passive cooling, rainwater harvesting, daylight optimization, and natural ventilation form the backbone of environmental performance.


By minimizing energy consumption and fostering ecological awareness, the project acts as a pedagogical tool for future architects and residents alike.
It demonstrates that small-scale housing can meaningfully address climate responsibility while enhancing quality of life.
A Healing Architecture
More than a residence, Bối Bống House operates as a therapeutic environment. Its inward focus, sensory richness, and natural systems support mental clarity, emotional balance, and physical comfort.


Architecture here becomes a medium for healing—counteracting stress, fragmentation, and disconnection through spatial empathy.
This approach reflects a growing movement in Southeast Asian architecture that emphasizes well-being, community, and environmental stewardship.
All the Photographs are works of Khanh Nguyen
Popular Articles
Popular articles from the community
The Ken Roberts Memorial Delineation Competition (Krob)
As the most senior architectural drawing competition currently in operation anywhere in the world, it draws hundreds of entries each year, awarding the very best submissions in a series of medium-based categories.
Treehouse Apartment: A Warm Timber Interior Blending Craft, Play, and Contemporary Living
Warm timber apartment with integrated treehouse, combining natural materials, craftsmanship, and playful design to create a flexible, family-oriented living environment.
Inverted Architecture Installation by Studio Link-Arc: Exploring the Intersection of Architecture and Living Organisms
Inverted Architecture Installation by Studio Link-Arc blends mycelium, sustainability, inverted design, ecological cycles, and urban adaptive architecture in Shenzhen.
Louis Malle Cinema: A Limestone Cultural Landmark Revitalizing Community Life in Prayssac
Limestone cinema extension with public forecourt, blending heritage and modern design to create flexible cultural spaces and strengthen community interaction.
Similar Reads
You might also enjoy these articles
The Ken Roberts Memorial Delineation Competition (Krob)
As the most senior architectural drawing competition currently in operation anywhere in the world, it draws hundreds of entries each year, awarding the very best submissions in a series of medium-based categories.
Waterfront Redevelopment and Urban Revitalization in Mumbai: Forging a New Dawn for Darukhana
A transformative waterfront redevelopment project reimagining Darukhana’s shipbreaking heritage into an inclusive urban future.
OUT-OF-MAP: A Call for Postcards on Feminist Narratives of Public Space
Rhizoma Design and Research Lab invites artists, designers, architects, researchers, and students to reflect on how feminist perspectives can reshape public space. Selected works will be exhibited in Barcelona, October 2026. Submissions open until 15 April 2026.
Documentation Work on Buddhist Wooden Temple
Architectural syncretism and cultural hybridity: A comparative study of the Buddhist temples in Chattogram Hill tracks
Explore Architecture Competitions
Discover active competitions in this discipline
The International Standard for Design Portfolios
The Global Benchmark for Architecture Dissertation Awards
The Global Benchmark for Graduation Excellence
Challenge to reimagine the Iron Throne
Comments (0)
Please login or sign up to add comments
No comments yet. Be the first to comment!