Borgloon Fruit Station: Revitalizing Belgium’s Historic Railway into a Cultural Gateway by Burolandschap
Borgloon Fruit Station transforms a historic railway into a cultural gateway, blending heritage, landscape design, and community along Belgium’s Fruit Route.
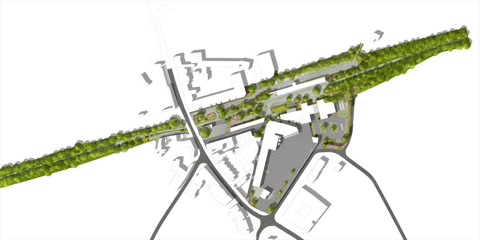
The Borgloon Fruit Station, designed by Burolandschap in collaboration with A2o architects, is a transformative public space project in Tongeren-Borgloon, Belgium. Completed in 2024, this redevelopment breathes new life into the historic railway site, reimagining it as a cultural hub and gateway to the Fruit Route, a cycling and walking path that celebrates the rich heritage of Belgium’s fruit industry.
Historical Background: From Railway to Fruit Route
The origins of the Fruit Route trace back to railway line 23, built in 1879 to transport fruit and sugar beets between Sint-Truiden and Tongeren. After the dismantling of the tracks in 1971, the line was repurposed into a cycling route that today links Sint-Truiden, Borgloon, and Tongeren through a scenic green corridor.
For decades, the former station area served only as a functional storage site for city services. Recognizing its cultural and historical importance, Borgloon began redevelopment efforts in 2007, envisioning the site as both a heritage landmark and a recreational hub for the community.
Transformation into a Cultural Public Space
The renewed Borgloon Fruit Station stands as a vibrant meeting place, connecting visitors with the story of fruit cultivation and rail history. Designed with a mix of historical preservation and modern interventions, the station square reflects the legacy of the region while inviting contemporary use.

A newly designed pavilion by A2o architects recalls the silhouette of the old station building. Its elongated form incorporates covered, semi-covered, and open zones, resembling platforms where travelers once gathered. This versatile structure houses a reception area, a bicycle repair station, resting areas, and adaptable event spaces.
Landscape and Planting Concept
The station’s unique planting strategy celebrates the biodiversity of the Haspengouw region. Native perennials, biodiverse herbs, shrubs, wild roses, and fruit-bearing trees are carefully layered to evoke the region’s agricultural traditions. Visitors are immersed in a lush environment that simultaneously honors the past and promotes ecological sustainability.
Original cobblestones have been reinstalled to preserve the authentic character of the square, while historic train tracks are both reinstated and reinterpreted. Some are set in their original alignment, while others are recast in modern concrete elements, creating modular linear patterns across the site—a subtle nod to the railway’s enduring presence.

Materiality and Heritage References
Local limestone, historically used throughout the site’s heyday, forms the foundation of the paving and prefabricated elements. Loose stones of varying sizes are incorporated in designated zones, encouraging the growth of flora and fauna and enriching biodiversity. This material-driven approach roots the station firmly in its geographical and cultural context.


A Gateway to the Fruit Route
The Borgloon Fruit Station is more than an architectural project—it is a symbolic threshold to the Fruit Route. From here, cyclists and walkers begin their journey into the rolling landscapes of Haspengouw, experiencing a dialogue between history, culture, and nature.

By transforming a disused railway station into a cultural public space, Burolandschap and A2o architects have created a living heritage site that bridges the past and future. The Borgloon Fruit Station is a celebration of Belgium’s fruit-growing legacy, a hub for sustainable tourism, and a timeless gateway into the landscapes of the Fruit Route.

All photographs are works of Pieter Rabijns
Popular Articles
Popular articles from the community
Atelier Macri Concept Store Interior Design by CASE-REAL
Atelier Macri store features a "ko" counter, walnut wood details, cork displays, blending retail, gallery, and seamless customer experiences.
Free Architecture Competitions You Can Enter Right Now
No entry fees, real prizes. Here are the best free architecture competitions open for submissions in 2026.
Inverted Architecture Installation by Studio Link-Arc: Exploring the Intersection of Architecture and Living Organisms
Inverted Architecture Installation by Studio Link-Arc blends mycelium, sustainability, inverted design, ecological cycles, and urban adaptive architecture in Shenzhen.
Similar Reads
You might also enjoy these articles
The Ken Roberts Memorial Delineation Competition (Krob)
As the most senior architectural drawing competition currently in operation anywhere in the world, it draws hundreds of entries each year, awarding the very best submissions in a series of medium-based categories.
Waterfront Redevelopment and Urban Revitalization in Mumbai: Forging a New Dawn for Darukhana
A transformative waterfront redevelopment project reimagining Darukhana’s shipbreaking heritage into an inclusive urban future.
OUT-OF-MAP: A Call for Postcards on Feminist Narratives of Public Space
Rhizoma Design and Research Lab invites artists, designers, architects, researchers, and students to reflect on how feminist perspectives can reshape public space. Selected works will be exhibited in Barcelona, October 2026. Submissions open until 15 April 2026.
Documentation Work on Buddhist Wooden Temple
Architectural syncretism and cultural hybridity: A comparative study of the Buddhist temples in Chattogram Hill tracks
Explore Architecture Competitions
Discover active competitions in this discipline
The International Standard for Design Portfolios
The Global Benchmark for Architecture Dissertation Awards
The Global Benchmark for Graduation Excellence
Challenge to reimagine the Iron Throne
Comments (0)
Please login or sign up to add comments
No comments yet. Be the first to comment!