Bosjes Guesthouse and Spa: A Harmonious Blend of Cape Dutch Heritage and Contemporary Design
Discover how Bosjes Guesthouse and Spa balances Cape Dutch heritage with contemporary architecture amidst South Africa’s scenic Breede River Valley.
A Historical Jewel in the Breede River Valley
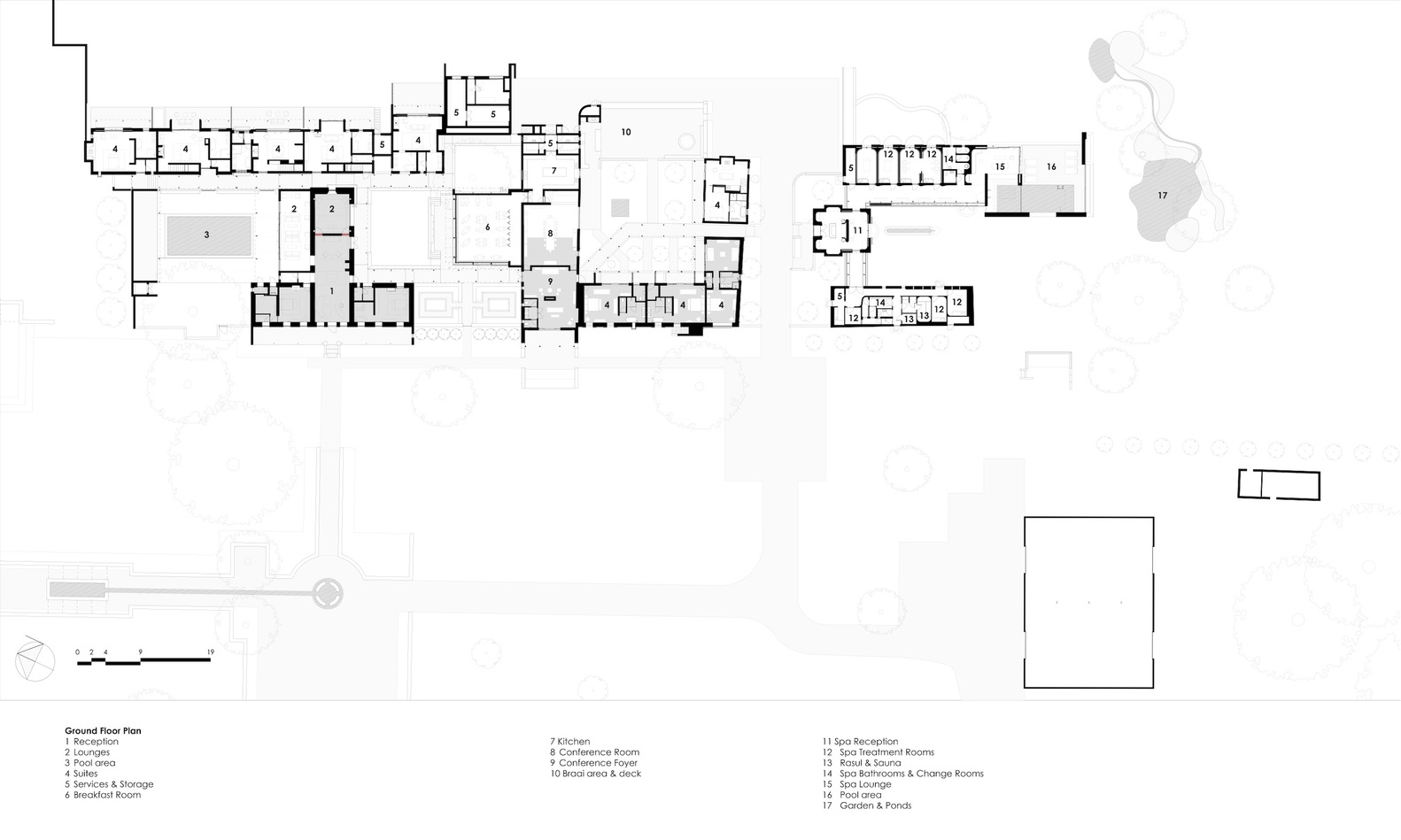
Bosjes Guesthouse and Spa, designed by Meyer & Associates Architects and Urban Designers, reimagines an old Cape Dutch farmstead nestled in the scenic Breede River Valley near Worcester, South Africa. The project sits just an hour and a half from Cape Town, offering visitors a tranquil retreat steeped in history and surrounded by breathtaking natural beauty. The Bosjes Farm dates back to 1790 and is renowned for its characteristic Cape Dutch architecture, including the iconic gable of the Herehuis (manor house) at the base of the Waaihoek Mountains.


Preserving Historical Integrity
The design of the Bosjes Guesthouse and Spa pays homage to the farm’s historical elements. The Herehuis retains its original Cape Dutch yellowwood front door, a centerpiece that maintains the domestic charm of the building. The architects carefully positioned new additions behind the original structures, ensuring the historical façade remains undisturbed. This linear extension of the existing architecture respects the traditional layout of Cape Dutch farms, with courtyards designed to shield guests from harsh regional winds while framing stunning mountain views.

Contemporary Additions with Agricultural Inspiration
A key feature of the project is the new wing of guest suites, positioned discreetly behind the Herehuis. Clad in dark corrugated sheeting, the design draws inspiration from the utilitarian structures of rural farm buildings in the area. This modern material palette contrasts subtly with the white plaster of the historical Herehuis, maintaining a respectful hierarchy between the old and new. The interiors showcase a curated collection of South African art, including bespoke installations like Lorenzo Nassimbeni's concrete and brass wall piece, adding a contemporary artistic dimension to the traditional setting.


The Breakfast Room: A Glass-Enclosed Sanctuary
The Breakfast Room, one of the most prominent communal spaces, is a steel-framed glass box nestled under the shade of a large coral tree. This pavilion-like structure is strategically sunken into one of the courtyards, blending seamlessly with the surrounding landscape. Guests enjoy an intimate dining experience shielded by lush vegetation, with unobstructed views of the natural environment.



Transforming the Stables into a Modern Spa
The historical stables, or Stalle, mark the southern end of the property and have been reconfigured into a state-of-the-art spa. The extension interprets the low, understated architecture of the original building with a modern twist. Traditional elements such as barn doors, reconstructed water troughs, and klompie brickwork lend authenticity to the design. The spa features treatment rooms, a lounge that opens to a sheltered courtyard, and an indoor-outdoor pool that offers uninterrupted views of the mountains.



A Landscape of Serenity
At the heart of the spa experience lies an indigenous experiential garden, designed by acclaimed landscape architect Franchesca Watson. The garden includes tranquil water ponds and a variety of native plants, creating a serene environment that encourages relaxation and contemplation. The carefully designed outdoor spaces connect seamlessly with the architecture, enhancing the overall guest experience.



A Celebration of Heritage and Modernity
The Bosjes Guesthouse and Spa embodies a harmonious blend of historical preservation and contemporary design. By respecting the integrity of the Cape Dutch architecture while introducing modern elements inspired by the surrounding agricultural landscape, Meyer & Associates have created a space that is both timeless and innovative. Visitors are invited to immerse themselves in the rich cultural heritage of the Breede River Valley, with every architectural detail designed to enhance their connection to the land and its history.


All Photographs are works of Paris Brummer, Claire Gunn