Madeiguincho Tucks a Timber Tiny House Beneath the Oaks of a Portuguese Garden
Brava House is a compact plywood retreat in Portugal where every detail, down to a ceiling branch, defers to its oak grove setting.
There is a particular kind of tiny house project that treats smallness as an aesthetic pose, all Pinterest-ready minimalism and lifestyle branding. Then there are projects like Brava House by Madeiguincho, where compactness is genuinely in service of something: a 30-square-meter retreat that exists not to demonstrate how little you can live with, but to slip quietly beneath a canopy of mature oaks and disappear into its garden context in Portugal.
What makes Brava House worth attention is not its footprint but the rigor with which every spatial decision reinforces a single idea. The building defers to the trees. Its sloped roof echoes the fall of light through the canopy. Its weathered timber cladding will, over a few seasons, match the bark of the oaks around it. And inside, a single raw branch left integrated into the vaulted plywood ceiling acts as a quiet thesis statement: the forest was here first, and the architecture knows it.
A Pavilion Under the Canopy



From the outside, Brava House reads less as a building and more as a garden structure that simply grew more serious. Vertical timber siding wraps the volume in a consistent grain that accepts the dappled shadows of the oak grove above. The sloped roof and extended deck reinforce a pavilion typology: open, ground-hugging, and respectful of the root zones around it. It is the kind of structure that looks better the more overgrown things get.
Madeiguincho's siting decision is critical. The cabin sits far enough beneath a dominant oak that the tree canopy provides both shade and a visual ceiling, compressing the apparent height of the structure. A dog in a basket on the deck suggests this is not a weekend concept, but a working retreat occupied in daily, ordinary ways.
The Deck as Threshold


The covered deck does most of the spatial heavy lifting. A slatted reed ceiling filters light above, while full-height sliding glass doors dissolve the boundary between interior and exterior. In good weather, which Portugal provides generously, the usable floor area of the house effectively doubles. The deck is not an afterthought or a balcony tacked on for appeal; it is the primary living space during daylight hours.
Small details confirm a handmade ethos. The carved timber door handle, paired with a simple metal lockset against the rough vertical siding, signals an economy of means where ornament is extracted from the construction process itself rather than applied.
Plywood Interior and the Logic of the Section



Inside, the entire volume is lined in plywood: walls, ceiling, cabinetry. The material palette is singular, which keeps the small space from feeling cluttered with competing surfaces. A vaulted ceiling pulls the eye upward and gives the main room a sense of volume that contradicts the modest plan. Most strikingly, a raw tree branch has been left in place within the ceiling structure, crossing the plywood vault like a natural beam. It is the kind of move that could feel gimmicky but here reads as a structural fact, a reminder of the landscape's authorship.
Storage is handled through a compact wall of built-in cabinets and a loft above the kitchen counter, accessed by what the section drawings reveal as a split-level arrangement. Everything is within arm's reach. The kitchen counter sits below the storage loft, making the cooking zone feel compressed but functional, while the living area benefits from the full ceiling height.
Sleeping Within the Trees


The sleeping alcove is raised on a platform, creating both a spatial separation from the main living volume and an opportunity for under-bed storage. Horizontal windows at mattress height frame the oak grove at exactly the moment you are lying down, turning the bedroom into something closer to a treehouse than a cabin. Corner windows in one configuration catch afternoon light and wrap the view around the occupant.
Madeiguincho understood that in a tiny house, the bed is not furniture. It is a room. The platform, the window placement, and the low plywood ceiling overhead create an enclosure that feels intentional and protective without being claustrophobic.
Plans and Drawings




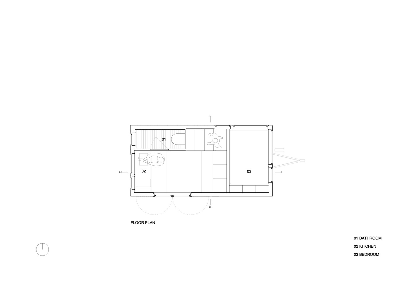
The floor plan reveals a straightforward rectangular layout: bathroom at one end, kitchen in the middle, sleeping platform at the other. There is no corridor, no wasted space, and no ambiguity about circulation. The section drawings are more revealing. They show how the split-level arrangement, with stairs connecting the main floor to the sleeping loft and storage zones, multiplies the usable area within a single-story volume. Human figures in the sections confirm the tight but generous proportions.
The elevations document the four facades with their vertical timber cladding and carefully placed window openings. North and west elevations are relatively closed, while the south and east faces open up with larger glazing to capture light and garden views. The asymmetric roof pitch is legible in section: steeper on the entry side, lower on the garden side, directing rainwater away from the deck.
Why This Project Matters
Brava House matters because it takes the tiny house genre seriously as architecture. Too many compact dwellings rely on novelty or the romance of reduction without addressing the harder questions: how does a small building relate to its site, how does its section create spatial variety, and how do its details hold up to close inspection? Madeiguincho answers all three. The building sits within its landscape rather than on top of it. Its section is genuinely inventive, stacking functions vertically to liberate horizontal space. And its details, from the branch in the ceiling to the hand-carved door handle, reward attention.
The project also demonstrates that prefabrication and craft are not opposites. Madeiguincho's workshop-based approach to timber construction allows for a level of precision and material consistency that site-built cabins rarely achieve, while the design itself insists on the particular: this tree, this garden, this angle of Portuguese light. That tension between the repeatable and the specific is what makes Brava House more than a clever small building. It is a considered piece of architecture.
Brava House by Madeiguincho, Portugal. Photography by João Carranca.
About the Studio
Madeiguincho
Official website of Madeiguincho, one of the studios behind this project.
madeiguincho.ptShare Your Own Work on uni.xyz
If projects like this are the kind of work you want to make, uni.xyz is a place to publish your own, find collaborators, and enter design competitions.
Popular Articles
Popular articles from the community
Takeshi Hosaka Architects Suspends a Concrete Cross Above a Yokohama Cemetery
A 28-square-meter burial renovation in Yokohama lifts the symbol of resurrection into the sky so mourners see it against heaven.
YOAP Architects Round a Corner in Yeongcheon with a Cylindrical Community Hub
A 197-square-meter brick and ribbed-clad tower turns a forgotten alley corner in South Korea into a public garden with a low threshold.
Rojkind Arquitectos and Think Parametric Build a Glueless Pavilion from 67 Interlocking Panels
A serpentine fiber-cement installation in Chapultepec Park celebrates a decade of architectural media in Mexico City.
RDTH architekti Rips Out Nearly Every Wall in a Prague Apartment and Replaces Them with Furniture
A 101-square-meter post-war flat in Prague trades rigid partitions for a single rotated furniture block, curtains, and glass concrete.
Similar Reads
You might also enjoy these articles
Olio Towers: A Mid-Rise for Performers That Fuses Housing, Rehearsal, and Stage
Located blocks from Houston's Theater District, this modular tower stacks living units around a central performance atrium.
Oasis: Modular Green Housing Carved into Dhaka's Urban Fabric
A shortlisted Plugin Housing entry reclaims unauthorized settlements in Dhaka with stepped concrete volumes, green roofs, and ventilation-driven design.
Black Hole: A Floating Megastructure for the Post-Physical Era
Emiliano Mazzarotto envisions a spherical, self-scaling arena where e-sports, digital hotels, and holographic stadiums replace traditional public space.
Compact & Sustainable Living in Piraeus: A Four-Level Family Home Built Around Light and Air
A narrow townhouse in one of Greece's densest port cities uses a central atrium and passive strategies to house three generations under one roof.
Explore Architecture Competitions
Discover active competitions in this discipline
The International Standard for Design Portfolios
The Global Benchmark for Architecture Dissertation Awards
The Global Benchmark for Graduation Excellence
Challenge to reimagine the Iron Throne
Comments (0)
Please login or sign up to add comments
No comments yet. Be the first to comment!