Brazilian Slope House: Grecov House by ARQBR Blends Architecture with Landscape
A modern Brazilian slope house designed by ARQBR that harmonizes with its natural forested site through material, form, and light.
Architecture Rooted in Topography and Nature
Grecov House by ARQBR Arquitetura e Urbanismo exemplifies a contemporary Brazilian slope house that seamlessly integrates with its natural surroundings. Situated in the Residential Alphaville II condominium, just off DF-140 on the outskirts of Brasília, the 3423 ft² home utilizes the natural terrain to sculpt an immersive living experience. Designed by architects Eder Alencar and André Velloso, the house is a bold yet respectful intervention that engages with the native riparian forest, transforming a sloped site into a layered architectural narrative.





Entrance as Spatial Connector
The architectural composition introduces two interlocking volumes unified by a large wooden panel at the entrance, which faces the inner side of the residential community. This gesture creates a welcoming front that contrasts with the north-facing rear façade, where carefully placed openings frame expansive views of the forest. These apertures serve not only as sources of daylight but also as meditative portals that dissolve the boundary between interior life and nature.





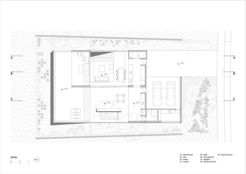
Ground Floor Social Core
The primary living spaces are located on the ground floor, where the layout encourages fluid interaction among the living room, dining area, kitchen, guest bathroom, and barbecue space. These elements are orchestrated around a central patio, which functions as both a visual overlook and a vibrant social hub. The patio design not only links the interiors but also opens them up to the landscape, enhancing cross-ventilation and framing shifting views of the forest.



A monolithic floor stretches throughout the shared living areas, anchoring the design in visual and material continuity. The use of in-situ concrete and eco-bricks introduces a tactile authenticity to the construction, reflecting ARQBR’s dedication to handcrafted materials and sustainable design.



Semi-Underground Intimate Zone
Beneath the main living spaces, the semi-underground level houses the private quarters of the home. By lowering this tier below the natural ground level, the design achieves a grounded visual connection with the surrounding garden. This level includes an office and bedroom suites, offering quietude and privacy while maintaining a direct relationship with the outdoor landscape at eye level.



This section of the house is strategically embedded into the terrain, creating thermal benefits while fostering an introspective spatial atmosphere. Despite its recessed location, the use of expansive glazing ensures that daylight and nature remain central themes in every room.



Daylight as an Architectural Element
In the living room, lateral skylights allow shafts of natural light to filter through the ceiling, creating the illusion of a floating concrete slab. This poetic interplay between light and mass elevates the architectural language of the house, emphasizing volume, depth, and time.


The use of natural light across the day transforms interior experiences—mornings are characterized by diffused serenity, while afternoons invite a richer warmth that dances across wood, brick, and stone.


A Dialogue Between Structure and Site
Grecov House stands as a refined example of how modern Brazilian architecture can engage responsibly and expressively with the landscape. The project’s slope-responsive design avoids excessive excavation or leveling. Instead, it allows the house to rest gently along the topography, letting architecture and earth coalesce.



The residence is not just a place of shelter, but a platform for contemplation—a Brazilian slope house that offers an evolving dialogue between domestic life and the wild textures of nature.


Popular Articles
Popular articles from the community
Atelier Macri Concept Store Interior Design by CASE-REAL
Atelier Macri store features a "ko" counter, walnut wood details, cork displays, blending retail, gallery, and seamless customer experiences.
The Ken Roberts Memorial Delineation Competition (Krob)
As the most senior architectural drawing competition currently in operation anywhere in the world, it draws hundreds of entries each year, awarding the very best submissions in a series of medium-based categories.
Split House: A Compact Urban Home Blending Privacy, Light, and Flexible Living in Japan
Compact Japanese home featuring DOMA space, flexible café potential, passive lighting, privacy zoning, and sustainable urban living design.
Similar Reads
You might also enjoy these articles
The Ken Roberts Memorial Delineation Competition (Krob)
As the most senior architectural drawing competition currently in operation anywhere in the world, it draws hundreds of entries each year, awarding the very best submissions in a series of medium-based categories.
Waterfront Redevelopment and Urban Revitalization in Mumbai: Forging a New Dawn for Darukhana
A transformative waterfront redevelopment project reimagining Darukhana’s shipbreaking heritage into an inclusive urban future.
OUT-OF-MAP: A Call for Postcards on Feminist Narratives of Public Space
Rhizoma Design and Research Lab invites artists, designers, architects, researchers, and students to reflect on how feminist perspectives can reshape public space. Selected works will be exhibited in Barcelona, October 2026. Submissions open until 15 April 2026.
Documentation Work on Buddhist Wooden Temple
Architectural syncretism and cultural hybridity: A comparative study of the Buddhist temples in Chattogram Hill tracks
Explore Architecture Competitions
Discover active competitions in this discipline
The International Standard for Design Portfolios
The Global Benchmark for Architecture Dissertation Awards
The Global Benchmark for Graduation Excellence
Challenge to reimagine the Iron Throne
Comments (0)
Please login or sign up to add comments
No comments yet. Be the first to comment!