Breaking the Mold: A Unique Restaurant Experience by Di Youkuang Architectural Design Studio
Ready to Experience an Unforgettable Culinary Adventure? Explore the Enchanting Abstract Restaurant Design!
Challenging Conventional Design
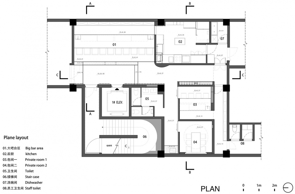
Di Youkuang Architectural Design Studio has recently unveiled their latest project, a restaurant that aims to redefine the traditional norms of commercial design. Moving away from style-oriented design and symbolic elements that often dominate restaurant spaces, the architects have instead focused on creating a truly unique and abstract environment that relies on texture and volume.



A Bold Approach to Design
The client's primary request was to create a darker atmosphere throughout the restaurant, which presented the design team with an opportunity to experiment with bold volume manipulation, taking advantage of the high ceilings. The result is a striking space that challenges expectations and captivates visitors the moment they step off the elevator.


Creating Contrast and Embracing Openness
Upon entering the restaurant, guests are immediately greeted by a large hanging volume that compresses the space, enhancing the sense of openness that follows. In contrast, the far wall features stones piled randomly, creating a striking juxtaposition against the smooth ceiling. This textured surface is further accentuated by the dim lighting emanating from rustic logs suspended above the counter.


Private Rooms with a Twist
The architects have also designed unique private rooms that showcase their commitment to three-dimensional design. One private room features a sushi counter that resembles a stack of rectangular volumes, while another boasts a table beneath a Pantheon-inspired domed ceiling that allows light to pour in. Even the restroom is minimalistic, finished with only mortar paint.


Envisioning a World of Unlimited Design Possibilities
Di Youkuang Architectural Design Studio's latest project is a testament to the power of creative freedom in design. By challenging conventional expectations of how a restaurant "should" look, they have created a space that invites guests to reimagine the possibilities of what a dining experience can be. The architects believe that design should be unrestricted and boundless, allowing for unconventional combinations such as a Chinese restaurant in a cathedral or a French fine dining experience in a traditional temple.


Breaking Free from the Status Quo
In a world where style-driven design often results in similar spaces, this restaurant stands as a bold statement against the conformity that can stifle creativity. Di Youkuang Architectural Design Studio has successfully demonstrated the potential for innovation in the realm of commercial design, encouraging others to follow suit and challenge the status quo.
Embracing the Spirit of Abstract Design
By focusing on texture and volume, the architects have transformed the restaurant into an abstract space that defies traditional categorization. The result is an environment that encourages guests to engage with the space on a deeper level, transcending the superficialities of style and symbolism.
A Lasting Impression
The unique design of this restaurant is sure to leave a lasting impression on all who visit, establishing it as a must-see destination for architecture and design enthusiasts. This project showcases the incredible potential of Di Youkuang Architectural Design Studio and serves as a reminder that the possibilities for design are truly limitless when we dare to break free from the confines of convention.
The innovative approach taken by Di Youkuang Architectural Design Studio in creating this groundbreaking restaurant serves as a shining example for the future of architectural design. By daring to defy conventional norms and embracing a more abstract and texture-driven approach, the design team has succeeded in crafting a truly distinctive space that sets itself apart from other dining establishments. As more architects and designers take inspiration from this unique project, we can look forward to a future where commercial spaces are designed with the same level of creativity, innovation, and boundless imagination.



Address: Beijing, China
Area: 190㎡
Interior Design: Di Youkuang Architectural Design Studio (Di Youkuang, Ming Da, Xiao Yang, Hong Xiuxiu)
Planning: Beijing Mingyi Brand Design Co., Ltd.
Electromechanical Design: Beijing Dongzhou Intercontinental Technology Consulting Co., Ltd. (Ishikawa Xingming, Takebayashi Katsunobu, Yamazaki Takashi)
Construction: Beijing Senyang Yuanhang Architectural Decoration Co., Ltd.
Photo: Ruijing Photo
Completion: March 2023
Popular Articles
Popular articles from the community
An Miên Lumière Cafe by xưởng xép, Ho Chi Minh City, Vietnam
An industrial-inspired café where layered steel and warm light create a dynamic, immersive environment shaped by reflection, depth, and perception.
Flamboyant House by Juliana Camargo + Prumo Projetos
Modern Brazilian house integrating existing tree, pool, and volumes with glass, wood, and transitional spaces blending interior, exterior, and landscape seamlessly.
Atelier Macri Concept Store Interior Design by CASE-REAL
Atelier Macri store features a "ko" counter, walnut wood details, cork displays, blending retail, gallery, and seamless customer experiences.
The Ken Roberts Memorial Delineation Competition (Krob)
As the most senior architectural drawing competition currently in operation anywhere in the world, it draws hundreds of entries each year, awarding the very best submissions in a series of medium-based categories.
Similar Reads
You might also enjoy these articles
The Ken Roberts Memorial Delineation Competition (Krob)
As the most senior architectural drawing competition currently in operation anywhere in the world, it draws hundreds of entries each year, awarding the very best submissions in a series of medium-based categories.
A Contemporary Take on Iranian Residential Architecture
A modern interior design in Mashhad that reinterprets brick, light, and spatial flow to create a warm, contemporary residential architecture.
Franche-Comté Advanced School of Engineering by Dominique Coulon & associés, Besançon
A flexible engineering school immersed in woodland, combining concrete minimalism, adaptable spaces, and natural light to support evolving educational environments.
Waterfront Redevelopment and Urban Revitalization in Mumbai: Forging a New Dawn for Darukhana
A transformative waterfront redevelopment project reimagining Darukhana’s shipbreaking heritage into an inclusive urban future.
Explore Interior Design Competitions
Discover active competitions in this discipline
The Global Benchmark for Architecture Dissertation Awards
Challenge to design luxury tourism on rails
VR headsets Storefront design competition
Designing a staircase for a client
Comments (0)
Please login or sign up to add comments
No comments yet. Be the first to comment!