Burr Studio's Blasón warehouse conversion in Madrid is a one-of-a-kind space
The team at Burr Studio did an amazing job of retaining the character of the original warehouse while still creating a modern and stylish interior

Madrid's industrial architecture has been gradually disappearing over the past 30 years due to the shift of industrial activity from the city centre to its outskirts. This is primarily due to the "explosive rise" in property values in the city, which has resulted in the re-zoning of prime locations, according to Spanish design firm Burr Studio. The studio also points to changes in traffic density, noise, and environmental protection measures that have made it difficult for the industry to remain close to the central business district. As a result, industrial buildings in the city are at risk of extinction, with residential development being the most likely to take over former industrial sites. Urban planning regulations also encourage property owners to change the land use from industrial to residential, which often requires demolishing parts of the property, such as warehouses.

BURR STUDIO CONVERTS BLASÓN WAREHOUSE IN MADRID To save and preserve Madrid's industrial history, Burr Studio created the Elements for Industrial Recovery project series. This series aims to inspire others to approach changes to the city's built environment in a way that protects industrial heritage. The team's proposals aim to provide alternatives for land use and occupation that extend the life of these industrial structures and prevent their demolition.

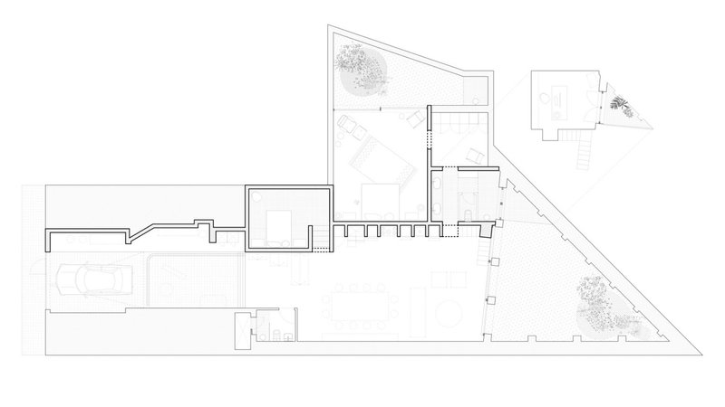
Blasón, the latest project in Burr's Elements for Industrial Recovery series, is a chic two-bedroom writer's residence located in a converted warehouse. The building's industrial roots are prominently displayed through the use of Tyrolean plaster on the existing walls. This plaster, with its creamy appearance, creates a cohesive surface while still allowing the patchwork of bumps and joins from the different wall materials to be identifiable. The single air volume connects all the spaces at different heights and serves as a storied backdrop for the residence.

The Blasón residence is connected to a long boundary wall that connects the former warehouse to its neighbouring property. However, a new, more sturdy wall has been inserted into the centre of the residence. This central spine serves as a dividing line between the public and private areas of the home. The spine also serves as a hub for many of the home's amenities, including the kitchen, main bedroom and bathroom, guest bedroom, and a staircase leading to an upper-level office with a small blue balcony. The designers of the residence, the Burr team, describe how different elements of the spine create ledges, gaps, abutments, and buttresses. These features serve specific purposes, such as supporting the kitchen or providing a platform for a metal staircase leading to the study. Some of the ground-level voids have even been converted into storage bays with plywood cabinet faces.

The white concrete brick wall, which is "superficially clad" to support certain features, divides the bedrooms and bathrooms from the shared areas of the house like the garage, gym, open-plan kitchen, dining, and living room. Major openings along the spine provide access to the bedrooms and bathrooms. In the kitchen, the wall is clad in stainless steel for the splashback, and in the bathrooms and bedrooms, it is covered in ceramic mosaic tiles for durability and easy maintenance, as well as to add colour.

The roof of the building has an original metal structure that is described as "extremely slender" by Burr Studio. To increase its strength, the architects added steel bars without increasing the thickness of the elements. However, in order to restore the original design of the building, the architects had to remove the extensions that had been added over the years. These extensions had created internal courtyards, which the architects decided to restore in order to improve cross-ventilation and allow natural light into the interior spaces. The restoration of these courtyards also changed the appearance of the exterior and the rhythm of the facade.
"Our proposals aim to protect the industrial heritage of the city through land-use and occupation alternatives."









References (1)
Popular Articles
Popular articles from the community
Inverted Architecture Installation by Studio Link-Arc: Exploring the Intersection of Architecture and Living Organisms
Inverted Architecture Installation by Studio Link-Arc blends mycelium, sustainability, inverted design, ecological cycles, and urban adaptive architecture in Shenzhen.
An Miên Lumière Cafe by xưởng xép, Ho Chi Minh City, Vietnam
An industrial-inspired café where layered steel and warm light create a dynamic, immersive environment shaped by reflection, depth, and perception.
Solar Steam: A Climate-Responsive Architecture That Redefines the Monument
A climate-responsive memorial architecture that transforms heat, decay, and time into a living system reflecting humanity’s ecological impact.
Treehouse Apartment: A Warm Timber Interior Blending Craft, Play, and Contemporary Living
Warm timber apartment with integrated treehouse, combining natural materials, craftsmanship, and playful design to create a flexible, family-oriented living environment.
Similar Reads
You might also enjoy these articles
Zhuxi Wonderland: Reimagining Traditional Chinese Gardens by Doarchi Architects
Zhuxi Wonderland by Doarchi Architects reinterprets traditional Yangzhou gardens, integrating courtyards, pavilions, and tea houses in modern cultural design.
Doble Soga House: A Contemporary Brick Residence Rooted in Landscape in Quito, Ecuador
Brick house in Quito integrating nature, flexible living spaces, exposed materials, and rooftop terrace, creating warm contemporary architecture for modern family life.
Al Gharra Mosque in Medina Redefining Contemporary Islamic Architecture
Minimalist Medina mosque using concrete, light, and landscape to reinterpret Islamic worship spaces through symbolic spiritual transitions and contemporary architecture.
Viczonecode Villa by DDconcept – Tropical Family Living in Ho Chi Minh City
Tropical family villa in Ho Chi Minh City featuring courtyards, skylights, natural ventilation, elevated flooring, and seamless indoor–outdoor living surrounded by greenery.
Explore Architecture Competitions
Discover active competitions in this discipline
The International Standard for Design Portfolios
The Global Benchmark for Architecture Dissertation Awards
The Global Benchmark for Graduation Excellence
Challenge to design mud housing for contemporary communities
Comments (0)
Please login or sign up to add comments
No comments yet. Be the first to comment!