Camera House: Architecture as a Lens on Landscape
A contemporary Canadian house designed as a spatial lens, framing light and landscape to create an intimate, perceptual experience of place.
Set within the dramatic geography of British Columbia’s Pemberton Valley, Camera House is a refined architectural response to landscape, light, and perception. Designed by Leckie Studio Architecture + Design and completed in 2022, the 2,650-square-foot, two-bedroom residence occupies a sloped five-acre site at the foot of the Lillooet Range, framed by the towering peaks of the Garibaldi Range. Rather than dominating its setting, the house operates as an instrument—carefully calibrated to capture, filter, and frame the surrounding environment.

True to its name, Camera House is conceived as a spatial device, inspired by the mechanics of a camera. Its architecture choreographs views, modulates light, and establishes focal depths that guide the inhabitant’s perception of place. The result is a home that does not merely sit within the landscape, but actively interprets it—revealing moments of intimacy and vastness with cinematic precision.



A Site Defined by Geological Time and Scale
The Camera House site is marked by a powerful sense of geological permanence. Mature trees, moss-covered boulders, and uneven terrain define the foreground, with some stones having rested on the land for thousands of years. Beyond this immediate environment, the valley opens to layered mountain views that establish a strong visual hierarchy.

To the south, the dramatic peaks of the Garibaldi Range—including Ts’zil (2,591 m), Hibachi (2,603 m), and Gravell (2,802 m)—form a distant yet commanding backdrop. To the northeast, Owl Ridge (Lil’wat, 2,073 m) rises as a dominant midground feature, anchoring the house within its regional context.
This layered landscape became the conceptual foundation of the project. Leckie Studio approached the site not as a static panorama, but as a sequence of visual planes—foreground, midground, and background—each deserving careful architectural attention.


Architecture Inspired by the Camera
The guiding metaphor behind Camera House is the camera itself: a tool that captures reality through framing, focus, aperture, and exposure. Just as a camera isolates and directs attention, the architecture is designed to filter the vastness of the surroundings into curated moments of experience.
Rather than offering continuous panoramic glazing, the house employs precise view corridors and selective openings. These moments of framing heighten awareness, encouraging occupants to engage deeply with specific aspects of the landscape—whether a distant mountain ridge, the texture of treetops, or the shifting light of the sky.

In this way, Camera House rejects the idea of passive viewing. Instead, it promotes an active and perceptual relationship between architecture, inhabitant, and environment.
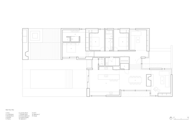
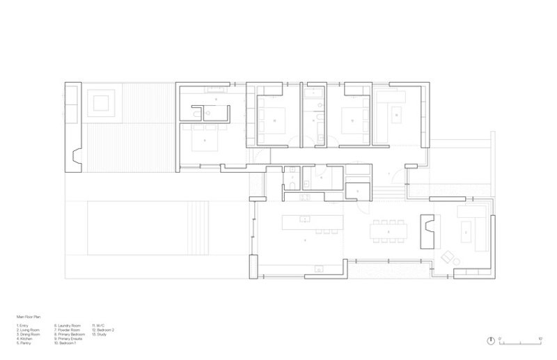
Four Interlocking Volumes
The house is composed of four interlocking volumes, each capped with a gently sloped roof. This fragmented massing allows the building to step with the terrain, reducing its visual impact while creating varied interior conditions.


Each volume is oriented slightly differently, responding to topography, sunlight, and views. Together, they form a cohesive whole that balances openness and enclosure. The spaces between volumes frame a swimming pool, an outdoor dining area, and a detached workshop, creating a series of sheltered outdoor rooms that extend daily life into the landscape.
This configuration reinforces a strong connection between interior and exterior, allowing the home to function as both refuge and observation post.
Light as a Primary Design Material
Light plays a central role in shaping the experience of Camera House. Clerestory windows, oriented primarily to the north and east, crown each volume. These high-level openings admit soft, indirect daylight while minimizing glare and overheating.
The clerestories alternate between specific and abstract views. Some precisely frame Owl Ridge or distant mountain peaks, while others offer fleeting glimpses of sky, treetops, or passing clouds. This variation introduces a sense of rhythm and surprise, ensuring that the house never feels static.

Inside, sculpted ceilings further guide light and sightlines. Subtle changes in ceiling height and angle direct daylight deep into the interior, while also shaping the perception of space. As weather conditions shift—from bright summer mornings to overcast winter afternoons—the interior atmosphere transforms, reinforcing a sense of temporal awareness.
Interior Spaces: Calm, Focused, and Attuned
The interior of Camera House is deliberately restrained. Materials, finishes, and detailing are chosen to support clarity and calm, allowing light and landscape to take precedence.
Circulation spaces unfold gradually, revealing views in sequence rather than all at once. The kitchen, living areas, and private rooms are arranged to balance communal interaction with retreat, each space offering a distinct relationship to the outdoors.


Stairs become sculptural elements, guiding movement vertically while maintaining visual connections between levels. Throughout the house, openings are carefully aligned so that even transitional spaces maintain a sense of orientation within the landscape.
This orchestration of movement and view creates a lived experience that feels both intuitive and intentional—like adjusting focus on a lens.
Framing the Everyday and the Extraordinary
One of the most compelling qualities of Camera House is its ability to elevate everyday moments. A simple act—preparing food, ascending the stairs, or sitting quietly—becomes an opportunity to engage with light, shadow, and distant horizons.

The architecture does not compete with the landscape’s drama; instead, it edits and refines it. By limiting what is seen at any given moment, the house intensifies the impact of each view. The mountains appear more monumental, the trees more tactile, and the sky more dynamic.
In this way, the house fosters a heightened awareness of place, encouraging mindfulness and reflection.
Climate, Orientation, and Comfort
Camera House is deeply responsive to its Pacific Northwest climate. The orientation of openings minimizes excessive solar gain while maximizing daylight. Roof slopes shed rain and snow efficiently, and overhangs provide protection from seasonal weather variations.
The building’s form and layout also create microclimates around outdoor spaces. Sheltered zones allow for year-round use of terraces and the pool area, even in changing weather conditions.
By working with the climate rather than against it, the architecture achieves comfort through passive strategies, reinforcing its environmental sensitivity.
Architecture as Perceptual Experience
More than a house, Camera House is an experiential framework. It transforms architecture into a medium through which landscape is perceived, interpreted, and remembered.
Leckie Studio Architecture + Design has created a home that is neither overly expressive nor visually dominant. Instead, its strength lies in its restraint and precision. The design acknowledges that the most powerful element on the site is not the building itself, but the environment it inhabits.

Through carefully composed views, controlled light, and responsive form, Camera House becomes a lens—one that brings the vastness of British Columbia’s mountains into intimate focus.
A Contemporary Model for Landscape-Driven Design
In an era where residential architecture often prioritizes size and spectacle, Camera House offers a compelling alternative. It demonstrates how thoughtful design can deepen the relationship between people and place, emphasizing quality of experience over visual excess.
The project stands as a model for context-driven residential architecture, where site, climate, and perception guide every decision. By engaging with the landscape on its own terms, Camera House achieves a quiet yet profound architectural presence.
Ultimately, the house reminds us that architecture’s greatest power lies not in what it shows, but in how it teaches us to see.

All the Photographs are works of Ema Peter
Popular Articles
Popular articles from the community
Takeshi Hosaka Architects Suspends a Concrete Cross Above a Yokohama Cemetery
A 28-square-meter burial renovation in Yokohama lifts the symbol of resurrection into the sky so mourners see it against heaven.
3dor Concepts Wraps a Kerala Home in Mirrored Concrete Arcs Around a Courtyard Tree
In the Western Ghats foothills of Thamarassery, a 270 m² single-story house uses two curved volumes to frame nature as its center.
20 Most Popular Furniture Design Projects of 2025
Modular street systems, parametric benches, and insect hotels: the furniture design projects that captivated architects on uni.xyz in 2025.
Rojkind Arquitectos and Think Parametric Build a Glueless Pavilion from 67 Interlocking Panels
A serpentine fiber-cement installation in Chapultepec Park celebrates a decade of architectural media in Mexico City.
Similar Reads
You might also enjoy these articles
Olio Towers: A Mid-Rise for Performers That Fuses Housing, Rehearsal, and Stage
Located blocks from Houston's Theater District, this modular tower stacks living units around a central performance atrium.
Oasis: Modular Green Housing Carved into Dhaka's Urban Fabric
A shortlisted Plugin Housing entry reclaims unauthorized settlements in Dhaka with stepped concrete volumes, green roofs, and ventilation-driven design.
Black Hole: A Floating Megastructure for the Post-Physical Era
Emiliano Mazzarotto envisions a spherical, self-scaling arena where e-sports, digital hotels, and holographic stadiums replace traditional public space.
Compact & Sustainable Living in Piraeus: A Four-Level Family Home Built Around Light and Air
A narrow townhouse in one of Greece's densest port cities uses a central atrium and passive strategies to house three generations under one roof.
Explore Architecture Competitions
Discover active competitions in this discipline
The International Standard for Design Portfolios
The Global Benchmark for Architecture Dissertation Awards
The Global Benchmark for Graduation Excellence
Challenge to reimagine the Iron Throne
Comments (0)
Please login or sign up to add comments
No comments yet. Be the first to comment!