Captivating Elegance and Modern Luxury: Explore the Elsternwick Penthouse by Alex Nicholls
Is the Elsternwick Penthouse by Alex Nicholls the Epitome of Sophisticated Living?

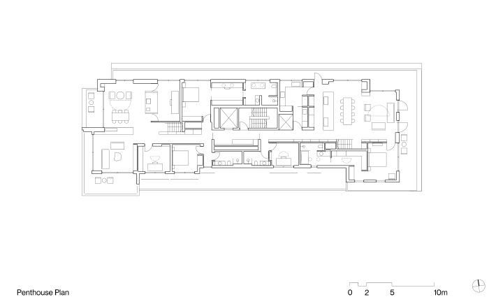
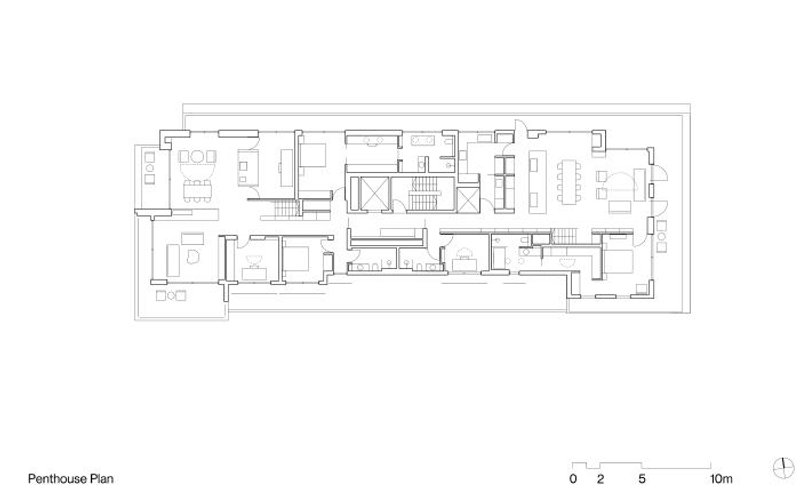
This project combined two penthouse apartments, car parking, rooftops, and exterior spaces to create a single inter-generational family home with plenty of flexible living and working spaces, a basement rehabilitation spa, and two rooftop sukkah pavilions. The first concept was the 'library spine' running the entire length of the apartment, which housed the family's collection of books, art, and artefacts. It also served to define the entrance lobby, horizontal circulation, and vertical circulation, as the joinery was embedded into the staircase. The second concept was a series of 'magic box' kitchens that were highly functional yet minimal in volume, opening and closing to delineate the different zones of the apartment.
The abstract colours of the apartment contrast with the warm, natural material palette. Coloured objects are repeated in the bathroom stonework, fireplaces, and bespoke furniture pieces. Semi-circular oculus skylights celebrate the two main living spaces and reference the clients' passion for the local Art Deco architecture. This pure geometry furthers the abstract composition of the coloured volumes and is also referenced throughout the apartment with smaller semi-circular and circular oculus. The east of the apartment contains the main active social areas, including the kitchen, living, and dining. At the same time, the west is more relaxed and conducive to relaxation, with an interior/exterior lounge dubbed the 'Evening Garden'. The apartment is also loosely divided by generational lines, providing privacy between the younger and older family members.
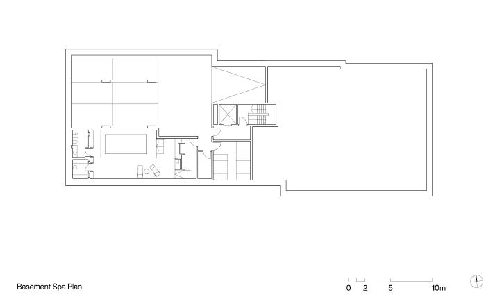
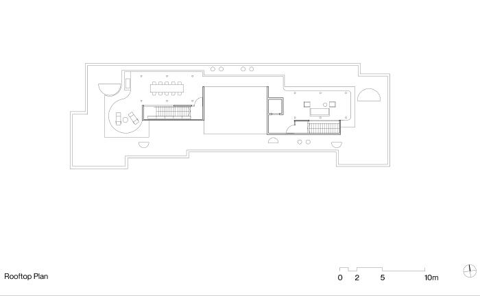
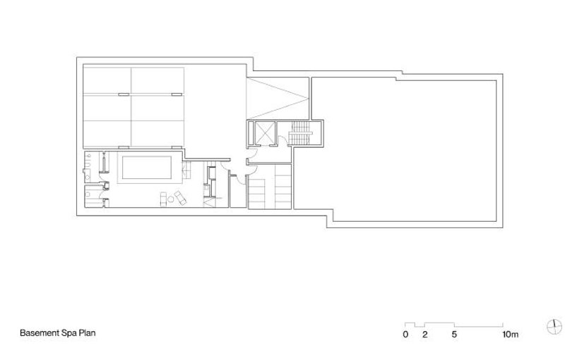
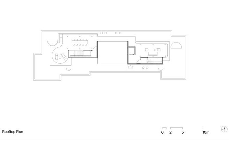
The apartment is future-proofed to allow for splitting into two if needed. Downstairs, the spa utilizes the former basement car park to create a private wellness space, including a fitness pool, sauna, kitchenette, change rooms, and a flexible rehabilitation area. Despite being an underground space with no natural light, atmospheric indirect lighting, warm colours, and raw materials provide a holistic, restorative experience akin to a Finnish sauna or Japanese onsen. On the rooftop, two 'sukkah' pavilions provide semi-enclosed cooking, dining, and gathering areas during the festival of Sukkot, and double as general outdoor living spaces year-round. The minimal structures are highly operable with shade walls and bamboo canopies. The pavilions are set within an expansive outdoor area with curvilinear planters lining the perimeter and foliage, providing a sense of privacy and respite from the wind and allowing views out.



























- Architects: Office Alex Nicholls
- Area: 700 m²
- Year: 2022
- Photographs:Rory Gardiner
- Manufacturers: Vitrocsa, Schüco, Viabizzuno
Popular Articles
Popular articles from the community
Treehouse Apartment: A Warm Timber Interior Blending Craft, Play, and Contemporary Living
Warm timber apartment with integrated treehouse, combining natural materials, craftsmanship, and playful design to create a flexible, family-oriented living environment.
Inverted Architecture Installation by Studio Link-Arc: Exploring the Intersection of Architecture and Living Organisms
Inverted Architecture Installation by Studio Link-Arc blends mycelium, sustainability, inverted design, ecological cycles, and urban adaptive architecture in Shenzhen.
Solar Steam: A Climate-Responsive Architecture That Redefines the Monument
A climate-responsive memorial architecture that transforms heat, decay, and time into a living system reflecting humanity’s ecological impact.
The Ken Roberts Memorial Delineation Competition (Krob)
As the most senior architectural drawing competition currently in operation anywhere in the world, it draws hundreds of entries each year, awarding the very best submissions in a series of medium-based categories.
Similar Reads
You might also enjoy these articles
SOM LAND Hotel by RooMoo: A Sustainable Retreat Rooted in Nature and Local Craft
Sustainable boutique hotel in Shanghai blending adaptive reuse, natural materials, vernacular craftsmanship, and slow living within a serene countryside landscape.
Zhuxi Wonderland: Reimagining Traditional Chinese Gardens by Doarchi Architects
Zhuxi Wonderland by Doarchi Architects reinterprets traditional Yangzhou gardens, integrating courtyards, pavilions, and tea houses in modern cultural design.
Doble Soga House: A Contemporary Brick Residence Rooted in Landscape in Quito, Ecuador
Brick house in Quito integrating nature, flexible living spaces, exposed materials, and rooftop terrace, creating warm contemporary architecture for modern family life.
Al Gharra Mosque in Medina Redefining Contemporary Islamic Architecture
Minimalist Medina mosque using concrete, light, and landscape to reinterpret Islamic worship spaces through symbolic spiritual transitions and contemporary architecture.
Explore Architecture Competitions
Discover active competitions in this discipline
The International Standard for Design Portfolios
The Global Benchmark for Architecture Dissertation Awards
The Global Benchmark for Graduation Excellence
Challenge to reimagine the Iron Throne
Comments (0)
Please login or sign up to add comments
No comments yet. Be the first to comment!