Centre de Congrès Rabat by Bofill Taller de Arquitectura: A Landmark in Modern Conference Center Architecture
A modern conference center in Rabat by Bofill Taller de Arquitectura, merging geometric elegance with campus connectivity and cultural engagement.
Modern Conference Center Architecture
In Rabat, Morocco, the Centre de Congrès Rabat by Bofill Taller de Arquitectura stands as a defining piece of modern conference center architecture, seamlessly integrating functional performance with symbolic form. As part of the Université Mohammed VI Polytechnique’s second campus, this 11,500 m² facility embodies the institution’s ambition to create spaces that unite academic, professional, and public communities under one roof.

A Central Role in Campus Planning
Situated between the first and second phases of the masterplan, the Centre de Congrès serves as a spatial and social hinge, connecting two distinct areas of the campus. One side features an avenue of buildings, while the other holds a denser cluster of facilities. The conference center bridges them, acting as both a thoroughfare and a destination. This dual role is expressed architecturally through a series of porticos along the site’s edge, where bright tiles flow seamlessly from outdoor paving to façade cladding, guiding visitors naturally into the building’s lobby.

Total Design Across Scales
From urban placement to interior detailing, the project follows a “total design” approach. Materials, colors, and furniture are given as much importance as masterplan connectivity. The interiors reflect a refined spatial quality, offering environments suited for faculty lectures, industry gatherings, public performances, and informal campus interactions.


Geometric Clarity and Spatial Organization
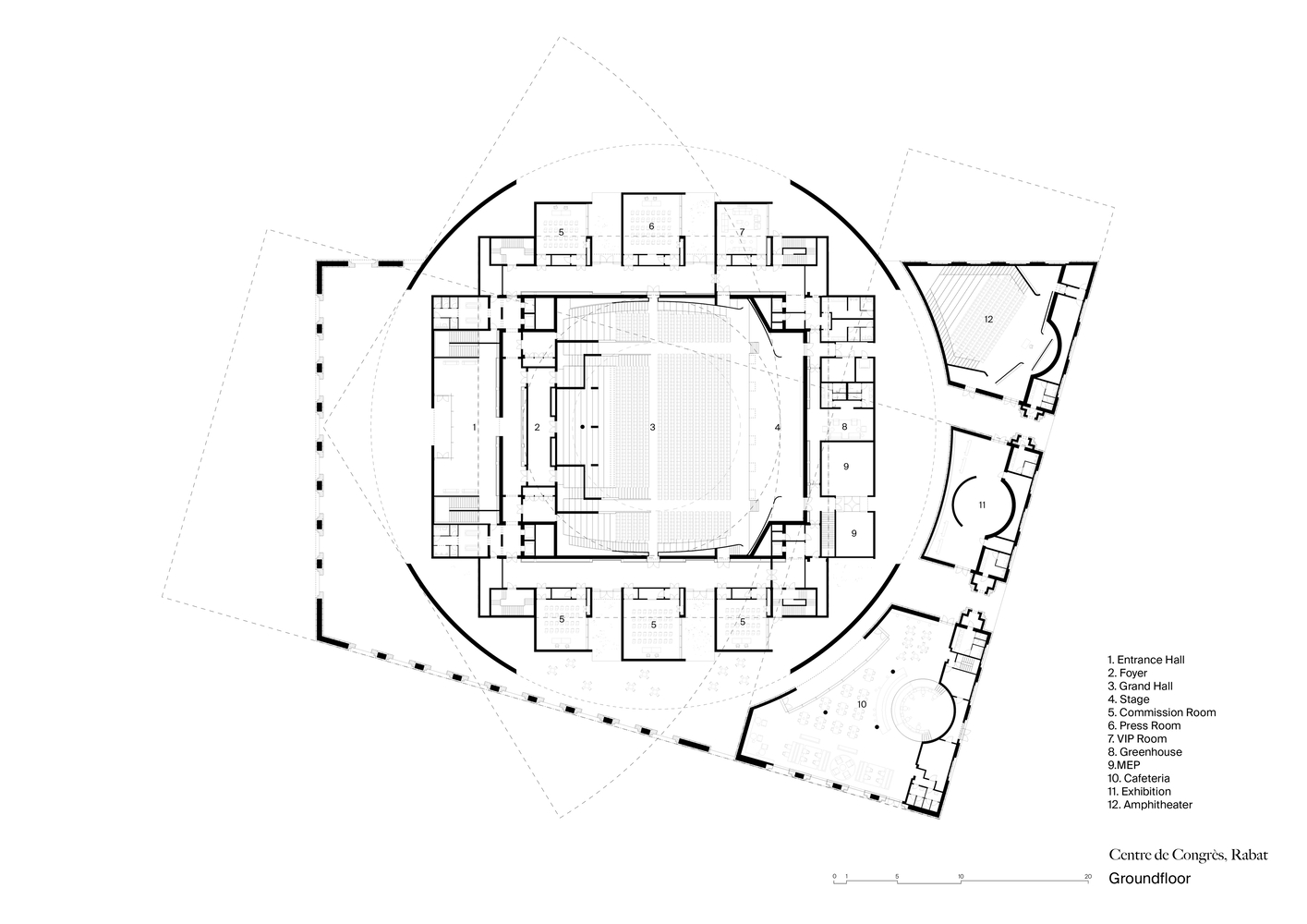
The building’s plan is rooted in two pure geometric forms — the circle and the square. A sweeping circular wall frames the main auditorium, a perfect square, while the space between them accommodates smaller auditoriums, meeting rooms, cafes, bars, circulation zones, and support facilities. The arrangement creates a harmonious balance between large-scale public gatherings and more intimate, focused events.

Inviting Architectural Expression
The circular wall is punctuated by monumental arches that touch the ground only at the building’s corners, leaving the rest open to light, air, and movement. These openings blur the line between interior and exterior, making the building feel approachable and welcoming. Exterior courtyards expand the program outdoors, offering assembly spaces with views toward playing fields and wooded landscapes.



A New Icon for Rabat’s Academic and Cultural Life
The Centre de Congrès Rabat is more than an academic facility — it is a civic landmark. It creates a dynamic intersection where academic discourse, cultural exchange, and community events converge. By marrying geometric purity, thoughtful campus integration, and material richness, Bofill Taller de Arquitectura delivers a project that exemplifies the best of modern conference center architecture.



All photographs are works of Gregori Civera, Max Farago