Greyspace Architects Slip a Cloud-Like Service Station into a Xi'an Neighborhood Park
A curving white pavilion in Chang'an Plaza offers civic amenities while deferring to the mature tree canopy of a residential park.
Civic infrastructure rarely gets to be generous. Most citizen service stations across Chinese cities are utilitarian boxes squeezed between roads, their purpose legible only from the signage bolted to the facade. Greyspace Architects took a different position in Xi'an's Chang'an district, treating a simple program of restrooms, rest areas, and a workroom as an opportunity to give a neighborhood park a new spatial anchor. The result is a pavilion whose flowing white roof planes weave between existing trees rather than replacing them.
What makes this project worth studying is not the formal gesture alone but the negotiation it performs. The building is split into several organically shaped volumes that distribute themselves across the site like stones in a stream. Each volume is small enough to slide between tree canopies, preserving shade that decades of growth produced. The roof becomes a second ground plane: thin at its edges, rising into soft peaks, and punctuated by skylights that pull light down into otherwise introverted interiors. It is civic design calibrated to the scale of a daily walk rather than a monumental axis.
Landscape First, Building Second



From above, the pavilion reads less as architecture and more as a thickening of the park's topography. The aerial views are revealing: the white roofs sit well below the tree line, and their organic footprints mirror the irregular spacing of the trunks around them. This is a building designed from the canopy down. Greyspace clearly surveyed every significant tree before committing to a footprint, and the discipline shows.
Surrounding residential towers are dense and rectilinear, which makes the pavilion's refusal of right angles all the more pointed. The contrast is not confrontational; it simply reinforces the idea that the park operates by different rules than the housing blocks that ring it. Curving paths feed into the covered zones naturally, and the roof overhangs create transitional thresholds between full sun and shelter.
The Roof as Public Canopy


At eye level, the pavilion's most legible move is its roof. Thin white edges curl upward at their perimeters, giving each volume a lifted, almost hovering quality. Ornamental grasses planted at the base reinforce the sense that the building barely touches the ground. The roof is not a single monolithic plane but a family of related surfaces, each one responding to the particular cluster of trees it sits among.
Visitors walking by register shelter before they register program. That priority ordering is deliberate: the pavilion works first as shade and rain cover, second as enclosed service space. It is a generous approach to a building type that typically locks its amenities behind opaque walls.
Gathering Without Invitation


The terraced plaza in front of the glazed entrance functions as an informal amphitheater. Families and children use the steps as seating, turning the threshold between park and building into a social space of its own. No bollards, no ticket window, no formality. The image of kids milling on stepped stone while a curved glass wall glows behind them captures the project's civic ambition more directly than any diagram could.
Under the canopy, covered seating beneath mature trees extends the park experience into semi-enclosed territory. It is the kind of space that works in drizzle, in summer heat, and on mild evenings alike. That versatility is what separates a service station people actually use from one they merely locate on a map.
Dark Interiors, Precise Light



Step inside and the palette inverts. Dark timber walls, stone surfaces, and a restrained material vocabulary replace the bright exterior. Greyspace uses this contrast intentionally: the interiors feel cooled and compressed, a retreat from the open park. Recessed linear lighting follows the curve of the soffit, reinforcing the geometry without overpowering the space.
The strongest interior moment is the rounded skylight above the courtyard. A circle of daylight drops into a dark volume finished in concrete and gravel, casting a hard-edged shadow that rotates through the day. It recalls the light wells of traditional Chinese courtyard houses, scaled down to a single contemplative pause. The tiled passage leading to this point is narrow and slightly compressed, so the vertical release of the skylight arrives with real spatial impact.
After Dark


At night the pavilion becomes a lantern. Glazed walls glow from within while uplighting washes through the tree canopy, extending the park's usable hours well past sundown. The crowds visible on the lawn at night confirm that this is not a building that shuts down at five o'clock. It operates on the neighborhood's schedule, not on an institutional one.
The lighting strategy is understated. No color washes, no projected graphics, just warm white light filtered through glass and leaves. The restraint keeps the focus on the spatial experience rather than turning the pavilion into a spectacle. It serves the same role after dark that the roof canopy serves during the day: it makes the park feel safe, occupied, and worth visiting.
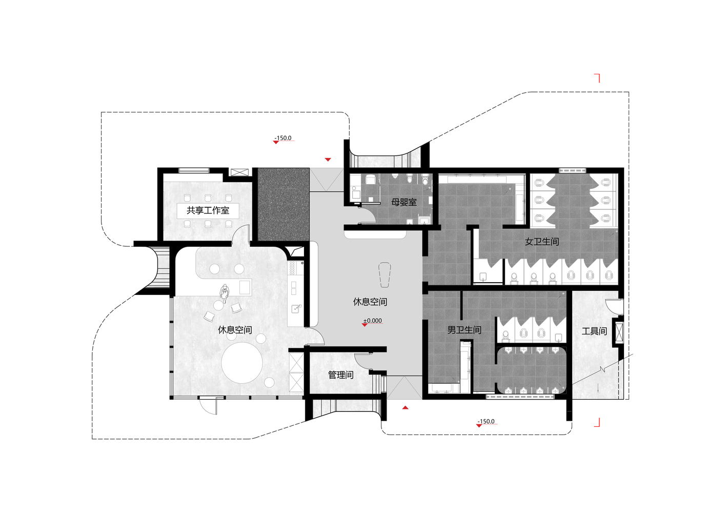
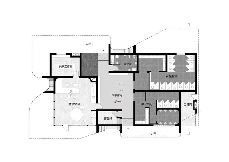
Plans and Drawings

The floor plan confirms what the photographs suggest: the program is minimal. Two rest spaces, restrooms, a workroom, and storage are wrapped within curving perimeter walls that generate the building's flowing exterior profile. The plan avoids corridors entirely; each room opens to the exterior or to a covered outdoor zone. Circulation happens through the park itself, not through internal hallways. This is a building with almost no back of house, which is appropriate for a program that exists to serve people passing through.
Why This Project Matters
Citizen service stations are proliferating across Chinese cities as part of broader campaigns to improve public amenity at the neighborhood scale. Most of them are forgettable. Greyspace Architects demonstrates that even the humblest civic brief, essentially a restroom and a rest stop, can produce architecture that elevates its surroundings. The key decision was to treat the existing trees as the primary structure of the site and to fit the building into their gaps rather than clearing them.
The project also offers a lesson in proportional ambition. Nothing here is oversized. The roof peaks stay below the canopy, the interiors are intimate, and the materials are common. The payoff comes from spatial precision: the right curve at the right height, the right skylight in the right spot, the right amount of glass to turn a service building into a neighborhood gathering point. That kind of calibration is harder to achieve than it looks, and it is exactly what most small-scale civic projects lack.
Chang'an Plaza Citizen Service Station by Greyspace Architects, Xi'an, China. Photography by Yang Chen.
About the Studio
Share Your Own Work on uni.xyz
If projects like this are the kind of work you want to make, uni.xyz is a place to publish your own, find collaborators, and enter design competitions.
Popular Articles
Popular articles from the community
20 Most Popular Office Building Projects of 2025
From biophilic workspaces in India to net-positive energy offices in New Delhi, 20 office building projects that defined architecture in 2025.
Paco Oria Estudio Rebuilds a 1949 Valencian Town House Around Timber, Terracotta, and a New Interior Patio
In Godella, Spain, a semi-detached house from the postwar era is stripped to its party walls and rebuilt with wood and ceramics.
Studio Gram Unfurls a Concrete Curve Through an Adelaide Queen Anne Villa
In Rose Park, a billowing concrete threshold stitches a century-old house to a sun-chasing pavilion organized around an existing pool.
1-1 Architects Builds a Nagoya House and Office from Decades of Stockpiled Timber
A 69-square-meter tower in dense residential Nagoya transforms surplus lumber into a home and workplace for a construction company.
Similar Reads
You might also enjoy these articles
Olio Towers: A Mid-Rise for Performers That Fuses Housing, Rehearsal, and Stage
Located blocks from Houston's Theater District, this modular tower stacks living units around a central performance atrium.
Oasis: Modular Green Housing Carved into Dhaka's Urban Fabric
A shortlisted Plugin Housing entry reclaims unauthorized settlements in Dhaka with stepped concrete volumes, green roofs, and ventilation-driven design.
Black Hole: A Floating Megastructure for the Post-Physical Era
Emiliano Mazzarotto envisions a spherical, self-scaling arena where e-sports, digital hotels, and holographic stadiums replace traditional public space.
Compact & Sustainable Living in Piraeus: A Four-Level Family Home Built Around Light and Air
A narrow townhouse in one of Greece's densest port cities uses a central atrium and passive strategies to house three generations under one roof.
Explore Architecture Competitions
Discover active competitions in this discipline
The International Standard for Design Portfolios
The Global Benchmark for Architecture Dissertation Awards
The Global Benchmark for Graduation Excellence
Challenge to design locus for the upliftment of human rights
Comments (0)
Please login or sign up to add comments
No comments yet. Be the first to comment!