Charlotte & William Bloomberg Medford Public Library: A Net-Zero Energy Public Library Design
This article highlights the Charlotte & William Bloomberg Medford Public Library, a Net-Zero Energy design blending sustainability and community.
The Charlotte & William Bloomberg Medford Public Library, designed by Schwartz/Silver Architects, is an exemplary model of sustainable architecture combined with community-centered design. Situated in Medford, Massachusetts, the library spans 44,825 square feet and was completed in 2022. This pioneering project stands as the state's first Net-Zero Energy public library, reflecting an innovative approach to architectural sustainability and cultural preservation.




Contextual Design and Community Integration
Nestled into a sloping site, the library presents two distinct façades: a civic-scaled, red brick street-facing elevation and a subtler, single-story rear façade that blends harmoniously with the neighboring residential area. The library features accessible entries on both sides, leading into a vertically stacked lobby that seamlessly connects the facility's primary spaces.
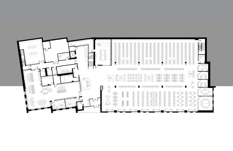
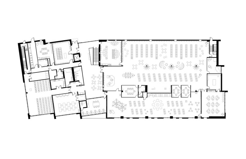
Inside, the library is designed to cater to the needs of diverse user groups, with acoustically separated zones for adults, teens, and children. Flexible spaces such as a multipurpose room, maker room, tech lab, and gallery support a wide array of programs, from educational workshops to community events. These design choices reflect the library's role as more than just a repository of books, serving as a vibrant hub for collaboration, learning, and cultural engagement.




Architectural Design Inspired by History
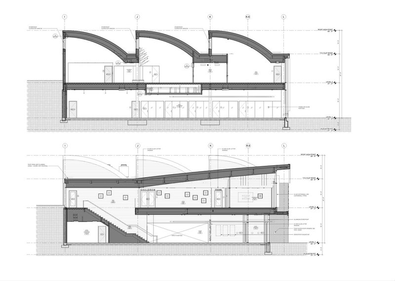
The design draws inspiration from Medford's history as a hub for clipper ship manufacturing along the Mystic River. The wave-like roof forms and plank-lined ceilings evoke the aesthetics of shipbuilding, creating a sense of continuity between the past and the present. The interior spaces further reinforce this connection, with hull-like curved ceilings and pixelated maps of Medford adorning the main reading room. The Maker Room features a large cross-section of a clipper ship, emphasizing the library's homage to local heritage.


Exterior materials were chosen to respond to the library's immediate context. The street-facing façade is clad in red Norman brick, reflecting the civic character of the area, while the rear façade features horizontal HPL rain-screen cladding, providing a more subdued appearance. The curved roofs, finished with standing seam metal, integrate seamlessly with the surrounding landscape and support the library’s commitment to sustainability.



Sustainability and Net-Zero Energy Design
The Charlotte & William Bloomberg Medford Public Library is Massachusetts's first Net-Zero Energy public library, showcasing the possibilities of sustainable design. Over 600 solar panels blanket the building's curved roof, generating enough energy to offset the library's anticipated consumption entirely. This all-electric facility represents a significant step toward environmentally responsible public architecture, serving as a model for future projects across the country.



Efforts to preserve the natural environment are evident in the careful retention of a century-old copper beech tree, visible from the children’s reading room. This tree inspired the nature-themed design of the children’s area, where an innovative system allows a row of artificial trees to be seasonally decorated.




Balancing Functionality and Innovation
The library's design effectively balances the constraints of the site with the needs of its users. The half-acre footprint is organized into a series of long structural bays, each featuring a wave-shaped roof that conceals rooftop mechanical systems from view. These structural elements, combined with the library's emphasis on natural light, accessibility, and innovative programming, make it a standout example of modern library design.



A Community-Focused Future
The Charlotte & William Bloomberg Medford Public Library demonstrates how architecture can support sustainability, celebrate history, and foster community engagement. By prioritizing energy efficiency, accessibility, and flexible programming, Schwartz/Silver Architects have created a space that serves as a cultural and educational beacon for Medford and beyond.













All Photographs are work of Paul Burk Photography
Popular Articles
Popular articles from the community
Treehouse Apartment: A Warm Timber Interior Blending Craft, Play, and Contemporary Living
Warm timber apartment with integrated treehouse, combining natural materials, craftsmanship, and playful design to create a flexible, family-oriented living environment.
An Miên Lumière Cafe by xưởng xép, Ho Chi Minh City, Vietnam
An industrial-inspired café where layered steel and warm light create a dynamic, immersive environment shaped by reflection, depth, and perception.
The Ken Roberts Memorial Delineation Competition (Krob)
As the most senior architectural drawing competition currently in operation anywhere in the world, it draws hundreds of entries each year, awarding the very best submissions in a series of medium-based categories.
A Contemporary Take on Iranian Residential Architecture
A modern interior design in Mashhad that reinterprets brick, light, and spatial flow to create a warm, contemporary residential architecture.
Similar Reads
You might also enjoy these articles
The Ken Roberts Memorial Delineation Competition (Krob)
As the most senior architectural drawing competition currently in operation anywhere in the world, it draws hundreds of entries each year, awarding the very best submissions in a series of medium-based categories.
Waterfront Redevelopment and Urban Revitalization in Mumbai: Forging a New Dawn for Darukhana
A transformative waterfront redevelopment project reimagining Darukhana’s shipbreaking heritage into an inclusive urban future.
OUT-OF-MAP: A Call for Postcards on Feminist Narratives of Public Space
Rhizoma Design and Research Lab invites artists, designers, architects, researchers, and students to reflect on how feminist perspectives can reshape public space. Selected works will be exhibited in Barcelona, October 2026. Submissions open until 15 April 2026.
Documentation Work on Buddhist Wooden Temple
Architectural syncretism and cultural hybridity: A comparative study of the Buddhist temples in Chattogram Hill tracks
Explore Architecture Competitions
Discover active competitions in this discipline
The International Standard for Design Portfolios
The Global Benchmark for Architecture Dissertation Awards
The Global Benchmark for Graduation Excellence
Challenge to reimagine the Iron Throne
Comments (0)
Please login or sign up to add comments
No comments yet. Be the first to comment!