Chazal School Renovation and Playground Transformation by MULTIPLE Architecture & Urbanism: A Model for Energy and Ecological Education in Brussels
Chazal School by MULTIPLE Architecture renews a 1970s building with sustainable design, energy efficiency, and a green educational playground.
In Schaerbeek, Belgium, the Chazal School Renovation and Playground Transformation by MULTIPLE Architecture & Urbanism reinvents a 1970s school complex into a progressive example of sustainable, educational, and ecological design. This project seamlessly fuses energy efficiency, circular construction, and landscape learning, producing a school environment where architecture, sustainability, and pedagogy coexist.


The initiative reflects a broader European commitment toward carbon-neutral public infrastructure and healthier urban spaces. Yet it is also deeply local — reimagining a beloved neighborhood school as both an energy-positive building and a living classroom for environmental awareness.

A School Reborn Through Energy Transformation
The Chazal School, built in the 1970s, typified many post-war educational buildings: compact, functional, but poorly insulated and dependent on fossil fuel-based heating and outdated ventilation systems. Over time, the building’s concrete frame had aged without ever undergoing renovation, resulting in thermal inefficiency and low interior comfort.

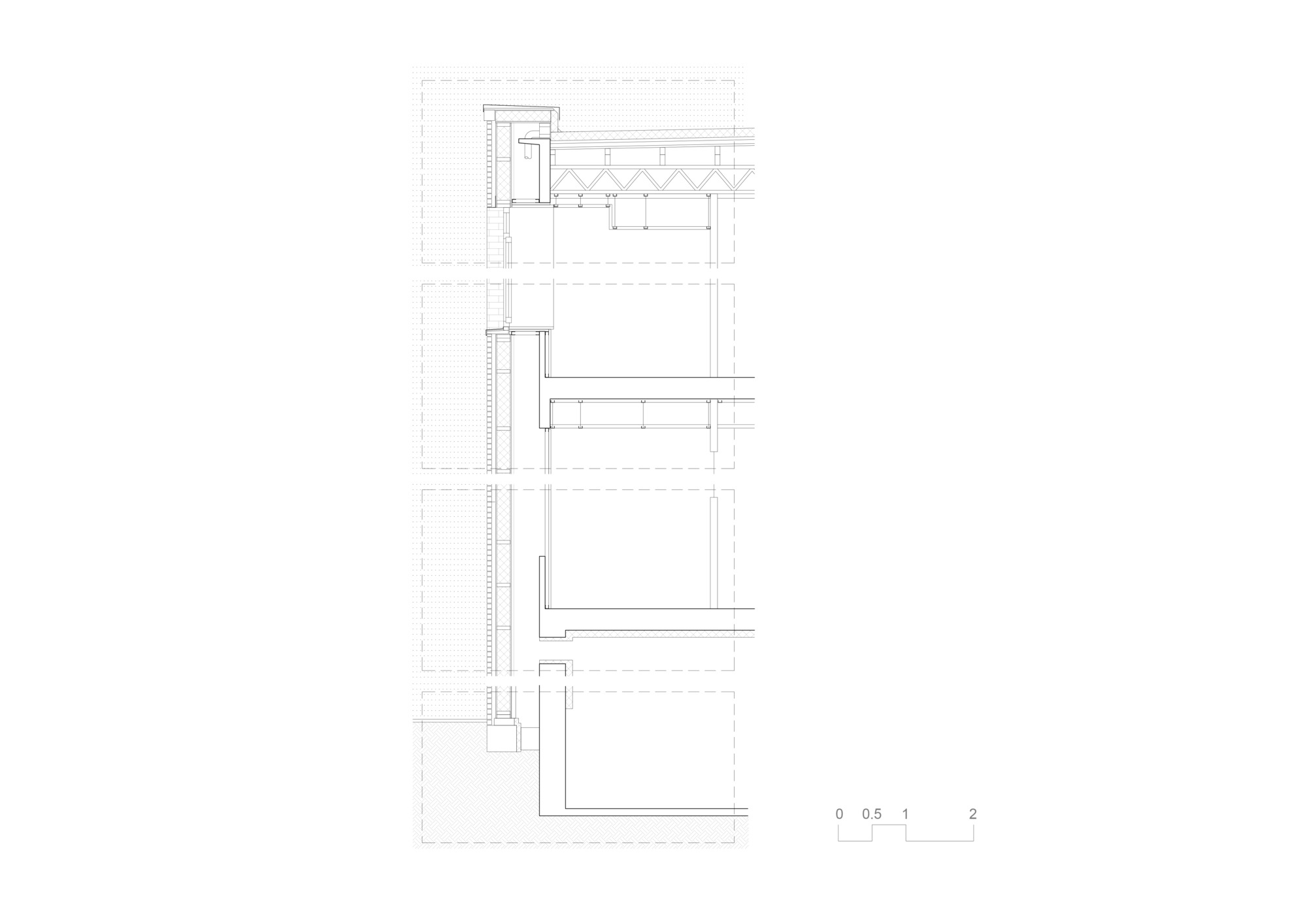
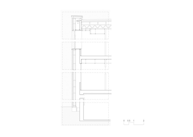
MULTIPLE approached the challenge not through demolition but surgical transformation. Rather than replacing, they wrapped, reinforced, and reenergized the existing structure — preserving its embedded carbon and saving significant construction waste.
The architects enveloped the entire building in a new high-performance energy shell, made of prefabricated insulated panels. This lightweight and rapid solution served multiple purposes: improving insulation, modernizing the aesthetics, and drastically reducing heating loss.

The strategy was dual-sided:
- On the street façade, the insulation panels are semi-opaque, maximizing thermal efficiency while filtering daylight through controlled openings.
- On the courtyard side, generous windows and bright finishes invite natural light into classrooms and administrative spaces, creating environments that inspire learning while cutting electricity consumption.
Inside, mechanical systems were completely replaced. These include double-flow ventilation, LED lighting, low-carbon heating systems, and acoustic upgrades — transforming the old concrete box into a model of comfort, health, and sustainability for future educational facilities.


From Concrete Yard to Living Landscape
Parallel to the energy retrofit, the architects completely reimagined the school’s playground — once a monotonous asphalt surface — into a vibrant, green, and permeable learning landscape. This transformation positions outdoor space not as an afterthought but as a central educational environment.


The new yard is permeable, biodiverse, and multi-functional. Its design embodies the principles of climate adaptation and slow water management. Rainwater is no longer hidden underground; instead, it flows through open channels and rain gardens, teaching children about natural cycles and local ecosystems in real time. The landscape absorbs and filters water on-site, mitigating urban runoff — an increasingly vital function for cities coping with heavier rainfall due to climate change.

The new design introduces zones of varied character:
- Active play areas with sports courts and play mounds for movement and collaboration.
- Natural zones with native plantings, boulders, and tree trunks that promote informal exploration and imaginative play.
- Quiet gardens and shaded corners where children can rest, observe insects and leaves, or learn through direct contact with nature.
Every element in the redesigned yard supports pedagogical potential — from environmental science to creativity and well-being. Children can now learn outdoors through participation and discovery, engaging the senses as well as the intellect.

Circular and Sustainable Architecture
From the outset, the project followed a circular design logic — reusing every feasible component of the original structure, minimizing demolition, and relying on prefabrication to reduce construction waste. This approach offered environmental and social benefits by shortening the construction timeline, lowering emissions, and keeping the school functional for much of the process.
By wrapping instead of replacing, MULTIPLE preserved the memory and structure of the school while upgrading it for a future defined by energy consciousness and environmental responsibility. This process demonstrates how existing buildings can be reimagined as resources, not burdens — a critical concept in cities confronting the carbon cost of new construction.
The renovation also enhances resilience and longevity. Maintenance systems are simplified, technical installations are visible and accessible for educational demonstration, and materials such as local timber and low-VOC finishes ensure durability and indoor air quality.

Architecture for a New Model of Learning
The project embodies an evolving philosophy of educational design — where architecture itself becomes a teaching tool. Chazal School’s transformation integrates environmental performance with ecological pedagogy, proving that energy-efficient schools can also be empathetic, inspiring, and attuned to their surroundings.
Students are not just passive occupants but active observers of energy and nature in motion. Transparent systems, visible air ducts, and rainwater pathways make sustainability legible and engaging. For teachers, the outdoor spaces double as flexible, interdisciplinary classrooms.

The result is an environment that links learning, comfort, and climate awareness — a balance often missing in older educational infrastructure.
Integration of Nature and Urban Life
Located within the urban fabric of Schaerbeek, the project enhances both its neighborhood presence and its ecological identity. The courtyard façade now opens generously toward the city, forming a visual and symbolic bridge between the classroom and the community.
Vegetation planted along façades and within courtyards acts as a natural buffer, reducing heat island effects and improving biodiversity. These layers of greenery reclaim what was once a hard-edged urban site, making the school a shared garden of learning.
A Prototype for Future Schools
The Chazal School Renovation and Playground Transformation is more than an isolated project; it presents a prototype for public school renovation across Europe. It shows that energy efficiency, environmental education, and design quality can coexist within a modest municipal budget.

The project redefines the school as a living system — one that breathes, learns, and adapts. Here, children’s daily environments become catalysts for curiosity, empathy, and sustainable behavior.
Through the synthesis of architecture, ecology, and pedagogy, MULTIPLE demonstrates that schools can indeed model the future of cities: resilient, green, and profoundly human.
All the photographs are works of Bruno Dias Ventura
Popular Articles
Popular articles from the community
A Contemporary Take on Iranian Residential Architecture
A modern interior design in Mashhad that reinterprets brick, light, and spatial flow to create a warm, contemporary residential architecture.
Louis Malle Cinema: A Limestone Cultural Landmark Revitalizing Community Life in Prayssac
Limestone cinema extension with public forecourt, blending heritage and modern design to create flexible cultural spaces and strengthen community interaction.
Treehouse Apartment: A Warm Timber Interior Blending Craft, Play, and Contemporary Living
Warm timber apartment with integrated treehouse, combining natural materials, craftsmanship, and playful design to create a flexible, family-oriented living environment.
The Ken Roberts Memorial Delineation Competition (Krob)
As the most senior architectural drawing competition currently in operation anywhere in the world, it draws hundreds of entries each year, awarding the very best submissions in a series of medium-based categories.
Similar Reads
You might also enjoy these articles
The Ken Roberts Memorial Delineation Competition (Krob)
As the most senior architectural drawing competition currently in operation anywhere in the world, it draws hundreds of entries each year, awarding the very best submissions in a series of medium-based categories.
Waterfront Redevelopment and Urban Revitalization in Mumbai: Forging a New Dawn for Darukhana
A transformative waterfront redevelopment project reimagining Darukhana’s shipbreaking heritage into an inclusive urban future.
OUT-OF-MAP: A Call for Postcards on Feminist Narratives of Public Space
Rhizoma Design and Research Lab invites artists, designers, architects, researchers, and students to reflect on how feminist perspectives can reshape public space. Selected works will be exhibited in Barcelona, October 2026. Submissions open until 15 April 2026.
Documentation Work on Buddhist Wooden Temple
Architectural syncretism and cultural hybridity: A comparative study of the Buddhist temples in Chattogram Hill tracks
Explore Architecture Competitions
Discover active competitions in this discipline
The International Standard for Design Portfolios
The Global Benchmark for Architecture Dissertation Awards
The Global Benchmark for Graduation Excellence
Challenge to design public laboratory
Comments (0)
Please login or sign up to add comments
No comments yet. Be the first to comment!