Clarke House by Austin Maynard Architects: A Modern House Renovation in Australia
A thoughtful Australian renovation balancing family privacy and openness through inventive design, heritage integration, and seamless indoor-outdoor living.
Transforming a Heritage Cottage into a Contemporary Family Sanctuary
Clarke House, designed by Austin Maynard Architects, is a compelling example of a modern house renovation in Australia. Located in Northcote, a suburb of Melbourne, this once dim and cramped weatherboard cottage has been reinvented into a light-filled, multifunctional family home that reflects thoughtful design, spatial innovation, and personal expression.



The project began with the renovation and extension of a single-storey dwelling, where the clients—a professional couple with two teenage daughters—sought a home that aligned with their minimalist sensibilities and their experiences living in Japan. Their request was simple yet profound: "something different." The result is a refined blend of old and new, where characterful heritage meets functional, modern architecture.



Spatial Zoning with Purpose: Alone Together
At the core of Clarke House’s concept is the theme “Alone Together.” The architectural solution balances communal spaces with private retreats, offering each family member their own zone while maintaining strong spatial cohesion. Rather than adhering to a stark, boxy aesthetic, the extension unfolds in an irregular, stepped form that maximizes usability while retaining a sense of warmth and softness.



The owners envisioned a future-proof home—one that could accommodate large gatherings and also offer individual sanctuaries. This duality is reflected in the layout: an expansive living, dining, and kitchen zone merges seamlessly with outdoor spaces, while above, an 'apartment-like' retreat gives the daughters their own semi-independent quarters.



Material Palette: Connecting Past and Present
To bridge the historical and contemporary elements, the design continues the exterior materiality of painted weatherboards into the home’s interiors. While unconventional, this strategy brings coherence and texture to the space, blurring the lines between indoor and outdoor environments. Bluestone pavers at the new entryway reinforce this continuity, grounding the interior design in the surrounding landscape.


To further accentuate this fusion, a batten screen overlays the extension, offering privacy and sun protection while visually unifying the old cottage and the new addition. The result is a harmonious meeting of forms that feels both dynamic and resolved.


Light, Air, and Greenery: Pocket Gardens and Skylights
One of the home’s most striking features is its orchestration of light and green space. Three pocket gardens and strategically placed light wells bring fresh air and natural light deep into the house. A side entry bypasses the more private areas and leads into the heart of the home, where garden views animate the daily experience of working, relaxing, or entertaining.



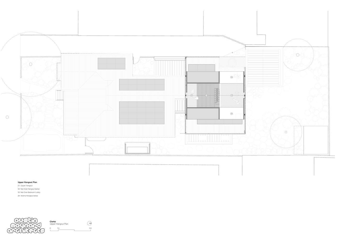
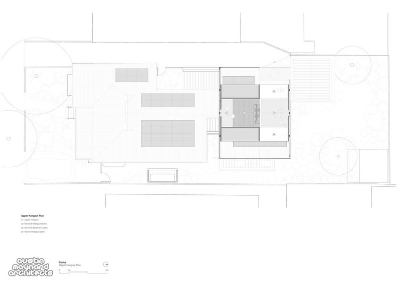
The interior stairwell—a perforated steel structure—ascends to the upper level, revealing two bedrooms, a study-retreat, a central bathroom pod, and a whimsical craft room tucked into a hidden nook. This zone is crowned by a hammock suspended under the high ceiling, inviting leisure and daydreaming.



Social and Intimate Zones: A House for Connection and Solitude
To avoid the risk of the main living area feeling “too cavernous,” the lounge room was designed as a distinct yet connected volume. Slightly elevated and projecting into the garden, it resembles a small pavilion—an intimate space that still belongs to the overall narrative of openness.


This intelligent zoning ensures that each part of the house has a specific function and mood, tailored to the rhythms of family life. From the practical needs of a home office and laundry to the subtle luxury of a garden-facing reading nook, Clarke House is a masterclass in contemporary residential design.


A Contemporary Australian Renovation Rooted in Lifestyle
Clarke House stands as a benchmark in modern house renovation in Australia. By retaining the charm of the original structure and layering in new possibilities, Austin Maynard Architects have crafted a highly livable, emotionally rich, and environmentally attuned home. It embraces individuality and togetherness in equal measure, while showcasing the timeless value of good design.


All Photographs are works of Derek Swalwell
Popular Articles
Popular articles from the community
Solar Steam: A Climate-Responsive Architecture That Redefines the Monument
A climate-responsive memorial architecture that transforms heat, decay, and time into a living system reflecting humanity’s ecological impact.
Split House: A Compact Urban Home Blending Privacy, Light, and Flexible Living in Japan
Compact Japanese home featuring DOMA space, flexible café potential, passive lighting, privacy zoning, and sustainable urban living design.
The Ken Roberts Memorial Delineation Competition (Krob)
As the most senior architectural drawing competition currently in operation anywhere in the world, it draws hundreds of entries each year, awarding the very best submissions in a series of medium-based categories.
Inverted Architecture Installation by Studio Link-Arc: Exploring the Intersection of Architecture and Living Organisms
Inverted Architecture Installation by Studio Link-Arc blends mycelium, sustainability, inverted design, ecological cycles, and urban adaptive architecture in Shenzhen.
Similar Reads
You might also enjoy these articles
Free Architecture Competitions You Can Enter Right Now
No entry fees, real prizes. Here are the best free architecture competitions open for submissions in 2026.
Top 15 Architecture Competitions to Enter in 2026
From student-friendly idea competitions to prestigious international awards, here are the best architecture competitions open for entries in 2026. Updated regularly.
DIY & Engineering in Computational Design : Enter the BeeGraphy Design Awards
Showcase Your Creativity with Computational Design and Open Source Projects

Innovative Design Solutions: Award-Winning Projects from Recent Architecture Competitions
Exploring award-winning architectural projects shaping the future of design, sustainability, and community.
Explore Architecture Competitions
Discover active competitions in this discipline
The International Standard for Design Portfolios
The Global Benchmark for Architecture Dissertation Awards
The Global Benchmark for Graduation Excellence
Challenge to reimagine the Iron Throne
Comments (0)
Please login or sign up to add comments
No comments yet. Be the first to comment!