ZArchitecture Studio Wraps a Moroccan School Around Courtyards and Climate in Benguerir
The Jacques Majorelle School stacks terracotta volumes around shaded courtyards, treating climate response as its primary pedagogical tool.
Benguerir sits on the Haouz Plain between Marrakech and Casablanca, a place where summer temperatures regularly clear 40°C and where any building that ignores the sun will quickly punish its occupants. ZArchitecture Studio took that fact as the starting point for the Jacques Majorelle School, an educational complex that treats shading, ventilation, and thermal mass not as afterthoughts but as the generators of form. The result is a low, stacked composition of terracotta and white volumes organized around a series of courtyards, each one calibrated to funnel light while limiting direct solar gain.
What makes the project genuinely interesting is the refusal to separate the environmental strategy from the architectural expression. The terracotta cladding, the vertical metal screens, the timber pergolas, the planted beds, the circular skylights: every element does visible climatic work. Nothing is decorative in the pejorative sense. For a school serving children from kindergarten through secondary age, that legibility has an almost didactic quality. The building teaches before a single lesson plan is opened.
Terracotta Mass and the Street Edge



From the street, the school reads as a layered horizontal bar. Terracotta panels in warm ochre tones sit alongside white rendered surfaces, and vertical metal screening punctuates the facade at irregular intervals. The massing stays deliberately low, rarely exceeding two stories, which keeps it in proportion with Benguerir's residential fabric. Palm trees planted at the upper terrace level break the roofline and hint at the green life happening behind the envelope.
The facade is not merely a wrapper. It functions as a thermal buffer, with the terracotta cladding absorbing and slowly releasing heat through the cooler nighttime hours. Where windows are needed, vertical screening controls glare without blocking airflow. The whole composition has a tectonic honesty: you can read exactly how it manages the climate just by walking past.
Courtyards as Microclimates



The plan wraps around multiple courtyards, each one doing slightly different work. The main elevated courtyard uses timber pergolas and planted beds to create a shaded gathering zone between classroom wings. Below, a paved courtyard with colored concrete seating cubes and raised planters serves as an outdoor room for younger students. Vertical white louvers on upper balconies filter afternoon light into these spaces while maintaining sightlines between levels.
This is a school that treats outdoor space as indoor space without a roof. Every courtyard is proportioned to generate its own microclimate through shade, evapotranspiration from planting, and the stack effect between volumes. The bridges connecting wings across the upper courtyard are not just circulation; they are shade devices in their own right, casting long shadows across the planted beds below.
Passages and Filtered Light



Circulation becomes one of the school's richest spatial experiences. A covered upper corridor with slatted timber pergola casts striped shadows across pale tile flooring, turning a simple walkway into a lesson in geometry and light. Elsewhere, a covered passage uses a deep overhanging ceiling and timber-lined walls to frame views of the courtyard beyond, compressing space before releasing it into the open.
The moment a child walks through the sunlit covered courtyard with its warm terracotta walls and ceiling, the building communicates shelter without enclosure. These transitional zones are the connective tissue of the plan, and ZArchitecture Studio clearly invested as much design energy here as in the classrooms themselves. The quality of light in these in-between spaces is consistently good: warm, diffused, and never harsh.
Detail and Planting



A circular skylight opens directly over a palm tree planted in a raised bed, a detail that feels almost too deliberate but works because the whole building commits to the same logic. Planting is not incidental here; it is infrastructure. Perimeter beds along exterior walls insulate foundations and soften the thermal boundary between built and unbuilt. A copper-clad opening at ground level sits beside a deciduous tree, combining material specificity with seasonal shading.
These close-up moments reveal a level of detailing that holds up under scrutiny. The layered terracotta volumes read clearly at both the urban scale and the arm's length scale. The school avoids the trap of looking good in a drone shot but disappointing up close.
Classrooms and Interior Character



Inside, classrooms are direct and unfussy. A primary classroom features arched shelving niches built into the wall, pastel-toned furniture, and circular ceiling fixtures that pick up the school's recurring geometric language. Another room uses terrazzo flooring and a perforated ceiling to manage acoustics while keeping the palette neutral enough for focused work. The kindergarten classroom drops yellow rubber flooring and low storage cabinets into a space where windows frame the planting outside, drawing the landscape in.
The interiors succeed because they stay calm. There is no overdesign competing with what children bring to the rooms. Colors are controlled, materials are durable, and natural light is always present but modulated. The arched niches in the primary classroom are a small gesture that gives the room identity without resorting to murals or branded graphics.
Play and Outdoor Learning



The outdoor play area is shaded by a tensile fabric canopy stretched beneath terracotta facades, with a purple play structure and swing set positioned on resilient surfacing. It is practical, shaded, and protected from wind without being enclosed. Elsewhere, a two-story courtyard entry with a white projecting canopy and glass doors creates a threshold that doubles as a gathering point, complete with a picnic table under midday sun.
Play spaces in school design are often afterthoughts, shoved into leftover pockets of site. Here they occupy deliberate positions within the courtyard sequence, benefiting from the same shading and planting strategies that govern the rest of the building. Children do not have to choose between playing outside and staying cool.
Facade Screening Up Close


Looking straight up at the facade, the combination of terracotta panels and vertical metal screening produces a composition that manages to be rhythmic without becoming monotonous. The screening is deep enough to cast real shadow, not a decorative veneer pretending to shade. The gap between terracotta and screen allows air to circulate through the wall assembly, ventilating the cavity and reducing heat transfer.
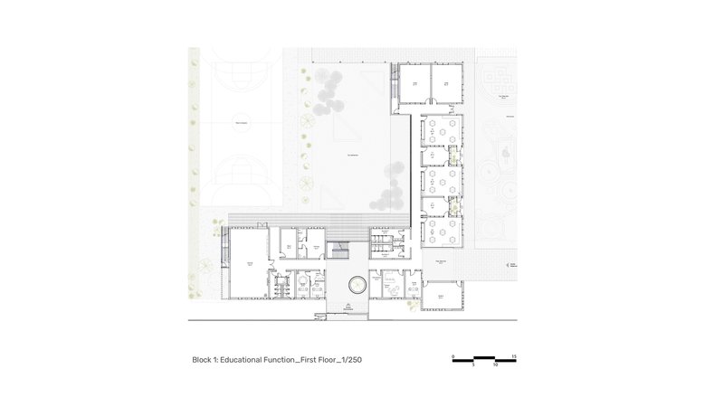
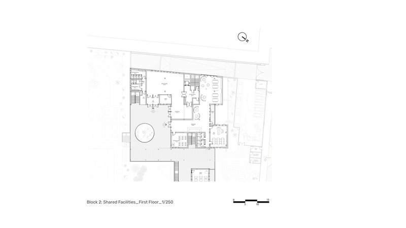
Plans and Drawings














The axonometric sequence is unusually thorough, breaking the project into discrete layers: site context, building volumes, courtyard voids, circulation, landscape, and green roofs. Read together, the drawings reveal how the triangular site is divided into three landscape zones with a central courtyard acting as the hinge between L-shaped classroom wings. The ground floor plan shows shared facilities clustered around a circular courtyard, while the first floor distributes classrooms along the wings with the circular void maintained as a vertical organizing element.
The underground parking plan confirms that even the below-grade level is shared with community facilities, not treated as pure infrastructure. The elevations are restrained, showing the building's deliberately low profile and the repetition of window bays that gives the facades their measured rhythm. The west and south elevations in particular demonstrate how varied roof heights create visual interest without ever exceeding the two-story datum that keeps the school rooted in its neighborhood.
Why This Project Matters
The Jacques Majorelle School matters because it refuses to treat climate adaptation and architectural quality as separate pursuits. In a region where the easy move is to seal a building with glass and rely on mechanical cooling, ZArchitecture Studio instead built a school that breathes. Every courtyard, every screen, every planted bed participates in a passive strategy that reduces energy demand while producing spaces worth inhabiting. For an educational building, that coherence between performance and experience is not just admirable; it is pedagogically productive.
It also succeeds as a piece of urban fabric. The low massing, the terracotta palette, the street-edge planting: the school belongs to Benguerir without mimicking anything. It demonstrates that contemporary Moroccan architecture can be regionally specific and materially rigorous at the same time, without falling into pastiche. For a building type that is too often generic, that is a significant contribution.
Jacques Majorelle School, Benguerir, Morocco. Designed by ZArchitecture Studio. Photography by Omar Tajmouati.
About the Studio
Share Your Own Work on uni.xyz
If projects like this are the kind of work you want to make, uni.xyz is a place to publish your own, find collaborators, and enter design competitions.
Popular Articles
Popular articles from the community
20 Most Popular Office Building Projects of 2025
From biophilic workspaces in India to net-positive energy offices in New Delhi, 20 office building projects that defined architecture in 2025.
boq architekti Fits a Gabled Family House onto a Tiny Moravian Hillside Plot with No Room for a Garden
A 115 square meter home in South Moravia trades a garden for a rooftop terrace and a fully glazed facade facing the village below.
Paco Oria Estudio Rebuilds a 1949 Valencian Town House Around Timber, Terracotta, and a New Interior Patio
In Godella, Spain, a semi-detached house from the postwar era is stripped to its party walls and rebuilt with wood and ceramics.
Studio Gram Unfurls a Concrete Curve Through an Adelaide Queen Anne Villa
In Rose Park, a billowing concrete threshold stitches a century-old house to a sun-chasing pavilion organized around an existing pool.
Similar Reads
You might also enjoy these articles
Olio Towers: A Mid-Rise for Performers That Fuses Housing, Rehearsal, and Stage
Located blocks from Houston's Theater District, this modular tower stacks living units around a central performance atrium.
Oasis: Modular Green Housing Carved into Dhaka's Urban Fabric
A shortlisted Plugin Housing entry reclaims unauthorized settlements in Dhaka with stepped concrete volumes, green roofs, and ventilation-driven design.
Black Hole: A Floating Megastructure for the Post-Physical Era
Emiliano Mazzarotto envisions a spherical, self-scaling arena where e-sports, digital hotels, and holographic stadiums replace traditional public space.
Compact & Sustainable Living in Piraeus: A Four-Level Family Home Built Around Light and Air
A narrow townhouse in one of Greece's densest port cities uses a central atrium and passive strategies to house three generations under one roof.
Explore Architecture Competitions
Discover active competitions in this discipline
The International Standard for Design Portfolios
The Global Benchmark for Architecture Dissertation Awards
The Global Benchmark for Graduation Excellence
Challenge to design public laboratory
Comments (0)
Please login or sign up to add comments
No comments yet. Be the first to comment!