Cloud House by ROOM+ Design & Build: A New Paradigm in Co-Living Architecture in Vietnam
An innovative co-living residence in Ho Chi Minh City that redefines affordable urban housing through design, community, and spatial poetry.
In the dense heart of Ho Chi Minh City, where affordability clashes with the desire for quality urban living, ROOM+ Design & Build presents a remarkable architectural response: Cloud House. This boutique co-living development reimagines how young professionals and couples can live comfortably, sustainably, and communally in a city where space is a luxury and the rental market is increasingly unaffordable.




Redefining Urban Living Through Co-Living Architecture
The urban housing crisis in Vietnam has reached critical levels, particularly for younger generations. Traditional tube-houses are often subdivided into cramped, poorly lit, and poorly ventilated rental units that offer little comfort or aesthetic value. Cloud House tackles this issue by offering a thoughtfully designed co-living solution that balances affordability, privacy, and shared community experience.



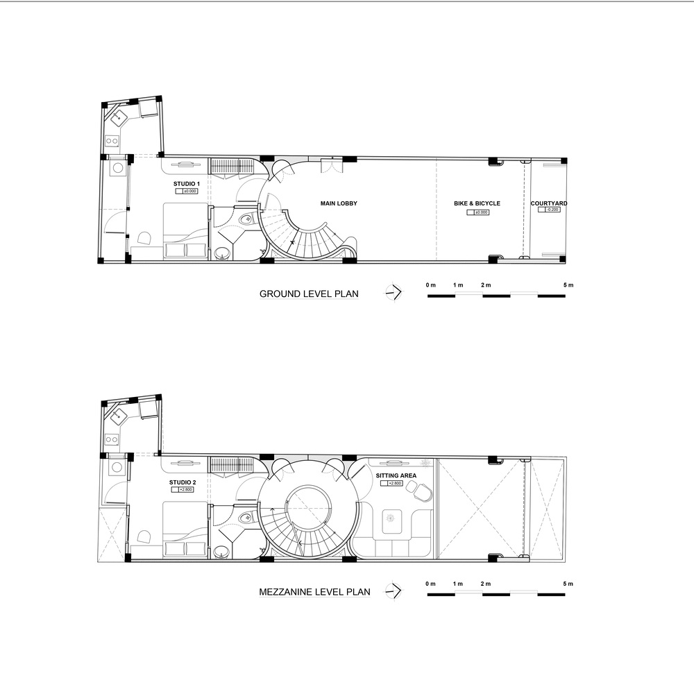
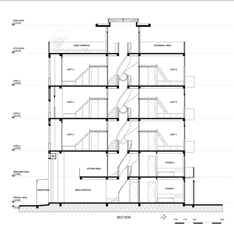
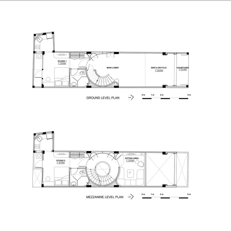
On a compact 70 square-meter plot located in a narrow 4-meter alley, the building’s design maximizes utility while maintaining architectural elegance. Surrounded by varied townhouses in terms of scale and form, Cloud House stands out as an innovative intervention in high-density Vietnamese urbanism.



Maximizing Compact Space with Loft-Style Suites
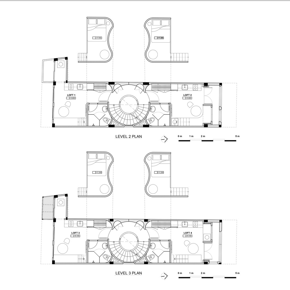
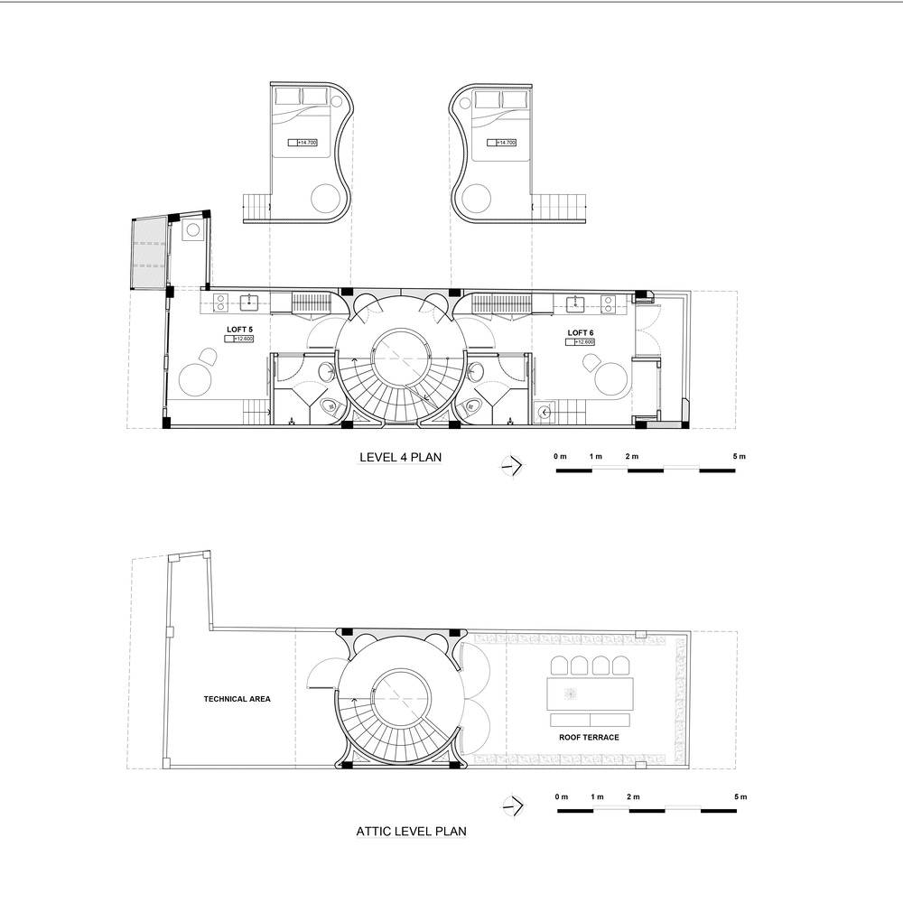
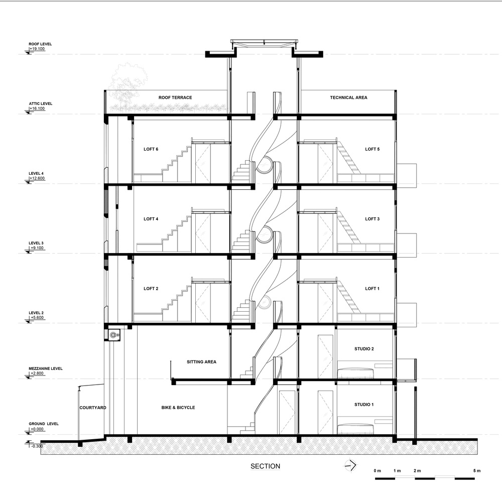
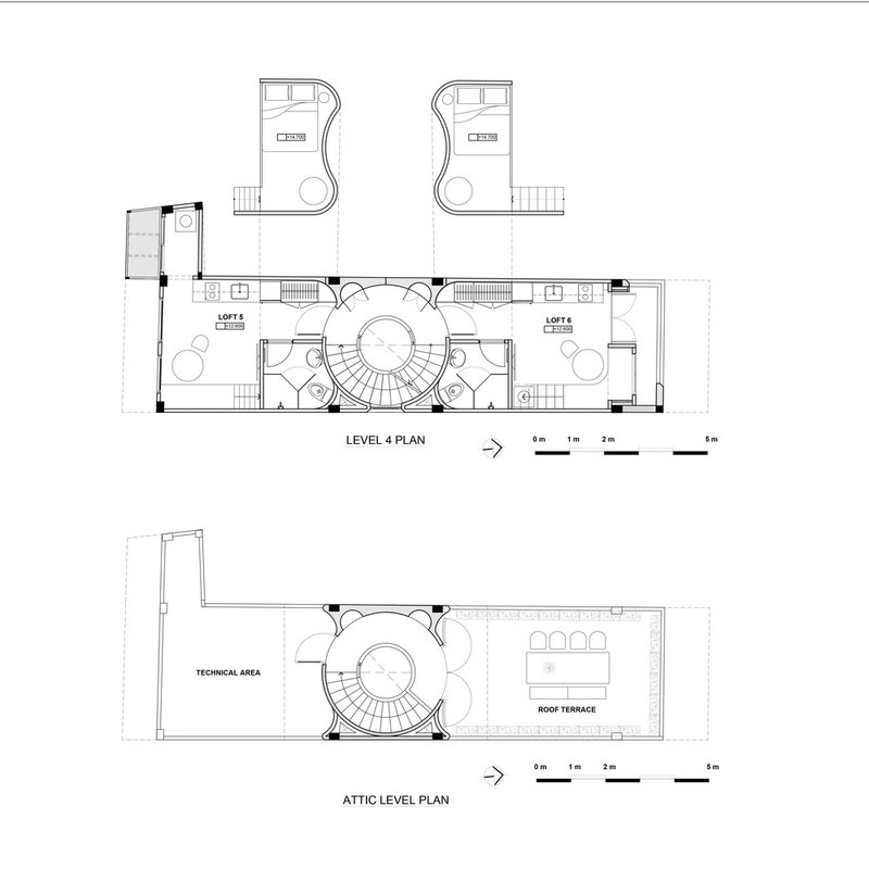
Cloud House accommodates six loft-style suites and two standard studios, all carefully arranged to make optimal use of the site’s limited footprint. With a 3.5-meter floor-to-ceiling height, each rental unit features a lofted sleeping area placed above the entry and bathroom zone. This layout offers a sense of vertical spaciousness while maintaining a cozy, private atmosphere for the occupants.


Interior finishes follow a minimalist aesthetic, emphasizing a neutral palette and functionality. Multi-purpose furniture is seamlessly integrated into the architecture, including seating benches, wardrobes, and storage solutions that are built into the framework. Staircases made from wood and lightweight steel-framed floors with cement boards add to the modular efficiency of each unit.


Building Community Through Shared Spaces
A defining characteristic of co-living architecture is its emphasis on communal interaction. Cloud House incorporates several semi-public spaces that foster a sense of community while enhancing convenience. A ground-level courtyard and half of the main floor are designated for bicycle and motorbike parking, catering to the practical needs of urban dwellers.

At the heart of the building, a sculptural spiral staircase provides both circulation and a space for informal encounters, adding architectural drama and fostering interaction. Communal areas, including a mezzanine-level sitting space and a rooftop terrace, serve as shared amenities that promote relaxation and socialization. These well-considered communal zones give the house a unique identity as a shared home rather than a transient rental facility.


Architecture Inspired by Nature and Imagination
The name Cloud House is not merely poetic—it reflects the visual and experiential motifs embedded in the building’s architecture. Circular and cloud-shaped windows on the front and rear facades allow light and air to pass through freely, creating an ever-changing interior landscape of shadows and highlights. These forms, paired with a rooftop skylight, deliver natural ventilation and daylight while protecting the privacy of residents.


This delicate balance between openness and enclosure draws inspiration from nature and introduces a dreamlike quality into the everyday urban experience. The curvilinear shapes and the tactile materials generate a sense of organic serenity, making each corner of Cloud House feel intimate yet connected to a larger narrative of urban renewal and spatial imagination.


A Vision for Affordable and Inspirational Urban Housing
Cloud House exemplifies how co-living architecture in Vietnam can go beyond functionality to embrace beauty, community, and sustainability. By responding to urgent socio-economic realities with creativity and care, ROOM+ Design & Build offers a new urban prototype—one that redefines rental housing not as a compromise, but as an opportunity to innovate.

As Vietnamese cities continue to grow and densify, projects like Cloud House stand as beacons for future architects and developers. They demonstrate that small sites, when handled thoughtfully, can yield large impacts—transforming lives, building communities, and shaping more humane cities.

All the photographs are works of Sonmeo Nguyen Art Studio
Popular Articles
Popular articles from the community
Split House: A Compact Urban Home Blending Privacy, Light, and Flexible Living in Japan
Compact Japanese home featuring DOMA space, flexible café potential, passive lighting, privacy zoning, and sustainable urban living design.
Solar Steam: A Climate-Responsive Architecture That Redefines the Monument
A climate-responsive memorial architecture that transforms heat, decay, and time into a living system reflecting humanity’s ecological impact.
The Ken Roberts Memorial Delineation Competition (Krob)
As the most senior architectural drawing competition currently in operation anywhere in the world, it draws hundreds of entries each year, awarding the very best submissions in a series of medium-based categories.
Fifth NRE Jazz Club – De Bever Architecten: Eindhoven’s Revitalized Cultural Hub
Historic gas factory transformed into Fifth NRE Jazz Club blending modern sustainability, jazz culture, dining, and heritage architecture seamlessly.
Similar Reads
You might also enjoy these articles
Free Architecture Competitions You Can Enter Right Now
No entry fees, real prizes. Here are the best free architecture competitions open for submissions in 2026.
Top 15 Architecture Competitions to Enter in 2026
From student-friendly idea competitions to prestigious international awards, here are the best architecture competitions open for entries in 2026. Updated regularly.
DIY & Engineering in Computational Design : Enter the BeeGraphy Design Awards
Showcase Your Creativity with Computational Design and Open Source Projects

Innovative Design Solutions: Award-Winning Projects from Recent Architecture Competitions
Exploring award-winning architectural projects shaping the future of design, sustainability, and community.
Explore Architecture Competitions
Discover active competitions in this discipline
The International Standard for Design Portfolios
The Global Benchmark for Architecture Dissertation Awards
The Global Benchmark for Graduation Excellence
Challenge to reimagine the Iron Throne
Comments (0)
Please login or sign up to add comments
No comments yet. Be the first to comment!