Community-Driven Cultural Center Design: The Transformation of Lá da FavelinhaCommunity-Driven Cultural Center Design: The Transformation of Lá da Favelinha

Community-Driven Cultural Center Design: The Transformation of Lá da Favelinha

UNI EditorialUNI Editorial
UNI Editorial published Blog under Architecture on

In the heart of Belo Horizonte's Favela Aglomerado da Serra, the Lá da Favelinha Cultural Center stands as a testament to the power of community-driven cultural center design. Spearheaded by Coletivo LEVANTE, this project embodies a collective effort to revitalize a previously unfinished building into a vibrant hub for culture, creativity, and social engagement.

Article image
Article image

The Genesis of Lá da Favelinha Cultural Center

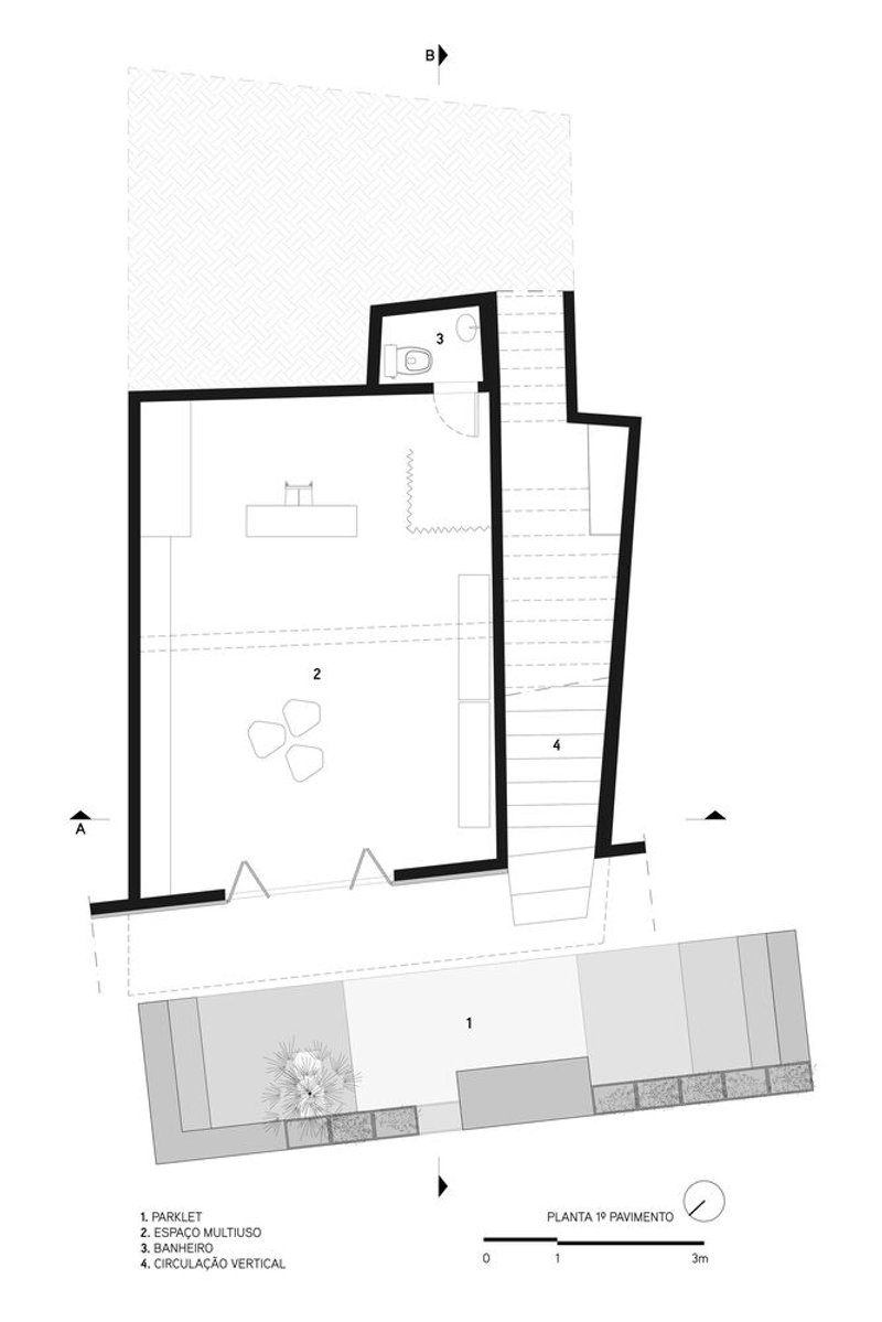
Occupying a modest area of 194.73m², the cultural center was born from an unfinished construction that began in 1995. The inception of LEVANTE Favelinha in 2017 marked a turning point, as architects, students, engineers, and local craftsmen came together to reimagine and complete the structure. Funded entirely by donations, this endeavor showcased the community's resilience and collective spirit.

Article image

Architectural Innovations and Collaborations

Embracing Openness and Flexibility

The renovation introduced a three-level design to maximize space utilization and foster natural lighting and ventilation. By reorganizing the spatial layout, the project enhanced the center's functionality while ensuring it remained a welcoming space for all. The incorporation of hollow elements and strategic openings facilitated a connection with the outdoor environment, offering a breath of fresh air in the dense urban fabric.

Article image
Article image
Article image
Article image

A Façade That Tells a Story

The cultural center's façade, adorned with red strips of agrarian fabric, is a striking visual statement that signifies its identity within the community. These textile elements, crafted by the REMEXE upcycling fashion project, not only mitigate direct sunlight but also symbolize the center's role as a beacon of cultural vibrancy. The building's "clothing" metaphorically reflects the creativity and dynamism of its inhabitants.

Article image
Article image
Article image

Collaborative Efforts for a Shared Vision

The project's success hinged on the collaboration between various stakeholders, including the design of plywood furniture by Jangada Factory, the community portrait mural by Bruno Ulhoa, and a parklet co-created with Micrópolis and local children. These partnerships underscored the project's ethos of collective action and shared ownership.

Article image
Article image
Article image

The Impact of Lá da Favelinha Cultural Center

Since its completion, Lá da Favelinha Cultural Center has transcended its physical boundaries to become a cornerstone of cultural and social activity in the favela. It has catalyzed a series of subsequent projects in the area, reinforcing the role of architecture in facilitating community development and cultural expression. The center not only provides a space for artistic endeavors but also stands as a model of sustainable, community-driven design that can inspire similar initiatives globally.

Article image
Article image
Article image

A Blueprint for Future Endeavors

Lá da Favelinha Cultural Center by Coletivo LEVANTE is more than just a building; it is a manifestation of community resilience, creativity, and collaboration. This project illustrates the transformative potential of community-driven cultural center design in revitalizing urban spaces and fostering a sense of belonging and cultural identity. As such, it offers valuable lessons for architects, planners, and communities worldwide in harnessing the power of collective action to create meaningful and sustainable environments.

Article image
Article image

All the photographs are work of Matheus Angel, Leonardo FinottiFernando MaculanBruna Brandão

UNI EditorialUNI Editorial

UNI Editorial

Where architecture meets innovation, through curated news, insights, and reviews from around the globe.

Share your ideas with the world

Share your ideas with the world

Write about your design process, research, or opinions. Your voice matters in the architecture community.

UNI EditorialUNI Editorial
Search in