Contemporary House Renovation: Faria House by Estúdio OLO
This contemporary house renovation by Estúdio OLO redefines spatial efficiency, integrating modern aesthetics, functionality, and natural elements for a harmonious living space.
A Thoughtful Transformation of an Existing Home
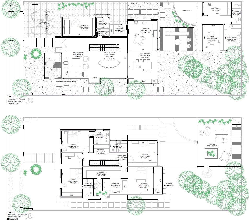
The Faria House by Estúdio OLO exemplifies the art of contemporary house renovation, redefining an aging structure into a seamless blend of functionality, aesthetics, and comfort. Situated in Brazil, this 380-square-meter home underwent a complete transformation, balancing modern spatial organization with the warmth of a traditional residence.



Acquired for its prime location and untapped potential, the house required extensive restructuring to align with the lifestyle needs of its new residents. The architectural intervention focused on maximizing natural light, enhancing ventilation, and creating an intuitive flow between indoor and outdoor spaces. The result is a carefully curated home that respects its original character while embracing a fresh, contemporary identity.



Reimagining Space for Modern Living
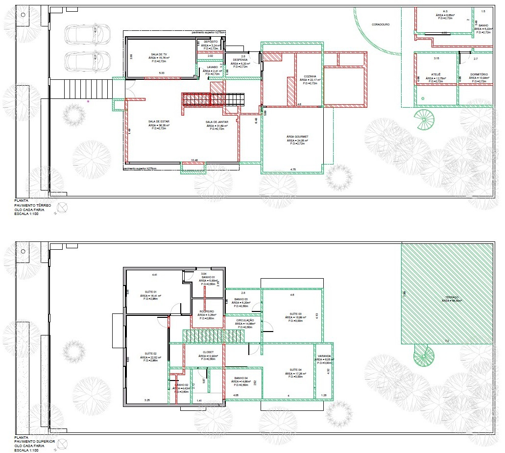
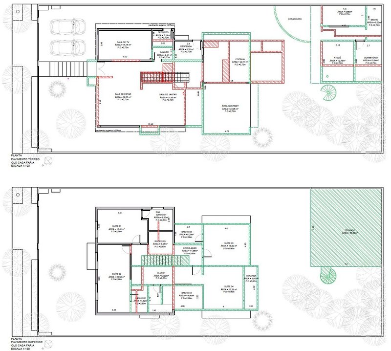
One of the primary goals of this contemporary house renovation was to improve spatial efficiency without sacrificing coziness. The original garage was reallocated, making way for a new TV room, while the carport found its place at the front setback. A more intuitive circulation was achieved by repositioning the staircase, leading to an open-plan layout that seamlessly integrates different functional areas.





The service area was transformed into a spacious kitchen connected to an elegant gourmet space. At the rear of the property, an old shed was repurposed into a versatile studio, a laundry room, and a guest bedroom, expanding the home’s livability while maintaining its connection to the outdoors. The introduction of a striking cobogó arch in the courtyard not only enhances visual appeal but also serves as a privacy screen, reinforcing the relationship between architecture and landscape.






Expanding Upward: A New Approach to Comfort
The upper floor expansion allowed for the creation of larger, more comfortable living spaces. A new master suite was introduced, along with an additional bedroom that complements the revised layout. The renovation preserved key original elements, such as the facade windows, ensuring a continuity between the home’s past and present. Meanwhile, contemporary volumes, updated materials, and a refreshed color palette bring a sophisticated and timeless appeal to the new design.






Landscaping plays a crucial role in this transformation, weaving through the ground floor and enhancing the home’s sensory experience. The integration of green spaces not only adds to the home’s aesthetic charm but also fosters a sense of tranquility and well-being.





A Model for Contemporary Home Renovation
Faria House stands as a testament to the power of contemporary house renovation, demonstrating how thoughtful design can breathe new life into an existing structure. Estúdio OLO's approach balances modernization with the preservation of architectural essence, crafting a home that is both functional and emotionally resonant.




The project illustrates the potential of spatial reconfiguration, sustainable material choices, and the interplay between architecture and nature. By embracing both innovation and tradition, this renovation serves as a blueprint for future projects seeking to merge heritage with modernity, proving that transformation can be both respectful and forward-thinking.



All photographs are works of André Mortatti
Popular Articles
Popular articles from the community
Solar Steam: A Climate-Responsive Architecture That Redefines the Monument
A climate-responsive memorial architecture that transforms heat, decay, and time into a living system reflecting humanity’s ecological impact.
The Ken Roberts Memorial Delineation Competition (Krob)
As the most senior architectural drawing competition currently in operation anywhere in the world, it draws hundreds of entries each year, awarding the very best submissions in a series of medium-based categories.
Free Architecture Competitions You Can Enter Right Now
No entry fees, real prizes. Here are the best free architecture competitions open for submissions in 2026.
Split House: A Compact Urban Home Blending Privacy, Light, and Flexible Living in Japan
Compact Japanese home featuring DOMA space, flexible café potential, passive lighting, privacy zoning, and sustainable urban living design.
Similar Reads
You might also enjoy these articles
The Ken Roberts Memorial Delineation Competition (Krob)
As the most senior architectural drawing competition currently in operation anywhere in the world, it draws hundreds of entries each year, awarding the very best submissions in a series of medium-based categories.
Waterfront Redevelopment and Urban Revitalization in Mumbai: Forging a New Dawn for Darukhana
A transformative waterfront redevelopment project reimagining Darukhana’s shipbreaking heritage into an inclusive urban future.
OUT-OF-MAP: A Call for Postcards on Feminist Narratives of Public Space
Rhizoma Design and Research Lab invites artists, designers, architects, researchers, and students to reflect on how feminist perspectives can reshape public space. Selected works will be exhibited in Barcelona, October 2026. Submissions open until 15 April 2026.
Documentation Work on Buddhist Wooden Temple
Architectural syncretism and cultural hybridity: A comparative study of the Buddhist temples in Chattogram Hill tracks
Explore Architecture Competitions
Discover active competitions in this discipline
The International Standard for Design Portfolios
The Global Benchmark for Architecture Dissertation Awards
The Global Benchmark for Graduation Excellence
Challenge to reimagine the Iron Throne
Comments (0)
Please login or sign up to add comments
No comments yet. Be the first to comment!