Coor Seongsu Flagship Store by ATELIER KHJ - A Retail Interior That Consumes Its Own Space
A flagship that removes floors to create vertical void, where fashion floats within raw concrete, light, and intuitive circulation.
Seoul, South Korea — ATELIER KHJ, 2023
In the crowded and highly competitive commercial landscape of Seoul, where every square meter carries measurable financial weight and retail development is often reduced to efficiency-driven spatial maximization, one building defies the conventional equation. The Coor Seongsu Flagship Store, designed by ATELIER KHJ under lead architect Hyunjong Kim, is not shaped by the logic of profit-per-floor. Instead, it is shaped by void — by what is intentionally removed, rather than by what is added.

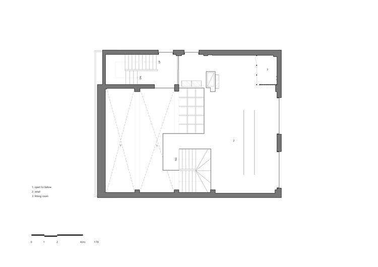
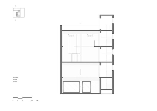
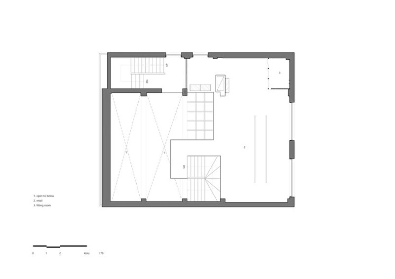
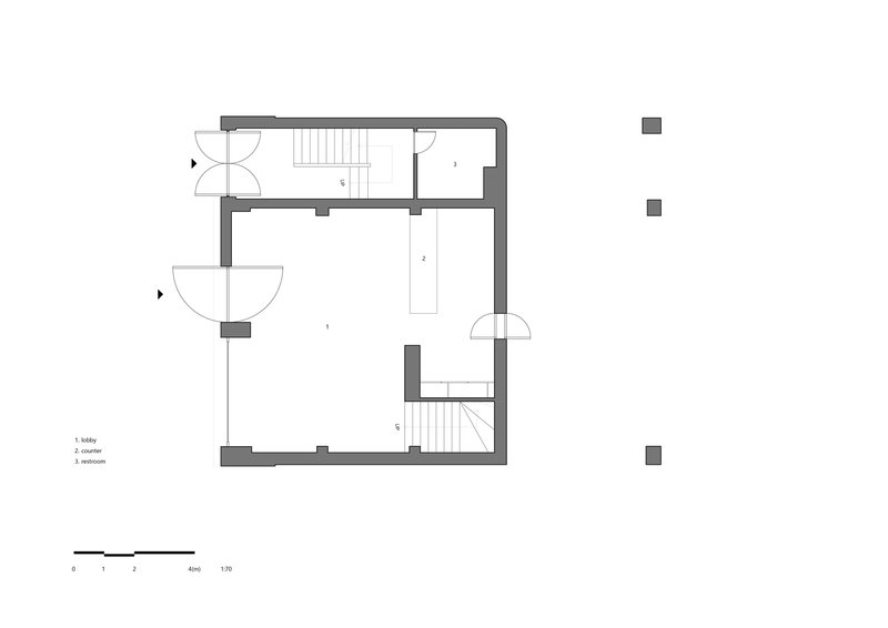
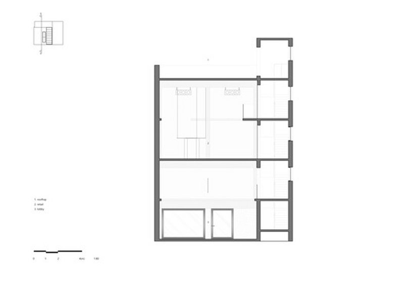
At first glance, the project seems counterintuitive: a retail brand in one of the fastest-growing districts of Seoul willingly sacrifices floor area. More than half of the second-floor slab is cut away. Two-thirds of the fourth-floor slab disappears. What remains is a four-story volume transformed into a two-story spatial experience, where air circulates freely, sightlines expand upward, and visitors become conscious of height before they become conscious of merchandise.
This is not architecture for storage or density. This is architecture for perception.In Seongsu — a district where industrial heritage and new culture collide — this building stands as an experiment in spatial restraint.

A Retail Project That Begins with Subtraction
The design began by acknowledging a limitation no developer typically embraces: the willingness to remove real estate value. Most commercial interior strategies increase circulation, add display surfaces, and compress vertical space to maximize product presence and optimize movement flow.
ATELIER KHJ made the opposite choice.
Rather than stacking floor plates tightly, the architects removed them. Rather than maximizing shelving, they expanded void. Rather than hiding structure, they exposed it — allowing beams, columns, and the scars of removal to remain visible.

The decision is quiet but radical. In a district where brands compete visually through signage and frontage, this store competes through emptiness. The result is a flagship space that breathes. A space that values experience over surface, memory over merchandise, atmosphere over quantity.
The brand Coor, a fashion label rooted in identity, materiality, and urban subculture, becomes amplified rather than overshadowed by the reduction. Clothing pieces no longer fill a space. They float in it.
Circulation as Invitation Rather Than Instruction
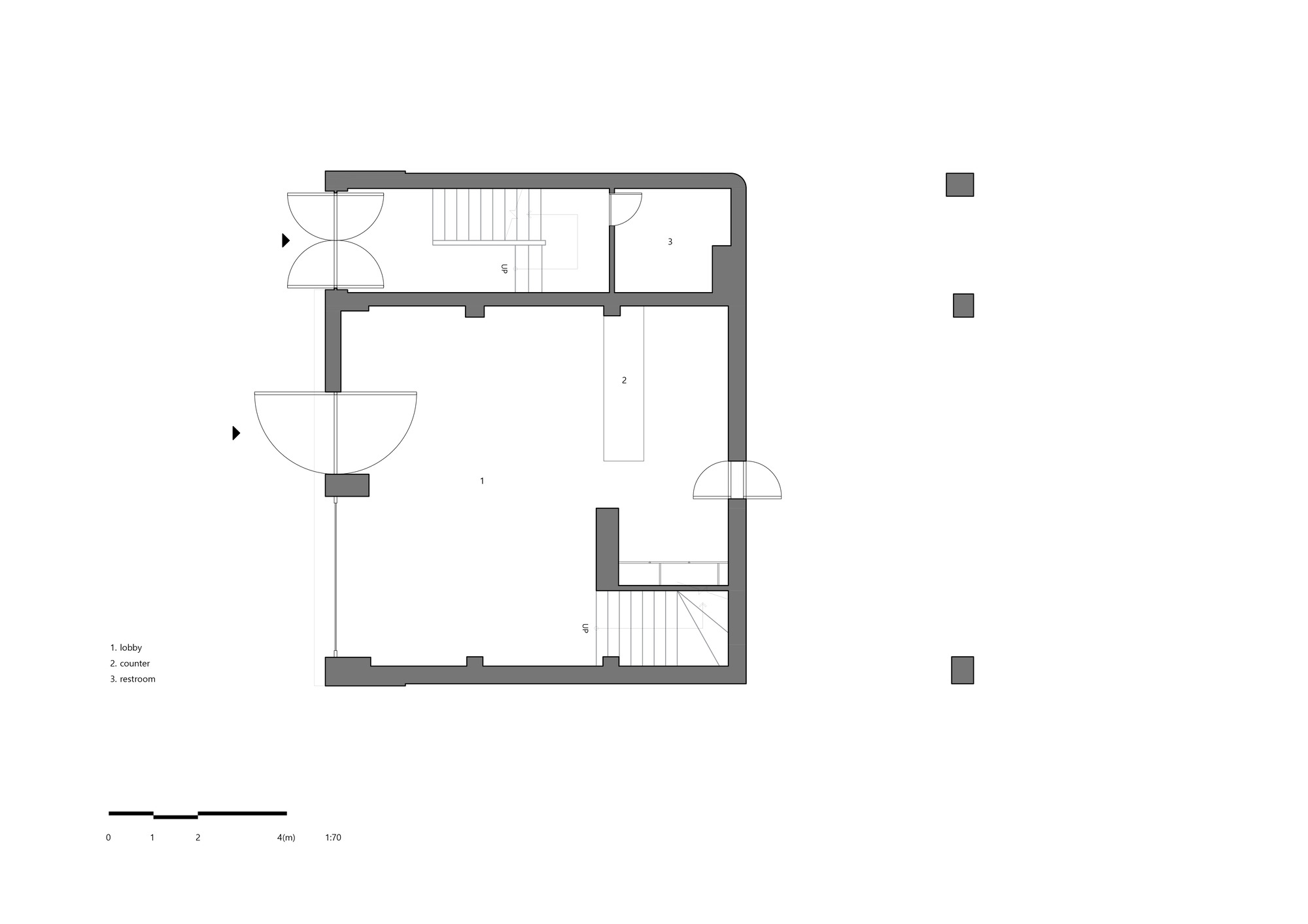
Retail circulation is often engineered like a map — arrows directing, shelves confining, flow manipulated toward purchase. But here, movement is not prescribed. It is suggested, encouraged, allowed.
The design team spent considerable time exploring not just how people would walk, but how they would want to walk — without thinking. The result is a spatial gradient, an intuitive progression upward through a sequence of carefully dimensioned passages and stair flights. The architects questioned the ideal spatial width for comfort, the stair height that would feel least effortful, and the lighting conditions that would soften ascent.


Three principles shaped circulation:
Visitors must feel comfortable.They must ascend instinctively.And they must feel rewarded upon reaching the top.
The uppermost level unfolds as an unexpected destination — a culmination of movement through void, structure, and layered heights. Arrival itself becomes the reward.
One does not climb to shop. One climbs to experience space — and shopping happens inside that experience.

Vertical Volume as Retail Strategy
By merging the first and second levels, then visually linking spaces up to the third and fourth, the flagship becomes a single continuous chamber rather than a stack of floors. The visitor stands on the ground floor but feels presence across four vertical layers. Sunlight enters from above, and air circulates like weather inside a canyon.

The void becomes not absence but character.
Columns no longer hide within walls — they stand as relics of what the building once was.Cut slabs remain as outlines — negative volumes that frame the new interior like memory.Above, platforms hover like incomplete fragments, offering glimpses into upper levels without immediate access.
This creates a spatial tension rarely found in commercial architecture. The visitor sees where they are not yet allowed to be. The store becomes a three-dimensional mystery — a spatial cliffhanger.

Material Language: Concrete, Light, and the Raw Truth of Structure
The Coor Seongsu space does not decorate.It reveals.
Concrete walls show their pores.Beams carry scars of removed slabs.Surfaces remain unpolished, sometimes even imperfect.
This rawness is not industrial for style’s sake — it is structural honesty. Clothing hangs from racks not attached to walls, but suspended between columns and voids. The garments float like linear brushstrokes across concrete sky.

What other stores fill with light fixtures, signage, screens, and branding, this store fills with silence and height.
The architecture itself is brand narrative.
Light pours down from vertical openings, crosses slab edges like waterfalls, and reflects off polished fabric textures. The contrast between rough concrete and soft textile emphasizes material duality — the building remains silent so clothing can speak.

Space as Commodity, Void as Luxury
In contemporary retail culture, density often equals value. More product means more possibility. More floor means more revenue. But at Coor Seongsu, space itself is the luxury item. To remove material space inside a commercial building is to declare that void is meaningful — that experience can outweigh stock count.

The architects use absence as currency.Every cubic meter removed becomes emotional surplus.Every fragment retained becomes spatial artifact.
Customers do not simply browse racks — they inhabit verticality. They see themselves from below, from above, reflected across railings, framed between slabs. They become characters inside the architecture, not merely consumers within it.
It is retail as performance.And the visitor is performer as much as audience.


The Concept of Floating
Perhaps the most striking spatial sensation is a feeling of suspension. The racks appear detached from the floor, framed in air. Shadows fall freely, unhindered by partitions. The slabs that remain do not extend to walls — they hover like geological shelves.


Nothing touches cleanly.Everything hovers.The space itself floats.
This is where the architects describe the experience as "consuming space". Not in the commercial sense of using area, but in the atmospheric sense of occupying void as if it were material.
A visitor sees light mixing with air, concrete intersecting with shadow, clothing suspended in quiet motion. It becomes possible to imagine space as edible — to imagine emptiness as full.


Seongsu — Context and Cultural Positioning
The district of Seongsu is often described as Seoul’s response to Brooklyn or East London: warehouses converted to galleries, handmade fashion labels emerging inside old factories, concrete columns and exposed ducts replacing polished retail finishes. Coor Seongsu acknowledges this context but refuses cliché. It is not industrial nostalgia — it is future-industrial abstraction.

The building retains structural bones without romanticizing abandonment. It is raw without being unfinished. It is minimal without being empty.
It reflects Seongsu without imitating it — and therefore fits the district with quiet confidence.

Architecture as Brand Identity
The flagship is not a container for clothing. It is the physical embodiment of Coor’s brand ethic — material precision, reduction, spatial clarity. Rather than using graphic signifiers to create identity, the architecture itself communicates ethos.

The store becomes wearable, not visual.It imprints itself on memory through scale, not signage.It becomes a spatial garment — simple in cut, powerful in form.
Customers leave not only with clothing, but with an experience that lingers spatially in the mind.


All the Photographs are works of Sun Kim(ATELIER KHJ)
Popular Articles
Popular articles from the community
Split House: A Compact Urban Home Blending Privacy, Light, and Flexible Living in Japan
Compact Japanese home featuring DOMA space, flexible café potential, passive lighting, privacy zoning, and sustainable urban living design.
Atelier Macri Concept Store Interior Design by CASE-REAL
Atelier Macri store features a "ko" counter, walnut wood details, cork displays, blending retail, gallery, and seamless customer experiences.
Solar Steam: A Climate-Responsive Architecture That Redefines the Monument
A climate-responsive memorial architecture that transforms heat, decay, and time into a living system reflecting humanity’s ecological impact.
Fifth NRE Jazz Club – De Bever Architecten: Eindhoven’s Revitalized Cultural Hub
Historic gas factory transformed into Fifth NRE Jazz Club blending modern sustainability, jazz culture, dining, and heritage architecture seamlessly.
Similar Reads
You might also enjoy these articles
The Ken Roberts Memorial Delineation Competition (Krob)
As the most senior architectural drawing competition currently in operation anywhere in the world, it draws hundreds of entries each year, awarding the very best submissions in a series of medium-based categories.
Waterfront Redevelopment and Urban Revitalization in Mumbai: Forging a New Dawn for Darukhana
A transformative waterfront redevelopment project reimagining Darukhana’s shipbreaking heritage into an inclusive urban future.
OUT-OF-MAP: A Call for Postcards on Feminist Narratives of Public Space
Rhizoma Design and Research Lab invites artists, designers, architects, researchers, and students to reflect on how feminist perspectives can reshape public space. Selected works will be exhibited in Barcelona, October 2026. Submissions open until 15 April 2026.
Documentation Work on Buddhist Wooden Temple
Architectural syncretism and cultural hybridity: A comparative study of the Buddhist temples in Chattogram Hill tracks
Explore Architecture Competitions
Discover active competitions in this discipline
The International Standard for Design Portfolios
The Global Benchmark for Architecture Dissertation Awards
The Global Benchmark for Graduation Excellence
Challenge to reimagine the Iron Throne
Comments (0)
Please login or sign up to add comments
No comments yet. Be the first to comment!