Custom Home Design Features: A Closer Look at the Zigzag House by Dan Gayfer Design
Exploring Zigzag House's unique custom design features, blending natural light, bespoke materials, and tailored functionality.
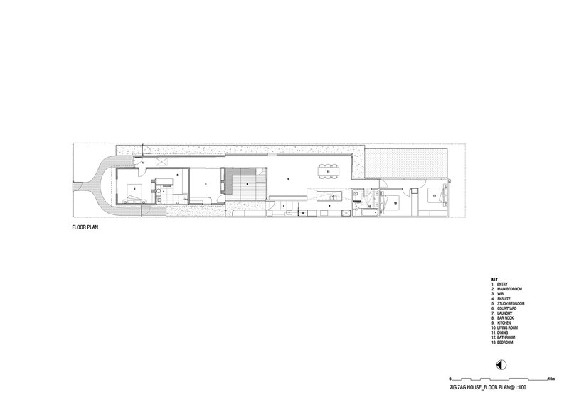
Nestled in the vibrant locale of Thornbury, Australia, the Zigzag House emerges as a pinnacle of custom home design features, showcasing the innovative spirit of Dan Gayfer Design. Spanning 178 m² and completed in 2023, this single-fronted family home exemplifies how bespoke elements and a thoughtful approach to materials can transform living spaces into unique, engaging environments.



Bespoke Design Elements and Materials
The Art of Detailing
The Zigzag House is a testament to the meticulous attention to detail that defines custom home design. From the terrazzo benchtops in the bathroom featuring a unique zigzag-like incision for hand towels to the custom skylight that bathes the kitchen and dining spaces in natural light, every element has been carefully considered and crafted to enhance functionality and aesthetic appeal.




Marble Elegance and Parquetry Patterns
The island bench stands as the centerpiece of the house, with its marble construction presenting an elegance and fluidity not typically associated with stone. This, paired with the distinctive Chevron pattern of the European Oak timber parquetry flooring, exemplifies the harmonious blend of smooth and dynamic textures that characterizes the home's interior design.




Tailored Functionality
Engaging Spaces
The design of the Zigzag House goes beyond mere visual appeal, incorporating features tailored to the inhabitants' lifestyles. The bar nook, with its custom wine glass storage and drawer inserts for wine bottles, serves as a perfect example of how functionality can be seamlessly integrated with bespoke design to create spaces that are both personalized and highly functional.






Natural Light as a Design Feature
The strategic placement of a 4.6m x 1.2m custom skylight above the kitchen island ensures that the heart of the home is always filled with natural light, making these central living spaces inviting and vibrant. This focus on natural illumination highlights the importance of light in enhancing the spatial quality and ambiance of custom-designed homes.
The Zigzag House by Dan Gayfer Design is a masterclass in custom home design features, showcasing how innovative design solutions and bespoke elements can come together to create a home that is not only visually stunning but also deeply functional and engaging. Through its unique use of materials, tailored spaces, and emphasis on natural light, the Zigzag House stands as a beacon of personalized, contemporary residential architecture.


All Photographs are the work of Dean Bradley
Popular Articles
Popular articles from the community
Flamboyant House by Juliana Camargo + Prumo Projetos
Modern Brazilian house integrating existing tree, pool, and volumes with glass, wood, and transitional spaces blending interior, exterior, and landscape seamlessly.
The Ken Roberts Memorial Delineation Competition (Krob)
As the most senior architectural drawing competition currently in operation anywhere in the world, it draws hundreds of entries each year, awarding the very best submissions in a series of medium-based categories.
Treehouse Apartment: A Warm Timber Interior Blending Craft, Play, and Contemporary Living
Warm timber apartment with integrated treehouse, combining natural materials, craftsmanship, and playful design to create a flexible, family-oriented living environment.
A Contemporary Take on Iranian Residential Architecture
A modern interior design in Mashhad that reinterprets brick, light, and spatial flow to create a warm, contemporary residential architecture.
Similar Reads
You might also enjoy these articles
Top 15 Architecture Competitions to Enter in 2026
From student-friendly idea competitions to prestigious international awards, here are the best architecture competitions open for entries in 2026. Updated regularly.
DIY & Engineering in Computational Design : Enter the BeeGraphy Design Awards
Showcase Your Creativity with Computational Design and Open Source Projects

Innovative Design Solutions: Award-Winning Projects from Recent Architecture Competitions
Exploring award-winning architectural projects shaping the future of design, sustainability, and community.
Explore Architecture Competitions
Discover active competitions in this discipline
The International Standard for Design Portfolios
The Global Benchmark for Architecture Dissertation Awards
The Global Benchmark for Graduation Excellence
Challenge to reimagine the Iron Throne
Comments (0)
Please login or sign up to add comments
No comments yet. Be the first to comment!