Discovering Elegance: The Stream House in Pune Redefining Distinctive Residential Design
Explore Pune's Stream House: Distinctive residential design blending Japanese minimalism, Indian ethos, and organic aesthetics.
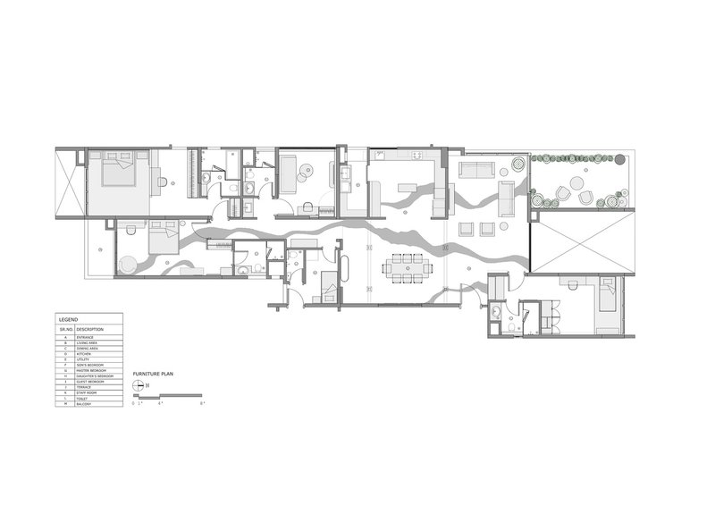
Situated in Pune, India, "The Stream House" by amoeba design stands as a testament to distinctive residential design, blending cultural influences and organic aesthetics. Spanning 2600 ft² and completed in 2023, this architectural marvel redefines the essence of modern living.




A Lively Journey Inspired by Free Spirits
Nikhil and Anjali, the spirited owners, embarked on a unique design journey with amoeba design. Known for their uninhibited approach, the clients sought to manifest their lives poetically into a home, resulting in the creation of the vibrant 'Stream House.' Unlike a placid river, the design mirrors the youthful energy of a rushing stream, embracing twists and turns with vigor.



Fusion of Japanese Minimalism and Indian Ethos
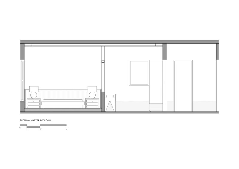
The project's design journey commenced with a nod to Japanese minimalism, incorporating clean lines and uncluttered aesthetics. Embracing the ethos of Indian architecture, wooden columns and screens were strategically used to craft nested spaces, infusing intimacy and intrigue. The result is a harmonious blend that pays homage to both cultures, creating a space that resonates with authenticity.


Transparency and Authenticity Woven in Design
The interior of The Stream House serves as a canvas reflecting the genuine essence of amoeba design's approach. From exposed joinery to carefully crafted wooden elements, every detail lays bare its true nature, mirroring the transparency and sincerity of the clients. Inspired by Shoji paper screens, wardrobe shutters incorporate frosted glass, paying homage to Japanese craftsmanship.




Embracing Imperfections: A Dance of Geometry and Nature
The Stream House strikes a delicate balance between geometric precision and the beauty of nature's imperfections. Organic elements take center stage, from undulating flows to curved skirting against the wall. The design ensures that geometry never overwhelms, creating a palpable sense of weightlessness that permeates the space.


Illuminating Life's Richness and Complexity
Vaulted ceilings introduce a touch of drama, playing with light to create an enchanting interplay of shadows and illumination. Art within The Stream House is not mere decoration but a curated collection that tells a story, paying homage to the ebb and flow of life. The diverse elements converge to showcase the radiant beauty of imperfection, a testament to the richness and complexity of life within these walls.




"The Stream House" in Pune transcends the boundaries of residential design, offering a unique blend of cultural influences and organic aesthetics. amoeba design's meticulous approach and fusion of Japanese minimalism with Indian ethos create a space that authentically reflects the vibrant personalities of its owners. Discover the elegance within the distinctive residential design, where transparency, authenticity, and a harmonious dance of nature and geometry redefine modern living.
All Photographs are the work of Yadnyesh Joshi
Popular Articles
Popular articles from the community
Louis Malle Cinema: A Limestone Cultural Landmark Revitalizing Community Life in Prayssac
Limestone cinema extension with public forecourt, blending heritage and modern design to create flexible cultural spaces and strengthen community interaction.
Treehouse Apartment: A Warm Timber Interior Blending Craft, Play, and Contemporary Living
Warm timber apartment with integrated treehouse, combining natural materials, craftsmanship, and playful design to create a flexible, family-oriented living environment.
Flamboyant House by Juliana Camargo + Prumo Projetos
Modern Brazilian house integrating existing tree, pool, and volumes with glass, wood, and transitional spaces blending interior, exterior, and landscape seamlessly.
Solar Steam: A Climate-Responsive Architecture That Redefines the Monument
A climate-responsive memorial architecture that transforms heat, decay, and time into a living system reflecting humanity’s ecological impact.
Similar Reads
You might also enjoy these articles
The Ken Roberts Memorial Delineation Competition (Krob)
As the most senior architectural drawing competition currently in operation anywhere in the world, it draws hundreds of entries each year, awarding the very best submissions in a series of medium-based categories.
Waterfront Redevelopment and Urban Revitalization in Mumbai: Forging a New Dawn for Darukhana
A transformative waterfront redevelopment project reimagining Darukhana’s shipbreaking heritage into an inclusive urban future.
OUT-OF-MAP: A Call for Postcards on Feminist Narratives of Public Space
Rhizoma Design and Research Lab invites artists, designers, architects, researchers, and students to reflect on how feminist perspectives can reshape public space. Selected works will be exhibited in Barcelona, October 2026. Submissions open until 15 April 2026.
Documentation Work on Buddhist Wooden Temple
Architectural syncretism and cultural hybridity: A comparative study of the Buddhist temples in Chattogram Hill tracks
Explore Architecture Competitions
Discover active competitions in this discipline
The International Standard for Design Portfolios
The Global Benchmark for Architecture Dissertation Awards
The Global Benchmark for Graduation Excellence
Challenge to design luxury tourism on rails
Comments (0)
Please login or sign up to add comments
No comments yet. Be the first to comment!