Elevating Urban Harmony: The Design Genius of SOSU ARCHITECTS' WAVE (dot wave) Mixed-Use Building
SOSU ARCHITECTS' WAVE (dot wave) transforms urban living, harmonizing modern design with community connectivity and precision.
SOSU ARCHITECTS' WAVE (dot wave) in Yangcheon-gu, South Korea, stands as a testament to innovative urban design, seamlessly integrating a mixed-use building into a densely populated residential area. This architectural masterpiece redefines the cityscape, creating a harmonious relationship between the existing urban fabric and the new construction.
Harmonizing Scale and Community Living
WAVE (dot wave) addresses the challenge of maximizing floor area ratio in a residential area, ensuring a delicate balance between neighborhood living and commercial spaces. With a 51:49% ratio and a commitment to a zero vacancy rate, the architects crafted a design that not only complements the surrounding scale but also establishes new connections with the community.






Bridging Gaps for Connectivity
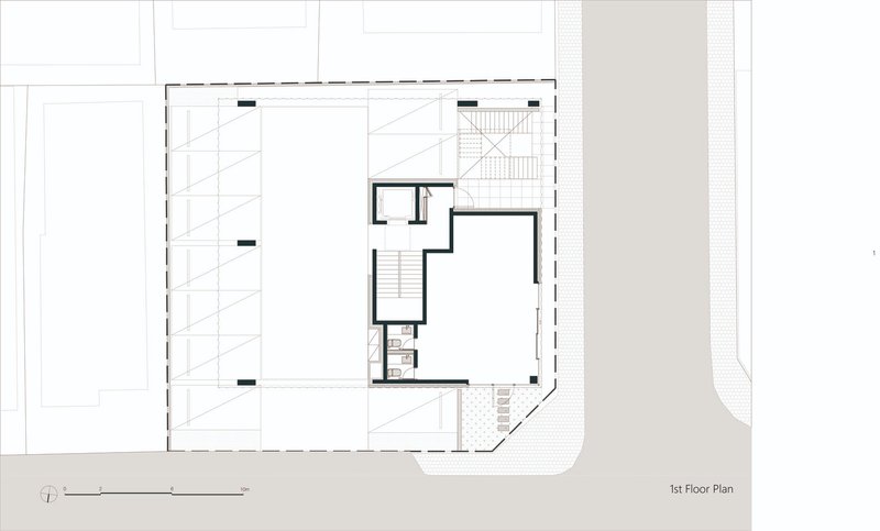
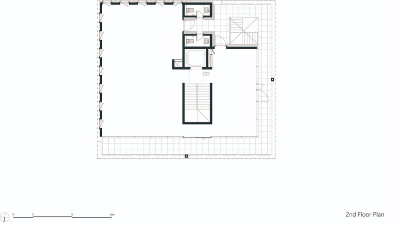
Central to WAVE's design philosophy are the two types of gaps – horizontal and vertical. The horizontal gap employs external stairs and balconies, enhancing accessibility and connecting urban streets with neighborhood living facilities. Meanwhile, the vertical gap acts as an environmental conduit for upper-level residential spaces, offering small yards and unobstructed views.



Vertical and Horizontal Harmony
The vertical gap, strategically positioned to improve relations with adjacent lands, provides small yards for each household. Unaffected by visual interference, the windows act as conduits for natural light, fostering a seamless integration of interior and exterior spaces. This thoughtful design enhances residents' quality of life, offering a serene oasis in the heart of the city.





Simplicity in Complexity
Recognizing the disorderly nature of the surrounding residential area, SOSU ARCHITECTS opted for simplicity to create open spaces. The use of bricks, uniform in color, contrasts with the concrete mass and emphasizes the rhythmic curves that define the facade. The design choice not only simplifies the visual landscape but also contributes to the urban street experience.

Precision in Construction
WAVE showcases precision and homogeneity in construction through the use of Glass Fiber Reinforced Concrete (GFRC) panels. The undulating panels, coupled with strategically placed bricks, introduce variations in texture and shadow, offering a dynamic visual experience that evolves with time and perspective.

SOSU ARCHITECTS' WAVE (dot wave) stands as a beacon of innovative urban design, seamlessly merging architectural excellence with a commitment to community living. This mixed-use building not only elevates the cityscape but also fosters a sense of harmony between modern construction and existing neighborhoods. In its thoughtful integration of gaps, simplicity, and precision, WAVE sets a new standard for contemporary urban architecture.







All Photographs are the work of Park Yeongchae
Popular Articles
Popular articles from the community
Biophilic Architecture and Regenerative Stadium Design: Biophilia Lagos by Rachel George
A regenerative stadium in Lagos transforms landfill into a living ecosystem through biophilic architecture, waste reuse, and environmental healing.
Paco Oria Estudio Rebuilds a 1949 Valencian Town House Around Timber, Terracotta, and a New Interior Patio
In Godella, Spain, a semi-detached house from the postwar era is stripped to its party walls and rebuilt with wood and ceramics.
H&P Architects Stack a Vertical River of Brick and Greenery in Hanoi
A perforated terracotta tower in Dong Anh channels water, light, and air through eight staggered levels of domestic life.
1-1 Architects Builds a Nagoya House and Office from Decades of Stockpiled Timber
A 69-square-meter tower in dense residential Nagoya transforms surplus lumber into a home and workplace for a construction company.
Similar Reads
You might also enjoy these articles
BICA Arquitectos Buries a Coastal Home in a Man-Made Dune on Portugal's Tróia Peninsula
A 300-square-meter house of timber, sand mortar, and travertine dissolves into the dune landscape it helped regenerate on the Alentejo coast.
The Ranch Mine Runs a White Pavilion Parallel to a 1970s House in Paradise Valley
A hemlock-lined addition reframes desert living by pulling light, views, and a courtyard pool from an outdated Arizona home.
Architects Group RAUM Stacks Offset White Volumes into a Compact Office Tower in Busan
A 524-square-meter building on a tight corner lot in Haeundae plays with sunlight rights and shifting floor plates to create generous terraces.
Studio Gram Unfurls a Concrete Curve Through an Adelaide Queen Anne Villa
In Rose Park, a billowing concrete threshold stitches a century-old house to a sun-chasing pavilion organized around an existing pool.
Explore Architecture Competitions
Discover active competitions in this discipline
The International Standard for Design Portfolios
The Global Benchmark for Architecture Dissertation Awards
The Global Benchmark for Graduation Excellence
Challenge to reimagine the Iron Throne
Comments (0)
Please login or sign up to add comments
No comments yet. Be the first to comment!