Embrace Nature: A Tranquil Retreat in Urban Vietnam - HY House by TRAN TRUNG Architects
Urban Tranquility: HY House in Vietnam redefines narrow living with a tropical shell, fostering well-being.

In the wake of post-Covid challenges, urban living takes a transformative turn at HY House in Vietnam. Tran Trung Architects craft a haven that prioritizes mental well-being through innovative architecture. Situated in a tightly packed urban setting, the house's tropical shell, featuring lush vegetation and expansive voids, defies the constraints of narrow living spaces.








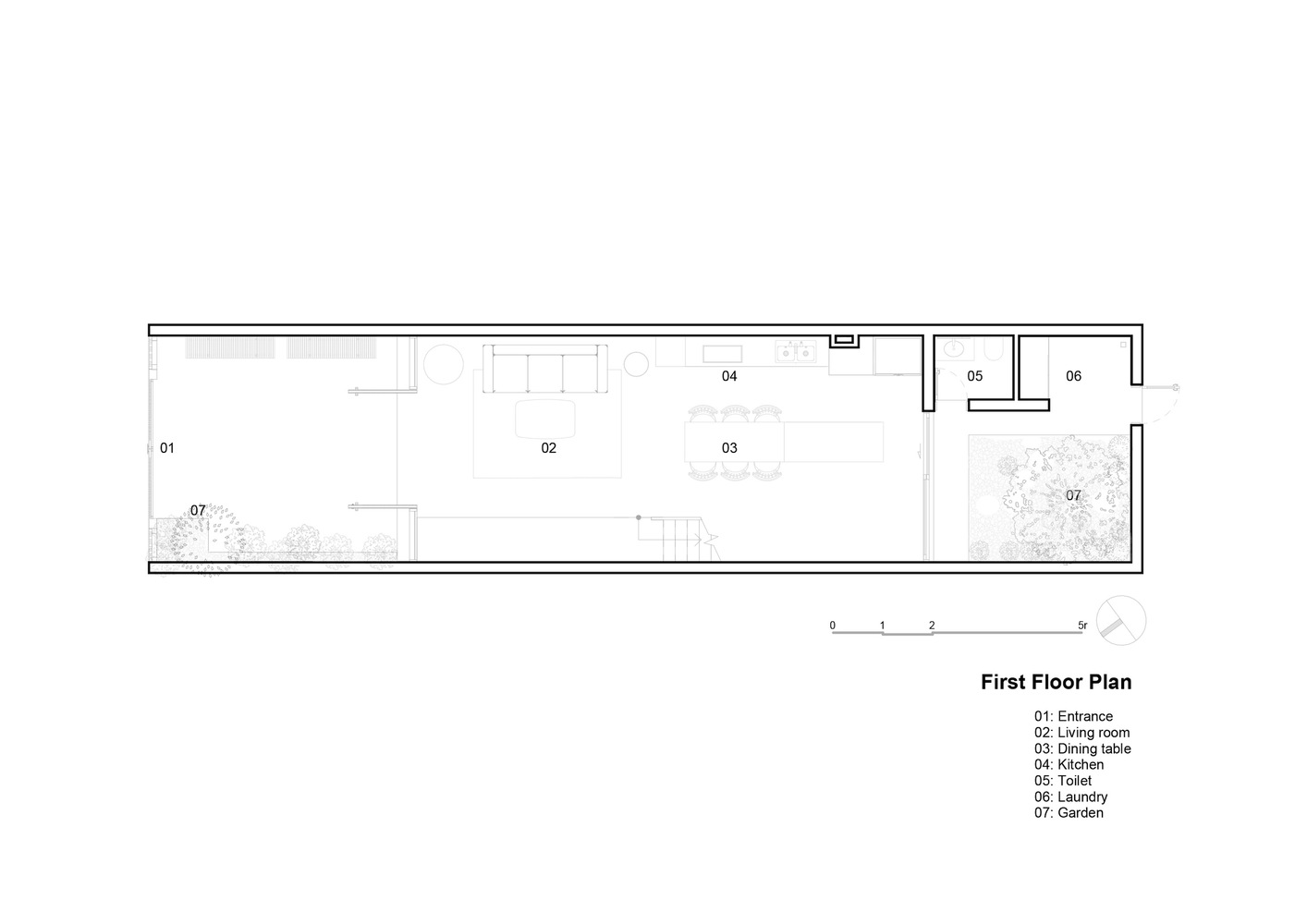
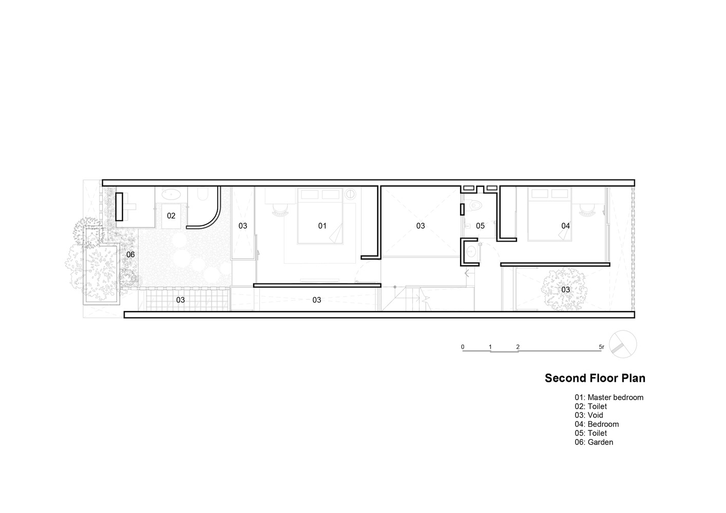
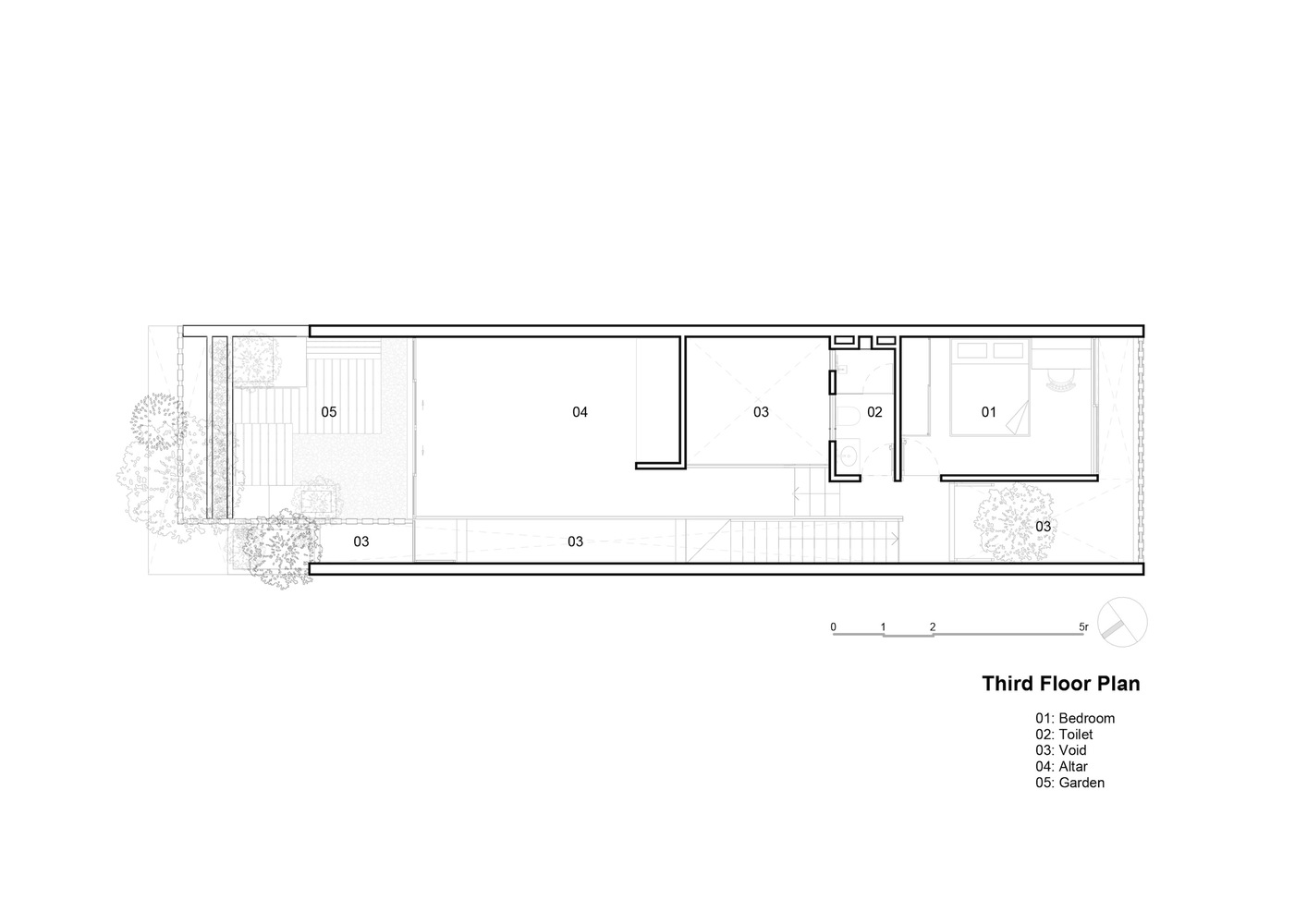
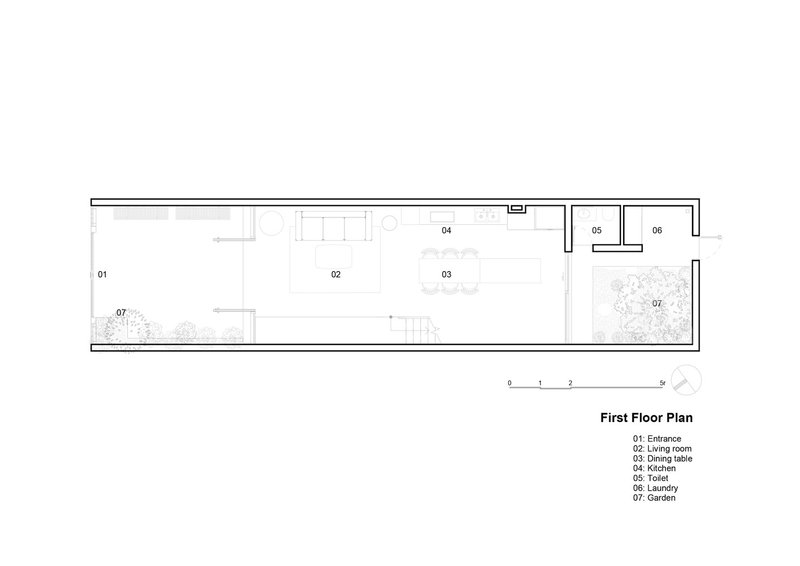
Creating Openness in Constricted Urban Spaces
The modest plot posed a unique challenge: crafting an open structure within confined walls. Tran Trung Architects rose to the occasion by constructing a tropical shell on the front and rear facades. Comprising interlocking fired clay bricks with over 50% empty space, this structure acts as a shield against direct sunlight, noise, and rain. The porous design encourages natural ventilation, reducing reliance on mechanical cooling devices.







A Symphony of Nature Within Narrow Confines
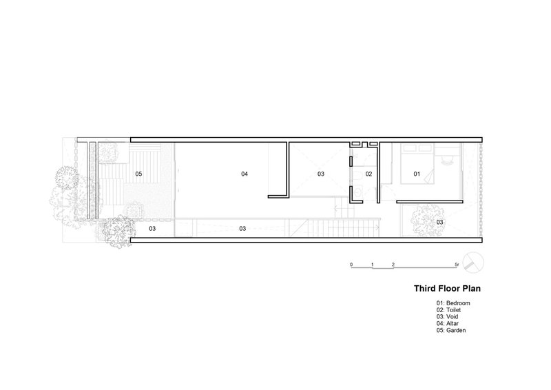
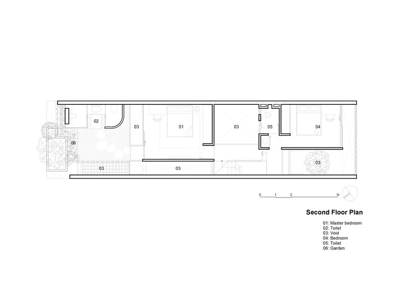
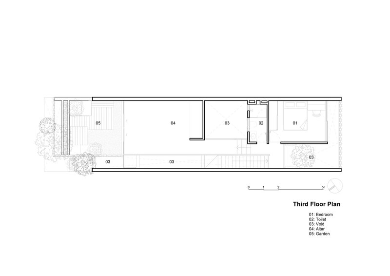
The exterior tropical shell creates a seamless connection with nature, fostering a sense of openness. Large glass panels erase the boundary between inside and outside, allowing natural light to flood the rooms. The interior spaces, kept to a minimum, feature communal living areas that enhance connectivity. The continuity of open levels, coupled with abundant natural elements, creates an environment conducive to family bonding and relaxation.







Architectural Ingenuity for Well-being
HY House is not just a residence; it's a retreat promoting mental well-being. The architects prioritize the intersection of natural elements, enabling residents to enjoy tranquility within the confines of their home. The innovative design eliminates the typical narrow row house stuffiness, offering a refreshing retreat from the challenges of urban living.





All Photographs are the work of Hoang Le
Popular Articles
Popular articles from the community
The Ken Roberts Memorial Delineation Competition (Krob)
As the most senior architectural drawing competition currently in operation anywhere in the world, it draws hundreds of entries each year, awarding the very best submissions in a series of medium-based categories.
Louis Malle Cinema: A Limestone Cultural Landmark Revitalizing Community Life in Prayssac
Limestone cinema extension with public forecourt, blending heritage and modern design to create flexible cultural spaces and strengthen community interaction.
A Contemporary Take on Iranian Residential Architecture
A modern interior design in Mashhad that reinterprets brick, light, and spatial flow to create a warm, contemporary residential architecture.
On the Brooks House by Monsoon Collective – A Contemporary Kerala Home Rooted in Tradition
Kerala home blending tradition and modernity with water-inspired design, brick architecture, courtyard planning, and sustainable rainwater harvesting strategies.
Similar Reads
You might also enjoy these articles
Top 15 Architecture Competitions to Enter in 2026
From student-friendly idea competitions to prestigious international awards, here are the best architecture competitions open for entries in 2026. Updated regularly.
DIY & Engineering in Computational Design : Enter the BeeGraphy Design Awards
Showcase Your Creativity with Computational Design and Open Source Projects

Innovative Design Solutions: Award-Winning Projects from Recent Architecture Competitions
Exploring award-winning architectural projects shaping the future of design, sustainability, and community.
Explore Architecture Competitions
Discover active competitions in this discipline
The International Standard for Design Portfolios
The Global Benchmark for Architecture Dissertation Awards
The Global Benchmark for Graduation Excellence
Challenge to reimagine the Iron Throne
Comments (0)
Please login or sign up to add comments
No comments yet. Be the first to comment!