Embracing Contemporary Loft Design: The Branca House Extension by Piacesi Arquitetos Associados
Explore the Branca House Extension, a masterful blend of contemporary loft design and natural integration in Brumadinho, Brazil.
Explore the Branca House Extension in Brumadinho, Brazil, a perfect example of Contemporary Loft Design that harmonizes modern living with natural elements.


Architectural Concept and Inspiration
Design Philosophy
The project began as a practical warehouse space and evolved into a sophisticated loft under the creative direction of architect Piacesi Arquitetos Associados. This transformation showcases how functional spaces can be converted into stylish, contemporary living areas.



Integration with Nature
The loft’s design emphasizes a deep connection with the surrounding environment, incorporating large windows and natural materials that reflect the local culture and landscape. This approach not only enhances the aesthetic appeal but also ensures a tranquil living space.



Key Features of the Branca House Extension
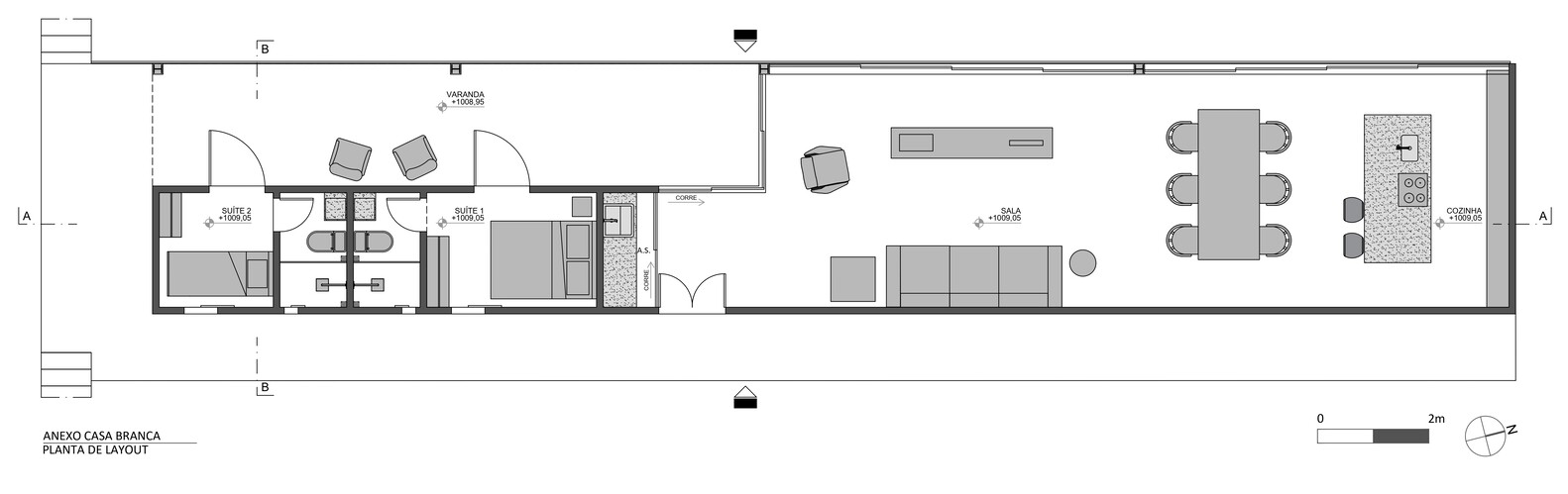
Layout and Spatial Organization
The loft features a linear configuration, clearly separating the intimate and social areas. This design choice promotes both privacy and openness, a hallmark of Contemporary Loft Design.


Material Palette and Textures
Neutral tones and white cement are used throughout, complemented by natural textures like wood, linen, and cotton. These materials contribute to a serene and welcoming atmosphere, essential for modern interiors.


Detailed Look at Interior Design
Kitchen and Living Areas
The kitchen is a blend of functionality and style, equipped with custom cabinetry and a central island that serves multiple purposes from dining to food preparation. The living area, designed to maximize natural light, offers stunning views of the treetops, enhancing the loft's connection to nature.


Innovative Storage Solutions
Camouflaged doors lead to the private suites, illustrating an innovative use of space and design that keeps the aesthetics clean and uncluttered, key aspects of Contemporary Loft Design.


Sustainability and Cultural Integration
Eco-friendly Practices
Sustainability is a core element of the design, with the use of local materials and techniques that minimize environmental impact, reflecting a growing trend in contemporary architecture.


Cultural Elements
Handmade ceramics and soapstone dishes adorn the space, celebrating the rich cultural heritage of Minas Gerais and adding a personal touch to the modern design.


The Branca House Extension by Piacesi Arquitetos Associados is a prime example of Contemporary Loft Design, where functionality meets aesthetic sophistication in a natural setting. This project not only serves as a residence but as a beacon of modern architectural trends in Brazil.

All photographs are work of Estúdio NY18
Popular Articles
Popular articles from the community
Inverted Architecture Installation by Studio Link-Arc: Exploring the Intersection of Architecture and Living Organisms
Inverted Architecture Installation by Studio Link-Arc blends mycelium, sustainability, inverted design, ecological cycles, and urban adaptive architecture in Shenzhen.
Flamboyant House by Juliana Camargo + Prumo Projetos
Modern Brazilian house integrating existing tree, pool, and volumes with glass, wood, and transitional spaces blending interior, exterior, and landscape seamlessly.
A Contemporary Take on Iranian Residential Architecture
A modern interior design in Mashhad that reinterprets brick, light, and spatial flow to create a warm, contemporary residential architecture.
Louis Malle Cinema: A Limestone Cultural Landmark Revitalizing Community Life in Prayssac
Limestone cinema extension with public forecourt, blending heritage and modern design to create flexible cultural spaces and strengthen community interaction.
Similar Reads
You might also enjoy these articles
Top 15 Architecture Competitions to Enter in 2026
From student-friendly idea competitions to prestigious international awards, here are the best architecture competitions open for entries in 2026. Updated regularly.
DIY & Engineering in Computational Design : Enter the BeeGraphy Design Awards
Showcase Your Creativity with Computational Design and Open Source Projects

Innovative Design Solutions: Award-Winning Projects from Recent Architecture Competitions
Exploring award-winning architectural projects shaping the future of design, sustainability, and community.
Explore Architecture Competitions
Discover active competitions in this discipline
The International Standard for Design Portfolios
The Global Benchmark for Architecture Dissertation Awards
The Global Benchmark for Graduation Excellence
Challenge to reimagine the Iron Throne
Comments (0)
Please login or sign up to add comments
No comments yet. Be the first to comment!