Enchanting Fusion of History and Modernity: London's Astonishing Stone House
Is this London Stone House a Glimpse into the Past or a Vision of the Future?

Discover the Splendor of a Transformed Grade II Listed Villa in Islington, London
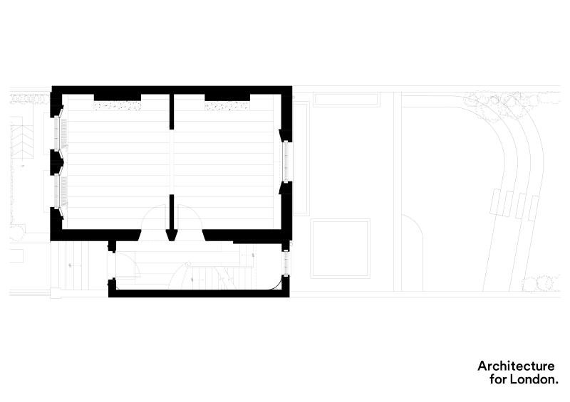
London, UK - A remarkable transformation has taken place in Islington, London, where a magnificent Grade II listed villa has been meticulously extended and refurbished to create an awe-inspiring residence that seamlessly blends generous spaces for gathering and family life. With a focus on preserving the villa's historic charm while incorporating modern elements, the highlight of the renovation lies in the captivating rear extension, designed as an exquisite stone pavilion.
One cannot help but be enthralled by the architectural marvel that greets visitors upon approaching the villa. The agglomerate stone forms a solid plinth, serving as the foundation for the extension, while limestone piers gracefully ascend, lending strength and structure to the entire composition. The choice of natural stone was a conscious one, with locally sourced materials selected for their low embodied energy, ensuring an environmentally friendly approach to the renovation.
The rear extension boasts an enchanting feature that captures the essence of both functionality and aesthetic appeal. Crafted with meticulous attention to detail, heavy oak framed glazing mirrors the proportions of the villa's historic facade. A striking pivot hinge door, spanning a considerable size, elegantly opens onto a terrace, inviting the outside world to merge seamlessly with the interior spaces. The terrace itself is a masterpiece, with an oversized concrete header honed to reveal limestone quarried in Derbyshire. This deliberate design choice imparts a sense of permanence, solidifying the villa's grand presence.
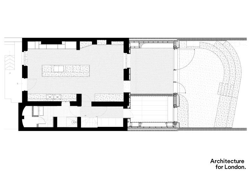
As one explores the grounds further, a delightful surprise awaits in the form of an extended rear lightwell, transformed into a stepped sunken terrace. The use of bush-hammered stone creates a visually striking effect, evoking the illusion of a naturally carved rock face. The carefully crafted curvature of the terrace follows the path of the sun throughout the afternoon, ensuring an optimal play of light and shade. In a stroke of brilliance, a series of benches grace this sun-kissed retreat, providing a serene spot for relaxation and contemplation.
The interior spaces of the villa are equally captivating, boasting an array of thoughtfully designed areas that cater to modern living. The lower ground floor, once divided into smaller, dimly lit spaces, has been skillfully opened up to reveal a kitchen centred around a remarkable four-meter-long stone island. This culinary haven exudes a harmonious blend of functionality and elegance, inviting culinary delights and shared moments of togetherness.
Nestled within the villa is a secluded room dedicated to yoga, offering a serene escape for contemplation and mindfulness. Inspired by James Turrell's renowned skyspace structures, this tranquil sanctuary provides a sweeping view of the sky, lending a sense of infinite calmness to its occupants.
The villa's bathrooms continue the theme of carved-out spaces, evoking a sense of being enveloped within a monastic retreat. The opulent textures of limestone and Tadelakt walls create an ambience akin to a serene cave, paying homage to the daily rituals of ablution.
This remarkable renovation of the Grade II listed villa in Islington stands as a testament to architectural ingenuity and vision. With its masterful blend of history and contemporary design, this transformed residence showcases the epitome of refined living. As the villa proudly reclaims its position as a treasured architectural gem, it invites visitors to immerse themselves in its allure, leaving a lasting impression of harmonious elegance and timeless grandeur.



























Popular Articles
Popular articles from the community
Treehouse Apartment: A Warm Timber Interior Blending Craft, Play, and Contemporary Living
Warm timber apartment with integrated treehouse, combining natural materials, craftsmanship, and playful design to create a flexible, family-oriented living environment.
Atelier Macri Concept Store Interior Design by CASE-REAL
Atelier Macri store features a "ko" counter, walnut wood details, cork displays, blending retail, gallery, and seamless customer experiences.
A Contemporary Take on Iranian Residential Architecture
A modern interior design in Mashhad that reinterprets brick, light, and spatial flow to create a warm, contemporary residential architecture.
Inverted Architecture Installation by Studio Link-Arc: Exploring the Intersection of Architecture and Living Organisms
Inverted Architecture Installation by Studio Link-Arc blends mycelium, sustainability, inverted design, ecological cycles, and urban adaptive architecture in Shenzhen.
Similar Reads
You might also enjoy these articles
SOM LAND Hotel by RooMoo: A Sustainable Retreat Rooted in Nature and Local Craft
Sustainable boutique hotel in Shanghai blending adaptive reuse, natural materials, vernacular craftsmanship, and slow living within a serene countryside landscape.
Zhuxi Wonderland: Reimagining Traditional Chinese Gardens by Doarchi Architects
Zhuxi Wonderland by Doarchi Architects reinterprets traditional Yangzhou gardens, integrating courtyards, pavilions, and tea houses in modern cultural design.
Doble Soga House: A Contemporary Brick Residence Rooted in Landscape in Quito, Ecuador
Brick house in Quito integrating nature, flexible living spaces, exposed materials, and rooftop terrace, creating warm contemporary architecture for modern family life.
Al Gharra Mosque in Medina Redefining Contemporary Islamic Architecture
Minimalist Medina mosque using concrete, light, and landscape to reinterpret Islamic worship spaces through symbolic spiritual transitions and contemporary architecture.
Explore Architecture Competitions
Discover active competitions in this discipline
The International Standard for Design Portfolios
The Global Benchmark for Architecture Dissertation Awards
The Global Benchmark for Graduation Excellence
Challenge to reimagine the Iron Throne
Comments (0)
Please login or sign up to add comments
No comments yet. Be the first to comment!