Escenario Hanabusayama by Ryuichi Sasaki Architecture
A sculpted concrete residential building in Tokyo, carved from hillside terrain, integrating light, ventilation, and borrowed landscape into serene urban living.
Set within the undulating topography of Tokyo’s historic residential districts, Escenario Hanabusayama is a refined exploration of architecture as landscape. Designed by Ryuichi Sasaki Architecture and completed in 2023, the 496-square-metre residential building responds sensitively to its sloping terrain, geological character, and cultural context. Rather than standing apart from its environment, the project appears carved from it—an inhabitable extension of the hillside shaped by light, air, and material continuity.

Surrounded by neighborhoods whose origins trace back to the Edo period, the site demanded an architectural language that could engage history without imitation. The result is a quiet yet powerful structure that translates natural strata and urban memory into contemporary residential form.


Architecture Carved from the Earth
The defining concept of Escenario Hanabusayama is that of carving architecture from the ground. The building’s massing, façade articulation, and boundary treatments are directly informed by the layered geology of the surrounding terrain.
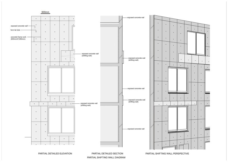
The exposed concrete exterior is sculpted with elongated, slanted ridges that evoke sedimentary rock formations. These linear accents create a sense of stratification, visually rooting the building in the hillside. Boundary walls and approach paths extend this language through slender stone patterns and gentle inclines, reinforcing the impression of gradual emergence from the landscape.

Rather than presenting a flat, autonomous façade, the building reads as a geological object—one shaped by pressure, erosion, and time. This approach blurs the boundary between constructed form and natural terrain, allowing architecture to participate in the site’s physical narrative.
Responding to Topography and Constraint
Behind the site rises a ten-meter-high cliff, imposing strict structural and spatial limitations. This natural barrier, while restrictive, also provides stability and acoustic protection. Ryuichi Sasaki Architecture transformed this constraint into a design generator.

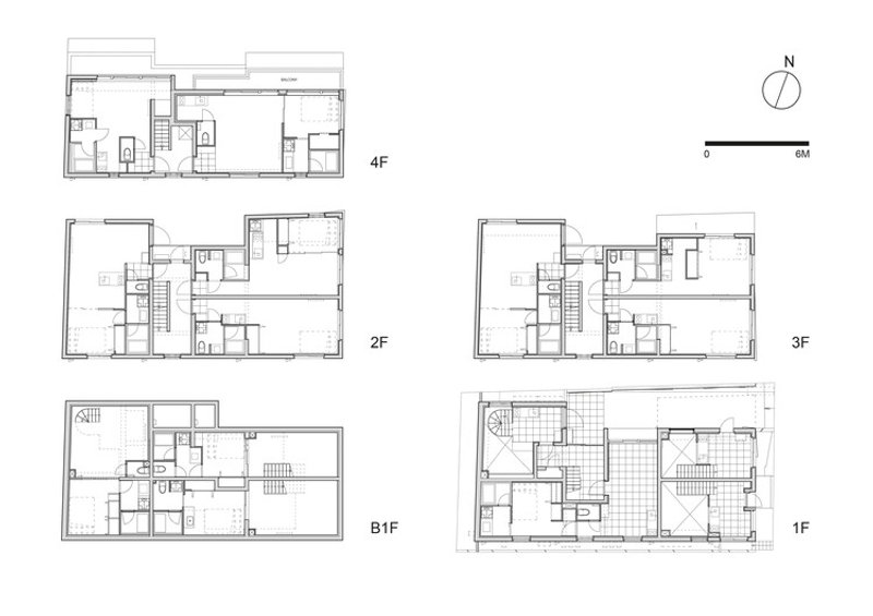
With no openings possible toward the cliff, the building turns outward toward the street and sky. The primary elevation is articulated through a rhythmic grid of square apertures that puncture the concrete mass. These openings establish visual continuity between private interiors and the surrounding urban fabric, preventing the building from becoming introverted despite its solid appearance.


This dual condition—closed to the rear, open to the front—creates a spatial gradient that mediates between geological permanence and urban dynamism.
Light, Air, and Borrowed Scenery
Each residential unit is designed with openings on two sides, ensuring cross-ventilation and generous daylight penetration. This bi-directional orientation reduces dependence on mechanical systems while enhancing environmental comfort.

From within, residents experience carefully framed views of lush greenery crowning the hill. These views reinterpret shakkei, the traditional Japanese principle of “borrowed landscape,” in a contemporary urban context. Rather than relying on distant mountains or classical gardens, the project borrows nearby vegetation and terrain, weaving them into everyday domestic life.
Windows are not merely functional apertures; they are compositional devices that choreograph visual connections between interior, city, and hillside. Through them, nature becomes an extension of living space.


Spatial Organization and Living Experience
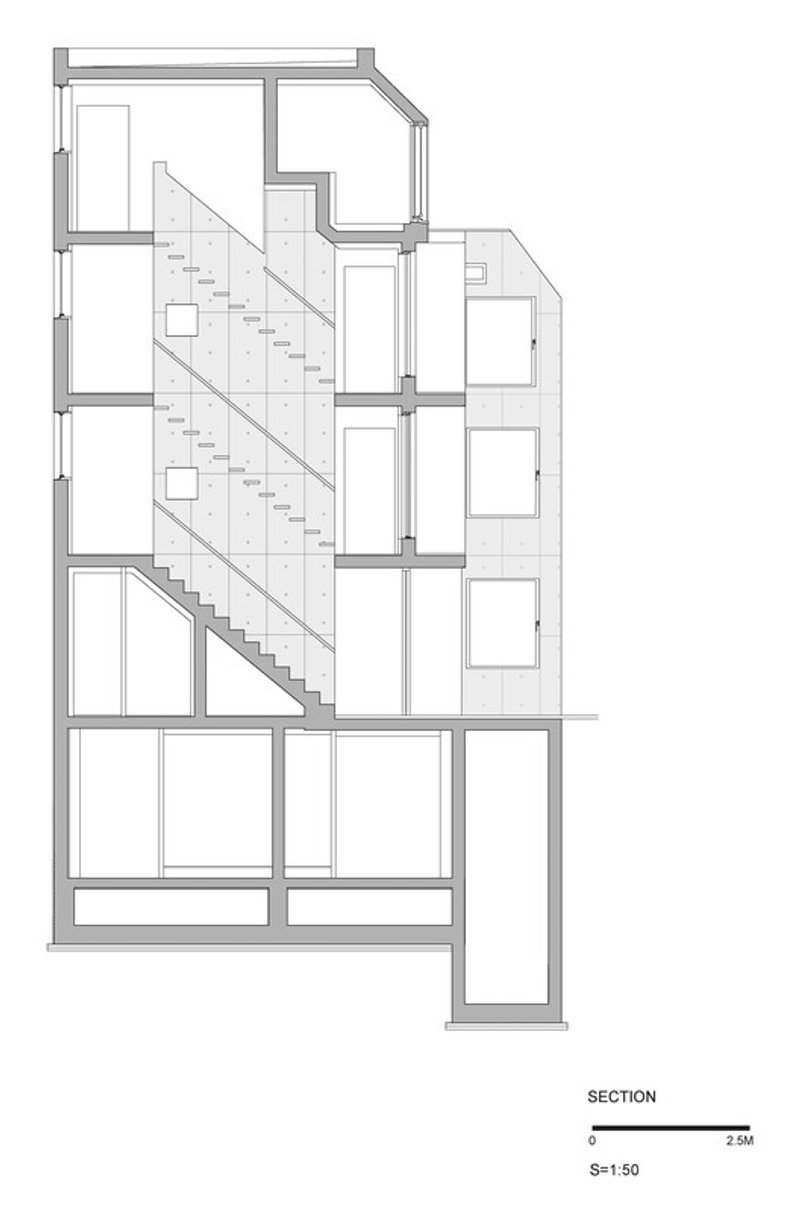
Internally, Escenario Hanabusayama prioritizes clarity and continuity. Circulation unfolds through subtly shifting levels and carefully placed staircases, echoing the site’s natural slopes. Movement through the building feels gradual rather than abrupt, reinforcing the sense of inhabiting a carved landscape.

Living areas are organized to maximize openness while preserving privacy. Transitional spaces—landings, corridors, and stair halls—are treated with the same care as primary rooms, ensuring spatial coherence throughout the building.
This holistic approach transforms everyday circulation into a spatial experience, where residents remain constantly aware of light, material, and terrain.

The Poetics of Exposed Concrete
Material restraint is central to the project’s atmosphere. Inside, concrete surfaces remain largely exposed, revealing fine textures and subtle variations in tone. Rendered in soft greige hues, these surfaces provide a calm, neutral backdrop that responds sensitively to changing light conditions.

Rather than appearing cold or austere, the concrete acquires warmth through natural illumination and careful detailing. Sunlight grazing across walls and floors produces shifting gradients, animating the interiors throughout the day.
The material palette is intentionally limited, allowing form, proportion, and light to take precedence. This restraint aligns with Japanese architectural traditions that emphasize essence over excess.


A Meditative Domestic Environment
The interplay of solid mass, filtered light, and borrowed scenery generates a serene living atmosphere. Interiors feel contemplative yet connected, offering refuge from urban intensity without retreating into isolation.

Furniture and personal objects stand out against the subdued background, allowing residents to individualize their spaces without disrupting architectural coherence. The building thus acts as a quiet framework for daily life—supportive, adaptable, and enduring.
This meditative quality reflects Ryuichi Sasaki’s broader design philosophy, which seeks harmony between human habitation and natural form through subtle spatial choreography.

Structural Precision and Collaboration
Structural engineering by Tatsumi Terado Structural Studio was instrumental in realizing the project’s sculptural ambitions. The exposed concrete construction demanded exceptional precision, ensuring that structural performance and aesthetic intent remained inseparable.

The building’s stability against the cliff face, combined with its perforated street elevation, demonstrates a careful balance between robustness and openness. Engineering and architecture operate here as a unified discipline, reinforcing the project’s conceptual clarity.
Contemporary Living Rooted in Place
Escenario Hanabusayama represents a contemporary response to Tokyo’s complex residential landscape—one shaped by density, topography, and historical layering. Rather than maximizing visibility or novelty, the project invests in contextual depth.


By translating geological form, climatic intelligence, and cultural concepts such as shakkei into architectural language, the building offers an alternative model for urban housing: one grounded in site specificity and sensory experience.

All the Photographs are works of Takumi Ota Photography
Popular Articles
Popular articles from the community
Solar Steam: A Climate-Responsive Architecture That Redefines the Monument
A climate-responsive memorial architecture that transforms heat, decay, and time into a living system reflecting humanity’s ecological impact.
Atelier Macri Concept Store Interior Design by CASE-REAL
Atelier Macri store features a "ko" counter, walnut wood details, cork displays, blending retail, gallery, and seamless customer experiences.
Split House: A Compact Urban Home Blending Privacy, Light, and Flexible Living in Japan
Compact Japanese home featuring DOMA space, flexible café potential, passive lighting, privacy zoning, and sustainable urban living design.
The Ken Roberts Memorial Delineation Competition (Krob)
As the most senior architectural drawing competition currently in operation anywhere in the world, it draws hundreds of entries each year, awarding the very best submissions in a series of medium-based categories.
Similar Reads
You might also enjoy these articles
The Ken Roberts Memorial Delineation Competition (Krob)
As the most senior architectural drawing competition currently in operation anywhere in the world, it draws hundreds of entries each year, awarding the very best submissions in a series of medium-based categories.
Waterfront Redevelopment and Urban Revitalization in Mumbai: Forging a New Dawn for Darukhana
A transformative waterfront redevelopment project reimagining Darukhana’s shipbreaking heritage into an inclusive urban future.
OUT-OF-MAP: A Call for Postcards on Feminist Narratives of Public Space
Rhizoma Design and Research Lab invites artists, designers, architects, researchers, and students to reflect on how feminist perspectives can reshape public space. Selected works will be exhibited in Barcelona, October 2026. Submissions open until 15 April 2026.
Documentation Work on Buddhist Wooden Temple
Architectural syncretism and cultural hybridity: A comparative study of the Buddhist temples in Chattogram Hill tracks
Explore Architecture Competitions
Discover active competitions in this discipline
The International Standard for Design Portfolios
The Global Benchmark for Architecture Dissertation Awards
The Global Benchmark for Graduation Excellence
Challenge to reimagine the Iron Throne
Comments (0)
Please login or sign up to add comments
No comments yet. Be the first to comment!