Experience Innovative Japanese Restaurant Design at Akari in Hilton Hotel, Guiyang
Explore the Perfect Blend of Traditional Japanese Design and Modern Architecture at Akari, a Unique Japanese Restaurant in Guiyang, China by Odd Design Office
Welcome to our feature on Akari, a Japanese restaurant that boasts a one-of-a-kind design located in the Hilton Hotel in Guiyang, China. Akari's restaurant design is a beautiful example of how traditional Japanese design principles can be seamlessly combined with contemporary architectural techniques. We are excited to take you on a journey through this unique and innovative restaurant, from its awe-inspiring exterior facade to its exquisite interior decor.

The Japanese culture of expressing gratitude for all life, which becomes our food, is embodied in the traditional phrase "Itadakimasu" that one says before having a meal. At Akari, this culture is deeply ingrained in the restaurant design, with the greatest luxury being the use of ingredients in season, which are gifts from the earth. To achieve the perfect taste, the restaurant focuses on finding and gathering seasonal ingredients and presenting them in their natural state, without excessive seasoning.

The restaurant design at Akari is heavily influenced by the lunar phase, which determines the timing of harvesting, fishing, and hunting in the oriental world, especially in Japan. The moon plays a significant role in the oriental lifestyle, and the restaurant pays homage to it with its unique design elements.


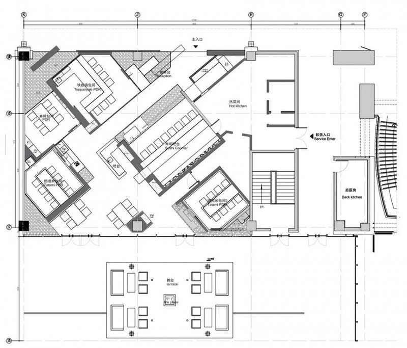
The PDRs (private dining rooms) are the main dining areas of the restaurant, and each is designed as an independent architecture with a unique facade. The rough rocks used in the exterior facade are applied without excessive processing, expressing reverence for the force and aesthetic shape created by nature. The interior decor is designed with diagonally-arranged planning in the rectangular space of PDRs, sushi counter, and Teppanyaki counter, creating small interior gardens that maintain PDR privacy.


The use of water-rippled glass bricks as a separation between PDRs provides privacy while allowing for openness at the same time. Each PDR is themed according to the five elements of water, fire, earth, wood, and metal, with unique warm colors and materials used to represent each element. The Kumiko-like wood screen in front of the odd-shaped polar brick creates a sense of depth and privacy for customers, while the slits between the cloak, display, and walls reduce the feeling of pressure.



The restaurant design of Akari is a masterpiece that expresses reverence to the force and aesthetic shape created by nature while embodying traditional Japanese culture. The unique design elements, combined with the focus on seasonal ingredients and the five elements, make Akari a must-visit restaurant for anyone who appreciates great design and exceptional dining experiences.








Project name: Akari by HILTON
Project type: interior
Design: okamoto deguchi design(odd)
Contact e-mail: odd_pr@126.com
Completion Year: 2022
Leader designer & Team: Keizo Okamoto, Tsutomu Deguchi, Wang Langxu
Project location: Guiyang
Gross built area: 286 ㎡
Photo credit: Ruijing PhotoPartner: HDA / MAKIKO ISHIOKA
Materials: Rock, Granite stone, Glass brick, Veneer wood, Artistic paint
Popular Articles
Popular articles from the community
Architects Group RAUM Stacks Offset White Volumes into a Compact Office Tower in Busan
A 524-square-meter building on a tight corner lot in Haeundae plays with sunlight rights and shifting floor plates to create generous terraces.
20 Most Popular Furniture Design Projects of 2025
Modular street systems, parametric benches, and insect hotels: the furniture design projects that captivated architects on uni.xyz in 2025.
Biophilic Architecture and Regenerative Stadium Design: Biophilia Lagos by Rachel George
A regenerative stadium in Lagos transforms landfill into a living ecosystem through biophilic architecture, waste reuse, and environmental healing.
boq architekti Fits a Gabled Family House onto a Tiny Moravian Hillside Plot with No Room for a Garden
A 115 square meter home in South Moravia trades a garden for a rooftop terrace and a fully glazed facade facing the village below.
Similar Reads
You might also enjoy these articles
Maya Harvest: A Cacao Resort Village Rooted in Mayan Tradition and Local Craft
Situated within a Tabasco cacao plantation, this shortlisted resort proposal merges vernacular materials with hands-on cultural immersion.
Harmonia: A River-Shaped Community That Grows Over Decades in Boa Vista
Curved pathways and modular grid structures along the Branco River create a phased settlement designed to evolve from 2030 to 2050.
The Architecture of Bathing: A Mughal Hammam Reimagined Across the Yamuna
Charlotte May's honorable mention entry for The Black Taj reinterprets Agra's bathing rituals through red sandstone, water, and framed views of the Taj Mah
Om-1: A Wall-Hung System That Moves Your Workspace Off the Desk
Modular plywood boards, magnetic pegs, and utility elements migrate clutter from the horizontal surface to the vertical plane.
Explore Interior Design Competitions
Discover active competitions in this discipline
The Global Benchmark for Architecture Dissertation Awards
Challenge to design luxury tourism on rails
VR headsets Storefront design competition
Designing a staircase for a client
Comments (0)
Please login or sign up to add comments
No comments yet. Be the first to comment!