Experience Living Amidst Nature: The Design Philosophy Behind the House of Concrete Walls
"Discover the architectural masterpiece of the House of Concrete Walls, where modern design meets natural serenity in Vadodara, India."
In the bustling urban landscape of Vadodara, India, TRAANSPACE architects have redefined the concept of a weekend retreat with the House of Concrete Walls. This architectural marvel seamlessly blends modern design elements with the tranquility of nature, offering residents a serene living experience unlike any other.




Conceptualizing a Retreat
The House of Concrete Walls is not just a residence; it's a sanctuary designed to foster a deep connection with the natural environment. Situated within a gated community, the design ethos revolves around creating spaces that transcend the boundaries between indoor and outdoor living.




Architectural Innovation
At the heart of the design lies the ingenious use of exposed concrete walls. These walls, strategically positioned orthogonally, not only define the spatial layout of the house but also establish a strong visual connection with the surrounding landscape. The rippling effect on the surface adds a touch of softness to the otherwise solid structure, creating a harmonious blend of strength and elegance.





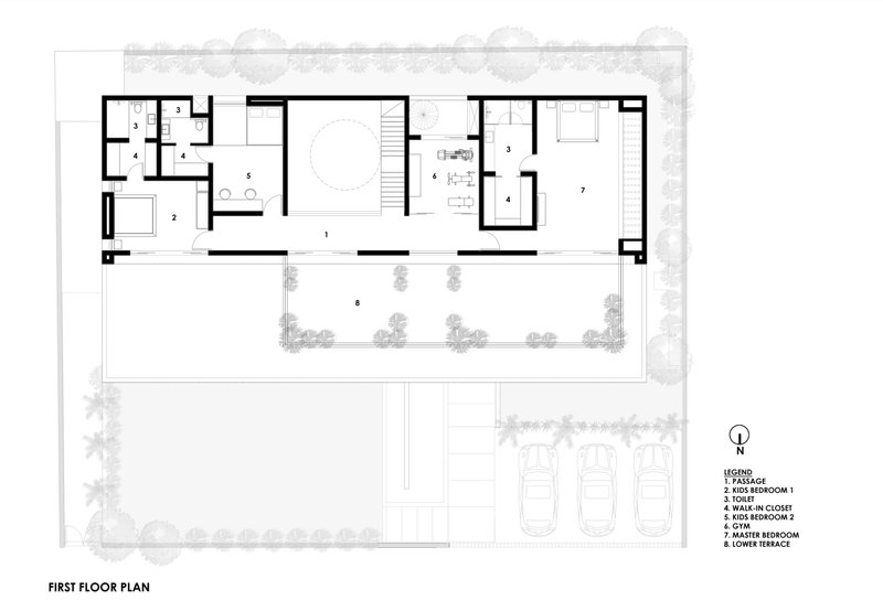
Spatial Organization
The architectural layout of the House of Concrete Walls is meticulously planned to optimize natural light and ventilation. Large glass openings and skylights flood the interiors with daylight, while strategically placed courtyards and decks seamlessly integrate indoor and outdoor spaces. The result is a fluid living environment that exudes warmth and openness.




Light as a Design Element
Light plays a pivotal role in shaping the ambiance of the house. Through innovative design features such as skylights, glass enclosures, and double-height courtyards, natural light permeates every corner, transforming the interiors throughout the day. The interplay of light and shadow accentuates the beauty of the exposed concrete walls, creating a captivating visual experience.




Material Palette and Furniture
The interior aesthetic of the House of Concrete Walls is characterized by a neutral grey palette, accentuated by minimalist furniture pieces crafted from concrete and wood. This intentional choice of materials adds a sense of warmth and sophistication to the space, enhancing the overall living experience.



A Retreat Like No Other
With its thoughtful design and seamless integration with nature, the House of Concrete Walls offers residents a sanctuary where they can unwind and reconnect with the essence of life. It's not just a house; it's a testament to architectural innovation and the timeless beauty of simplicity.



All photographs are work of Tejas Shah Photography
Popular Articles
Popular articles from the community
Treehouse Apartment: A Warm Timber Interior Blending Craft, Play, and Contemporary Living
Warm timber apartment with integrated treehouse, combining natural materials, craftsmanship, and playful design to create a flexible, family-oriented living environment.
A Contemporary Take on Iranian Residential Architecture
A modern interior design in Mashhad that reinterprets brick, light, and spatial flow to create a warm, contemporary residential architecture.
Louis Malle Cinema: A Limestone Cultural Landmark Revitalizing Community Life in Prayssac
Limestone cinema extension with public forecourt, blending heritage and modern design to create flexible cultural spaces and strengthen community interaction.
Flamboyant House by Juliana Camargo + Prumo Projetos
Modern Brazilian house integrating existing tree, pool, and volumes with glass, wood, and transitional spaces blending interior, exterior, and landscape seamlessly.
Similar Reads
You might also enjoy these articles
The Ken Roberts Memorial Delineation Competition (Krob)
As the most senior architectural drawing competition currently in operation anywhere in the world, it draws hundreds of entries each year, awarding the very best submissions in a series of medium-based categories.
Waterfront Redevelopment and Urban Revitalization in Mumbai: Forging a New Dawn for Darukhana
A transformative waterfront redevelopment project reimagining Darukhana’s shipbreaking heritage into an inclusive urban future.
OUT-OF-MAP: A Call for Postcards on Feminist Narratives of Public Space
Rhizoma Design and Research Lab invites artists, designers, architects, researchers, and students to reflect on how feminist perspectives can reshape public space. Selected works will be exhibited in Barcelona, October 2026. Submissions open until 15 April 2026.
Documentation Work on Buddhist Wooden Temple
Architectural syncretism and cultural hybridity: A comparative study of the Buddhist temples in Chattogram Hill tracks
Explore Architecture Competitions
Discover active competitions in this discipline
The International Standard for Design Portfolios
The Global Benchmark for Architecture Dissertation Awards
The Global Benchmark for Graduation Excellence
Challenge to reimagine the Iron Throne
Comments (0)
Please login or sign up to add comments
No comments yet. Be the first to comment!